Löggiltir fasteignasalar innan Félags fasteignasala:
Óskar Rúnar Harðarson
Jason Guðmundsson
Þröstur Þórhallsson
Ólafur Finnbogason
Kjartan Ísak Guðmundsson
Gústaf Adolf Björnsson
Viðar Böðvarsson
Rakel Viðarsdóttir
Ragnheiður Pétursdóttir
Böðvar Þ. Eggertsson
Vista
fjölbýlishús

Hrannarstígur 3

101 Reykjavík

105.900.000 kr.

1.054.781 þ.kr./m2
Fasteignanúmer

F2002170

Fasteignamat

83.850.000 kr.

Brunabótamat

58.150.000 kr.

Áhvílandi

0 kr.

Arion banki – Reikna lán
Upplýsingar
Verðsaga
svg
Byggt 1928
svg
100,4 m²
svg
4 herb.
svg
1 baðherb.
svg
2 svefnh.
svg
Sameiginl. inngangur

Lýsing

Móeiður Svala lögg. fasteignasali og Miklaborg kynna í einkasölu: Hrannarstíg 3 - Um er að ræða bjarta og fallega efri hæð í einstaklega flottu steinhúsi byggt 1928 með mikilli lofthæð (290cm). Eignin er 100,4 fm og hefur stóra franska glugga sem gera íbúðina einstaklega bjarta og fallega. Nýtt gler er komið í fjóra þeirra. Auk þess fylgir risloft með sérinngangi af stigapalli sem nýbúið er að taka í gegn– skráð 12 fm, en gólfflötur er mun stærri. Þarna eru miklir möguleikar á stækkun og/eða framtíðar leigutekjum.


Allar nánari upplýsingar veitir Móeiður Svala lögg. fasteignasali í síma 899-8278 eða [email protected]

Nánari lýsing:

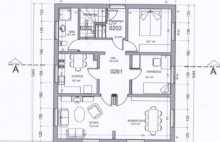
Eignin hefur tvö rúmgóð svefnherbergi, bjarta og rúmgóða stofu og borðstofu, opið eldhús og baðherbergi sem gerir ráð fyrir þvottavél/þurrkara. Auk þess fylgir risloft með sérinngangi af stigapalli – skráð 12 fm, en gólfflötur mun stærri. Þar eru miklir möguleikar á stækkun og/eða framtíðar leigutekjum. .


Forstofa: Flísalögð með skápum.

Hol: Flísalagt með fallegum náttúruflísum.

Eldhús: Opið með granítborðplötum, vönduðum tækjum og flísalagt með fallegum náttúruflísum.

Stofa og borðstofa: Björt og rúmgóð stofa og borðstofa. Parketlögð með fallegum gluggum.

Baðherbergi: Flísalagt með fallegum náttúruflísum, granítborðplötu, handlaug, baðkari með sturtuaðstöðu ásamt innbyggðum blöndunartækjum og tengi fyrir þvottavél og þurrkara.

Svefnherbergi: Bæði eru parketlögð annað með rúmgóðum fataskáp.

Útigeymsla í kjallara.


Eignin hefur verið mikið endurnýjuð. Að innan er búið að setja gólfhita, skipta um rafmagnstöflu og draga í, lagnir endurnýjaðar, nýlegt eikarplankaparket, nýlegar innréttingar.

Húsið sjálft er bæði nýmúrað og nýmálað. Nýtt gler komið í fjóra glugga. Búið að taka risloftið í gegn og einnig var settur hiti í rennur.


Hér er um að ræða frábæra eign á mjög eftirsóttum stað í vesturbænum þar sem stutt er í allar þjónustur skóla, kaffhús, sund og í göngufæri frá miðbæ Reykjavíkur.


Allar nánari upplýsingar veitir Móeiður Svala lögg. fasteignasali í síma 899-8278 eða [email protected]


Miklaborg fasteignasala

Miklaborg fasteignasala

Lágmúli 4, 108 Reykjavík
Ár
Fasteignamat
Kaupverð
Stærð
Fermetraverð
15. des. 2022
55.100.000 kr.
85.000.000 kr.
100.4 m²
846.614 kr.
2. des. 2016
40.900.000 kr.
55.000.000 kr.
100.4 m²
547.809 kr.
1. sep. 2015
31.000.000 kr.
43.000.000 kr.
101.9 m²
421.982 kr.
Byggt á upplýsingum úr Þjóðskrá Íslands frá 2006-2026
Miklaborg fasteignasala

Miklaborg fasteignasala

Lágmúli 4, 108 Reykjavík