Löggiltir fasteignasalar innan Félags fasteignasala:
Hannes Steindórsson
Bogi Molby Pétursson
Guðrún Antonsdóttir
Heimir Hallgrímsson
Hrafnkell P. H. Pálmason
Viðar Marinósson
Elías Haraldsson
Kristján Þórir Hauksson
Albert Bjarni Úlfarsson
Ragnar Þorsteinsson
Þórey Ólafsdóttir
Andri Freyr Halldórsson
Upplýsingar
Byggt 1974
82,3 m²
3 herb.
1 baðherb.
2 svefnh.
Laus strax
Lýsing
Guðrún Antonsdóttir fasteignasali kynnir stóra 3ja herbergja endaíbúð á 2.hæð með sér inngangi frá svölum. Tengi fyrir þvottavél inn á baðherbergi. Laus til afhendingar við kaupsamning. Hægt er að skoða með stuttum fyrirvara. Góð fyrstu kaup
Frekari upplýsingar veitir Guðrún Antonsdóttir fasteignasali í síma 621-2020 eða á [email protected]
Viðhald eignar síðustu ára, ( listi er ekki tæmandi)
* skipt um glugga í eldhúsi ca árið 2020
* þak yfirfarið og skipt um járn ca, árið 2023
* skólpið var endurnýjað árið 2011, að sögn húsfélags
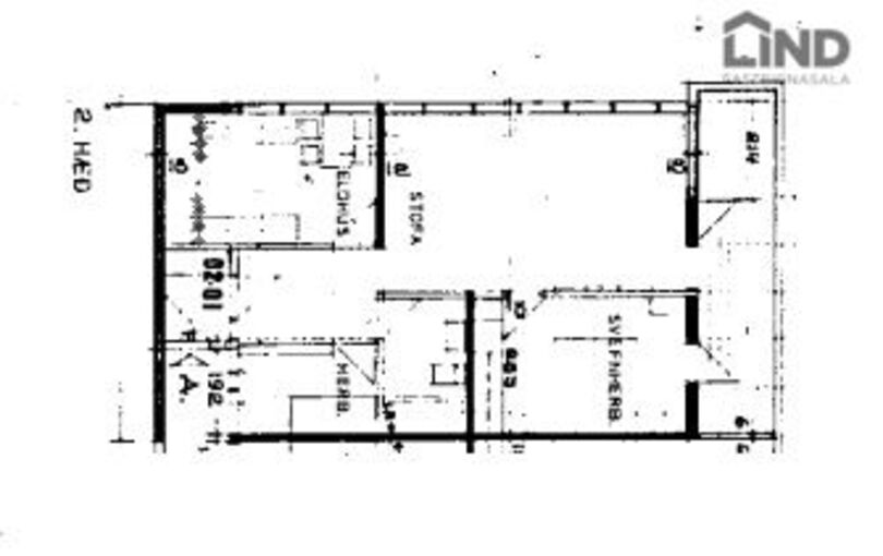
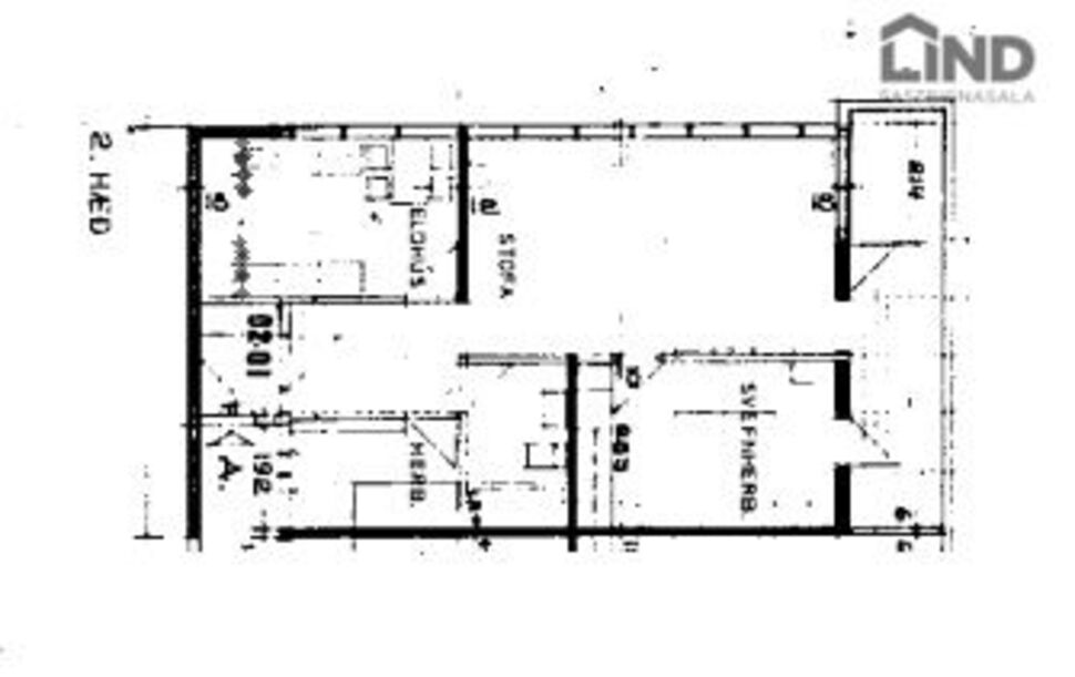
Eignin skiptist í: Forstofu, eldhús, búr, stofu, tvö svefnherbergi, baðherbergi og geymslu.
Nánari lýsing:
Forstofa með fataskáp og flísum á gólfi.
Eldhús með hvítri innréttingu með efri og neðri skápum, bakaraofn og hellur sambyggt og uppþvottavél.
Stofan er rúmgóð með parket á gólfi. Gengið er út á svalir yfirbyggðar að hluta frá stofu sem snúa í vestur.
Svefnherbergin er tvö með fataskápum og parketi á gólfi.
Baðherbergið er með innréttingu undir og við handlaug, baðkari, upphengdu salerni. Tengi er fyrir þvottavél inn á baðherbergi.
Þvottahús er á jarðhæð, sameiginlegt fyrir húsið, þar sem er þvottavél í eigu húsfélags.
Sérgeymsla er skráð samkvæmt teikningu í eignaskiptasamning 4,8fm
Bílastæði eru við húsið, malbikuð og búið er að koma fyrir hleðslustaurum fyrir rafmagnsbíla.
Húsgjöld eignarinnar eru 33.675kr á mánuði , innifalið í húsgjöldum er almennur rekstur, hiti á íbúð, rafmagn í sameign, húseigandatrygging, þrif sameignar og framkvæmdarsjóður.
Teikning í auglýsingu skal einngöngu notuð til að gera sér grein fyrir ca. skipulagi eignar.
Frekari upplýsingar veitir Guðrún Antonsdóttir fasteignasali í síma 621-2020 eða á [email protected]
Frekari upplýsingar veitir Guðrún Antonsdóttir fasteignasali í síma 621-2020 eða á [email protected]
Viðhald eignar síðustu ára, ( listi er ekki tæmandi)
* skipt um glugga í eldhúsi ca árið 2020
* þak yfirfarið og skipt um járn ca, árið 2023
* skólpið var endurnýjað árið 2011, að sögn húsfélags
Eignin skiptist í: Forstofu, eldhús, búr, stofu, tvö svefnherbergi, baðherbergi og geymslu.
Nánari lýsing:
Forstofa með fataskáp og flísum á gólfi.
Eldhús með hvítri innréttingu með efri og neðri skápum, bakaraofn og hellur sambyggt og uppþvottavél.
Stofan er rúmgóð með parket á gólfi. Gengið er út á svalir yfirbyggðar að hluta frá stofu sem snúa í vestur.
Svefnherbergin er tvö með fataskápum og parketi á gólfi.
Baðherbergið er með innréttingu undir og við handlaug, baðkari, upphengdu salerni. Tengi er fyrir þvottavél inn á baðherbergi.
Þvottahús er á jarðhæð, sameiginlegt fyrir húsið, þar sem er þvottavél í eigu húsfélags.
Sérgeymsla er skráð samkvæmt teikningu í eignaskiptasamning 4,8fm
Bílastæði eru við húsið, malbikuð og búið er að koma fyrir hleðslustaurum fyrir rafmagnsbíla.
Húsgjöld eignarinnar eru 33.675kr á mánuði , innifalið í húsgjöldum er almennur rekstur, hiti á íbúð, rafmagn í sameign, húseigandatrygging, þrif sameignar og framkvæmdarsjóður.
Teikning í auglýsingu skal einngöngu notuð til að gera sér grein fyrir ca. skipulagi eignar.
Frekari upplýsingar veitir Guðrún Antonsdóttir fasteignasali í síma 621-2020 eða á [email protected]