Löggiltir fasteignasalar innan Félags fasteignasala:
Hannes Steindórsson
Bogi Molby Pétursson
Guðrún Antonsdóttir
Heimir Hallgrímsson
Hrafnkell P. H. Pálmason
Viðar Marinósson
Elías Haraldsson
Kristján Þórir Hauksson
Albert Bjarni Úlfarsson
Ragnar Þorsteinsson
Þórey Ólafsdóttir
Andri Freyr Halldórsson
Upplýsingar
Verðsaga
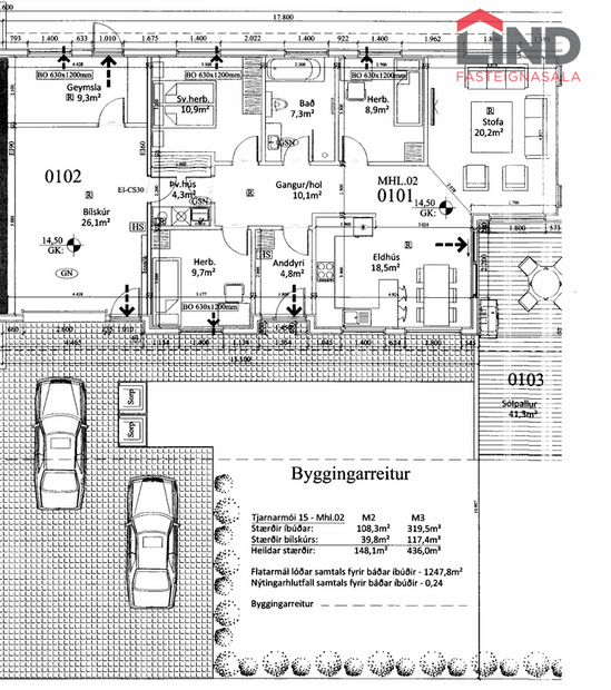
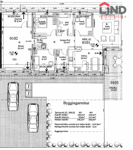
Byggt 2016
148,1 m²
4 herb.
1 baðherb.
3 svefnh.
Þvottahús
Bílskúr
Sérinngangur
Lýsing
LIND fasteignasala og Helga Pálsdóttir, löggiltur fasteignasali kynnir virkilega fallegt og einstaklega vel skipulagt parhús á eftirsóttum stað í Hagalandi á Selfossi. Húsið er timburhús, klætt að utan með lituðu járni, litað járn er á þaki. Frá stofu er útgengi um rennihurð út á stóra timburverönd með skjólveggjum og heitum potti. Heildarstærð eignarinnar er 148,1 m2 og er sambyggður bílskúr 39,8 m2 þar af. Búið er að bæta við einu svefnherbergi í hluta af bílskúr. Að innan skiptist eignin í forstofu, baðherbergi, þvottahús, tvö svefnherbergi, stofu og eldhús, auk bílskúrs.
Nánari lýsing eignar
Forstofa með parketi á gólfi og fatahengi með hirslum undir.
Baðherbergið er flísalagt með fallegri innréttingu með vaski ofan á, walk-in sturta, frístandandi baðkar, opnanlegur gluggi og handklæðaofn.
Stofa og eldhús eru í rúmgóðu opnu rými, parket er á gólfi og í eldhúsi er stór og falleg innrétting með innbyggðum ísskáp með frysti ásamt innbyggðri uppþvottavél, góð eyja sem hægt er að sitja við . Rennihurð út á verönd er í eldhúsi.
Stofa-borðstofa með parketi á gólfi , mjög rúmgóð.
Tvö svefnherbergi með parketi á gólfum og fataskápum í öðru þeirra.
Þvottahús með snyrtilegri innréttingu þar sem gert er ráð fyrir tækjum í vinnuhæð, skolvaski.
Bílskúr er með epoxy á gólfi og góðum opnum fataskápum ásamt sérsniðinni innréttingu . Búið er að stúka af þriðja svefnherbergið i hluta af bílskúr.
Helstu framkvæmdir síðustu tveggja ára.
* Nýir frontar á eldhúsinnréttingu
* Nýjar borðplötur á eldhúsinnréttingu
* Nýr bakaraofn
* Innbyggður ísskápur með frysti og uppþvottavél endurnýjuð
* Nýr vaskur og blöndunartæki í eldhúsi
* Nýir frontar á þvottahúsinnréttingu
* Bætt við fataskáp í hjónaherbergi
* Aukaherbergi útbúið í hluta af bílskúr
* Fataskápar settir upp í bílskúr ásamt snyrtilegri innréttingu
* Útigeymsla byggð úti í garði fyrir sláttuvél, úti dóti og þess háttar
Í göngufæri er nýlegur skóli og leikskóli ásamt þvi að stutt er í matvörubúð og alla almenna þjónustu. Lóðin er gróin og falleg. Í heildina er um að ræða mjög smekklegt parhús í rólegu hverfi á Selfossi. Allar upplýsingar um eignina veitir Helga Pálsdóttir fasteignasali í síma 822 2123 eða [email protected]
Nánari lýsing eignar
Forstofa með parketi á gólfi og fatahengi með hirslum undir.
Baðherbergið er flísalagt með fallegri innréttingu með vaski ofan á, walk-in sturta, frístandandi baðkar, opnanlegur gluggi og handklæðaofn.
Stofa og eldhús eru í rúmgóðu opnu rými, parket er á gólfi og í eldhúsi er stór og falleg innrétting með innbyggðum ísskáp með frysti ásamt innbyggðri uppþvottavél, góð eyja sem hægt er að sitja við . Rennihurð út á verönd er í eldhúsi.
Stofa-borðstofa með parketi á gólfi , mjög rúmgóð.
Tvö svefnherbergi með parketi á gólfum og fataskápum í öðru þeirra.
Þvottahús með snyrtilegri innréttingu þar sem gert er ráð fyrir tækjum í vinnuhæð, skolvaski.
Bílskúr er með epoxy á gólfi og góðum opnum fataskápum ásamt sérsniðinni innréttingu . Búið er að stúka af þriðja svefnherbergið i hluta af bílskúr.
Helstu framkvæmdir síðustu tveggja ára.
* Nýir frontar á eldhúsinnréttingu
* Nýjar borðplötur á eldhúsinnréttingu
* Nýr bakaraofn
* Innbyggður ísskápur með frysti og uppþvottavél endurnýjuð
* Nýr vaskur og blöndunartæki í eldhúsi
* Nýir frontar á þvottahúsinnréttingu
* Bætt við fataskáp í hjónaherbergi
* Aukaherbergi útbúið í hluta af bílskúr
* Fataskápar settir upp í bílskúr ásamt snyrtilegri innréttingu
* Útigeymsla byggð úti í garði fyrir sláttuvél, úti dóti og þess háttar
Í göngufæri er nýlegur skóli og leikskóli ásamt þvi að stutt er í matvörubúð og alla almenna þjónustu. Lóðin er gróin og falleg. Í heildina er um að ræða mjög smekklegt parhús í rólegu hverfi á Selfossi. Allar upplýsingar um eignina veitir Helga Pálsdóttir fasteignasali í síma 822 2123 eða [email protected]
Ár
Fasteignamat
Kaupverð
Stærð
Fermetraverð
4. okt. 2023
73.750.000 kr.
84.000.000 kr.
148.1 m²
567.184 kr.
31. ágú. 2016
3.390.000 kr.
25.900.000 kr.
148.1 m²
174.882 kr.
Byggt á upplýsingum úr Þjóðskrá Íslands frá 2006-2026