Upplýsingar
Verðsaga
Byggt 2017
64,2 m²
2 herb.
1 baðherb.
1 svefnh.
Sameiginl. inngangur
Lyfta
Lýsing
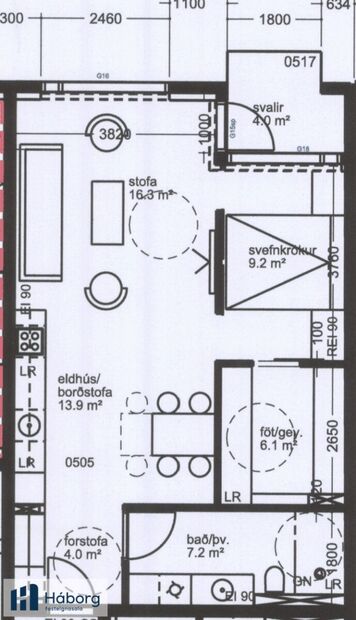
Háborg kynnir lausa til afhendingar sérlega glæsilega 2ja herbergja útsýnisíbúð á 5.hæð í hjarta borgarinnar með stórbrotnu útsýni til sjávar og fjalla. Íbúðin er 63,2 fm og geymsla í kjallara er 1 fm, samtals 64,2 fm. Glæsilegt alrými með stórum gólfsíðum útsýnisglugga, rúmgott svefnherbergi með stóru fataherbergi inn af og mjög rúmgott baðherbergi með þvottaaðstöðu. Vandað eikarparket og eikarinnréttingar. Gólfihiti og steinn í borðum. Glæsileg vegleg sameign með sjónsteypu.
Allar frekari upplýsingar gefur Þórunn Pálsdóttir lgf s:773-6000 og [email protected].
Bæði er inngangur í bygginguna frá Tryggvagötu og Geirsgötu, en sameignin er einkar glæsileg með marmara á gólfum og sjónsteypu á veggjum.
Húsið er afar smekklega hannað af Hildigunni Haraldsdóttur með sjónsteypu bæði á ytra byrði og á veggjum í sameign.Rúmgóðar hjólageymslur eru bæði á fyrstu hæð og í kjallara.
Íbúðin er afar vel skipulgögð þar sem allir fermetrar eru góðir. Gengið er inn í opna forstofu með opnu fatahengi. Strax á hægri hönd er mjög rúmgott baðherbergi með þvottaaðstöðu. Gott vinnuborð og bæði er gert ráð fyrir þvottavél og þurrkara. Rúmgott sturturými með innbyggðum blöndunartækjum.
Á vinstri hönd er eldhúsveggur með innbyggðum ísskáp og uppþvottavél. Forstofan og eldhúsið er hluti af glæsilegu alrými með mögnuðu útsýni yfir gömlu höfnina, til sjávar og fjalla. Á hægri hönd úr stofu er svefnherbergið, einnig með glæsilegu sjávarútsýni og þaðan er gengið út á svalir. Rennihurðar skilja að stofu og svefnherbergi, en inn af því er rúmgott fataherbergi með góðum innréttingum.
Einstaklega skemmtileg útsýnisíbúð á besta stað í hjarta miðborgarinnar við iðandi menningu og mannlíf.
Allar frekari upplýsingar gefur Þórunn Pálsdóttir lgf s 773-6000 og [email protected]
Allar frekari upplýsingar gefur Þórunn Pálsdóttir lgf s:773-6000 og [email protected].
Bæði er inngangur í bygginguna frá Tryggvagötu og Geirsgötu, en sameignin er einkar glæsileg með marmara á gólfum og sjónsteypu á veggjum.
Húsið er afar smekklega hannað af Hildigunni Haraldsdóttur með sjónsteypu bæði á ytra byrði og á veggjum í sameign.Rúmgóðar hjólageymslur eru bæði á fyrstu hæð og í kjallara.
Íbúðin er afar vel skipulgögð þar sem allir fermetrar eru góðir. Gengið er inn í opna forstofu með opnu fatahengi. Strax á hægri hönd er mjög rúmgott baðherbergi með þvottaaðstöðu. Gott vinnuborð og bæði er gert ráð fyrir þvottavél og þurrkara. Rúmgott sturturými með innbyggðum blöndunartækjum.
Á vinstri hönd er eldhúsveggur með innbyggðum ísskáp og uppþvottavél. Forstofan og eldhúsið er hluti af glæsilegu alrými með mögnuðu útsýni yfir gömlu höfnina, til sjávar og fjalla. Á hægri hönd úr stofu er svefnherbergið, einnig með glæsilegu sjávarútsýni og þaðan er gengið út á svalir. Rennihurðar skilja að stofu og svefnherbergi, en inn af því er rúmgott fataherbergi með góðum innréttingum.
Einstaklega skemmtileg útsýnisíbúð á besta stað í hjarta miðborgarinnar við iðandi menningu og mannlíf.
Allar frekari upplýsingar gefur Þórunn Pálsdóttir lgf s 773-6000 og [email protected]
Ár
Fasteignamat
Kaupverð
Stærð
Fermetraverð
9. okt. 2025
65.750.000 kr.
75.000.000 kr.
10505 m²
7.139 kr.
24. júl. 2023
62.950.000 kr.
70.000.000 kr.
64.2 m²
1.090.343 kr.
8. apr. 2021
48.300.000 kr.
35.020.000 kr.
64.2 m²
545.483 kr.
Byggt á upplýsingum úr Þjóðskrá Íslands frá 2006-2026