Upplýsingar
Verðsaga
Byggt 2015
229,5 m²
6 herb.
2 baðherb.
4 svefnh.
Þvottahús
Útsýni
Sérinngangur
Bílastæði
Lyfta
Lýsing
Stórglæsileg lúxusíbúð að Lundi 17 á eftirsóttum stað í Kópavogi.
Glæsileg endaíbúð með sérinngangi, fjórum svefnherbergjum, tveimur baðherbergjum, yfirbyggðum svölum með sjávarútsýni og sólpalli með nuddpotti. Tvö stæði í bílakjallara fylgja. Húsið er álklætt og því viðhaldslítið.
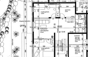
Eignin er 229,5 fm samkvæmt HMS og skiptist í efri hæð 131,5 fm, neðri hæð 90,3 fm og geymslu í sameign 7,7 fm.
Lundur var valin gata ársins í Kópavogi árið 2020.
EIGN SEM ER ÞESS VIRÐI AÐ SKOÐA!
- Endaíbúð með sérinngangi
- Tvö bílastæði í bílakjallara
- Hiti í gólfum
- Hljóðhönnuð einangrun úr ull í stofu og flestum herbergjum
- Fjögur svefnherbergi og tvö baðherbergi
- Yfirbyggðar svalir og sólpallur með nuddpotti
- Innréttingar og fataskápar í stíl frá Brúnás
- Byggt af Byggingarfélagi Gylfa og Gunnars hf. (BYGG)
- Gólfsíðir gluggar sem gera íbúðina einstaklega bjarta
Nánari upplýsingar veita:
Páll Pálsson Lgf. í síma 775-4000 eða [email protected]
Efri hæð:
Forstofa er með flísum á gólfi og góðum fataskáp.
Stofan er rúmgóð og björt með gólfsíðum gluggum sem hleypa fallegri birtu inn og parket á gólfi. Stofan myndar opið rými með eldhúsi og útgengt er á rúmgóðar yfirbyggðar svalir.
Á efri hæð er hljóðhönnuð einangrun úr ull í stofu og flestum herbergjum, sem tryggir mjúka hljóðvist og rólegt andrúmsloft sem minnir á hótelumhverfi.
Fjöldi innfelldra ljósa með dimmerum og stemningslýsingu við veggi gerir auðvelt að skapa hlýlega og persónulega birtu eftir þörfum.
Eldhúsið myndar opið rými með stofu. Gott skápapláss með vönduðum innréttingum frá Brúnás, ofn í vinnuhæð, helluborð og Elica vifta.
Hjónaherbergi er rúmgott með parket á gólfi og fataherbergi.
Svefnherbergi eru rúmgott með fataskáp og parket á gólfi.
Baðherbergið er rúmgott með baðkari. Flísalagt með góðri innréttingu með útdraganlegum skúffum, skáp fyrir ofan og spegli.
Þvottahús er rúmgott, með góðri innréttingu, skolvaski og flísum á gólfi.
Stigi niður er með glerhandriði.
Neðri hæð:
Baðherbergi er flísalagt í hólf og gólf og með sturtu. Rúmgóð innrétting með útdraganlegum skúffum, skáp fyrir ofan og spegli.
Svefnherbergi 3 er með fataskáp og parket á gólfi.
Svefnherbergi 4 er með fataskáp og parket á gólfi.
Sjónvarphol er rúmgott með parketi á gólfi. Útgengt úr sjónvarpsholi á lokaðan pall með nuddpotti.
Geymsla á neðri hæð er rúmgóð. Einnig er lokað geymslurými undir stiga.
Með eigninni fylgja tvö stæði í bílakjallara merkt B06 og B07 en einnig er sameiginlegt þvottastæði í bílakjallara.
Sérgeymsla er líka í sameign ásamt tveimur sameiginlegum hjóla og vagnageymslum.
Góð aðkoma er að húsinu og næg bílastæði.
Staðsetning:
Vinsæl staðsetning á frábærum stað í Kópavogi þar sem stutt er í alla helstu þjónustu. Verslanir, veitingastaðir, kaffihús og apótek eru í göngufjarlægð, auk glæsilegs útivistarsvæðis og göngu- og hjólaleiðir í Fossvogsdal. Öskjuhlíð er í næsta nágrenni, sem býður upp á skemmtilegar gönguleiðir, náttúru og rólegt umhverfi.
Stutt er í fjölbreytta afþreyingu og menningarstarfsemi — steinsnar er Smáralind, Kringlan, Gjáin í Salnum og Gerðarsafn.
Svæðið er sérstaklega fjölskylduvænt: hægt er að ganga eða hjóla í skóla og leikskóla án þess að fara yfir götu, þar sem stígar liggja beint frá húsinu í gegnum Fossvogsdalinn.
www.eignavakt.is
www.verdmat.is
Góð ráð fyrir kaupendur
Gjöld sem kaupandi þarf að standa straum af vegna kaupanna:
1. Stimpilgjald af kaupsamningi - 0.8% af heildarfasteignamati / 1.6% fyrir lögaðila. (0.4% við fyrstu kaup einstaklinga).
2. Þinglýsingagjald af kaupsamningi, veðskuldabréfi, veðleyfi o.fl.- kr. 2.000 af hverju skjali.
3. Lántökugjald lánastofnunar - samanber gjaldskrá viðkomandi lánastofnunar.
4. Umsýsluþóknun til fasteignasölu, sbr.kauptilboð
Um skoðunarskyldu:
Í lögum um fasteignakaup nr. 40/2002 er kveðið á um ríka skoðunarskyldu kaupenda á fasteignum. 450 fasteignasala bendir væntanlegum kaupendum á að kynna sér vel ástand fasteigna við skoðun og fyrir tilboðsgerð og ef þurfa þykir að leita til sérfræðinga um nánari ástandsskoðun.
Glæsileg endaíbúð með sérinngangi, fjórum svefnherbergjum, tveimur baðherbergjum, yfirbyggðum svölum með sjávarútsýni og sólpalli með nuddpotti. Tvö stæði í bílakjallara fylgja. Húsið er álklætt og því viðhaldslítið.
Eignin er 229,5 fm samkvæmt HMS og skiptist í efri hæð 131,5 fm, neðri hæð 90,3 fm og geymslu í sameign 7,7 fm.
Lundur var valin gata ársins í Kópavogi árið 2020.
EIGN SEM ER ÞESS VIRÐI AÐ SKOÐA!
- Endaíbúð með sérinngangi
- Tvö bílastæði í bílakjallara
- Hiti í gólfum
- Hljóðhönnuð einangrun úr ull í stofu og flestum herbergjum
- Fjögur svefnherbergi og tvö baðherbergi
- Yfirbyggðar svalir og sólpallur með nuddpotti
- Innréttingar og fataskápar í stíl frá Brúnás
- Byggt af Byggingarfélagi Gylfa og Gunnars hf. (BYGG)
- Gólfsíðir gluggar sem gera íbúðina einstaklega bjarta
Nánari upplýsingar veita:
Páll Pálsson Lgf. í síma 775-4000 eða [email protected]
Efri hæð:
Forstofa er með flísum á gólfi og góðum fataskáp.
Stofan er rúmgóð og björt með gólfsíðum gluggum sem hleypa fallegri birtu inn og parket á gólfi. Stofan myndar opið rými með eldhúsi og útgengt er á rúmgóðar yfirbyggðar svalir.
Á efri hæð er hljóðhönnuð einangrun úr ull í stofu og flestum herbergjum, sem tryggir mjúka hljóðvist og rólegt andrúmsloft sem minnir á hótelumhverfi.
Fjöldi innfelldra ljósa með dimmerum og stemningslýsingu við veggi gerir auðvelt að skapa hlýlega og persónulega birtu eftir þörfum.
Eldhúsið myndar opið rými með stofu. Gott skápapláss með vönduðum innréttingum frá Brúnás, ofn í vinnuhæð, helluborð og Elica vifta.
Hjónaherbergi er rúmgott með parket á gólfi og fataherbergi.
Svefnherbergi eru rúmgott með fataskáp og parket á gólfi.
Baðherbergið er rúmgott með baðkari. Flísalagt með góðri innréttingu með útdraganlegum skúffum, skáp fyrir ofan og spegli.
Þvottahús er rúmgott, með góðri innréttingu, skolvaski og flísum á gólfi.
Stigi niður er með glerhandriði.
Neðri hæð:
Baðherbergi er flísalagt í hólf og gólf og með sturtu. Rúmgóð innrétting með útdraganlegum skúffum, skáp fyrir ofan og spegli.
Svefnherbergi 3 er með fataskáp og parket á gólfi.
Svefnherbergi 4 er með fataskáp og parket á gólfi.
Sjónvarphol er rúmgott með parketi á gólfi. Útgengt úr sjónvarpsholi á lokaðan pall með nuddpotti.
Geymsla á neðri hæð er rúmgóð. Einnig er lokað geymslurými undir stiga.
Með eigninni fylgja tvö stæði í bílakjallara merkt B06 og B07 en einnig er sameiginlegt þvottastæði í bílakjallara.
Sérgeymsla er líka í sameign ásamt tveimur sameiginlegum hjóla og vagnageymslum.
Góð aðkoma er að húsinu og næg bílastæði.
Staðsetning:
Vinsæl staðsetning á frábærum stað í Kópavogi þar sem stutt er í alla helstu þjónustu. Verslanir, veitingastaðir, kaffihús og apótek eru í göngufjarlægð, auk glæsilegs útivistarsvæðis og göngu- og hjólaleiðir í Fossvogsdal. Öskjuhlíð er í næsta nágrenni, sem býður upp á skemmtilegar gönguleiðir, náttúru og rólegt umhverfi.
Stutt er í fjölbreytta afþreyingu og menningarstarfsemi — steinsnar er Smáralind, Kringlan, Gjáin í Salnum og Gerðarsafn.
Svæðið er sérstaklega fjölskylduvænt: hægt er að ganga eða hjóla í skóla og leikskóla án þess að fara yfir götu, þar sem stígar liggja beint frá húsinu í gegnum Fossvogsdalinn.
www.eignavakt.is
www.verdmat.is
Góð ráð fyrir kaupendur
Gjöld sem kaupandi þarf að standa straum af vegna kaupanna:
1. Stimpilgjald af kaupsamningi - 0.8% af heildarfasteignamati / 1.6% fyrir lögaðila. (0.4% við fyrstu kaup einstaklinga).
2. Þinglýsingagjald af kaupsamningi, veðskuldabréfi, veðleyfi o.fl.- kr. 2.000 af hverju skjali.
3. Lántökugjald lánastofnunar - samanber gjaldskrá viðkomandi lánastofnunar.
4. Umsýsluþóknun til fasteignasölu, sbr.kauptilboð
Um skoðunarskyldu:
Í lögum um fasteignakaup nr. 40/2002 er kveðið á um ríka skoðunarskyldu kaupenda á fasteignum. 450 fasteignasala bendir væntanlegum kaupendum á að kynna sér vel ástand fasteigna við skoðun og fyrir tilboðsgerð og ef þurfa þykir að leita til sérfræðinga um nánari ástandsskoðun.
Ár
Fasteignamat
Kaupverð
Stærð
Fermetraverð
6. feb. 2019
105.800.000 kr.
100.000.000 kr.
238.1 m²
419.992 kr.
26. ágú. 2016
35.350.000 kr.
79.000.000 kr.
238.1 m²
331.793 kr.
Byggt á upplýsingum úr Þjóðskrá Íslands frá 2006-2026