Upplýsingar
Byggt 2024
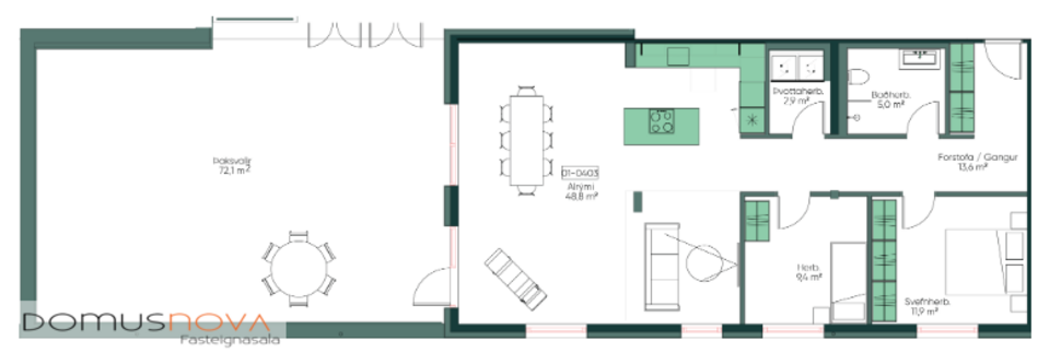
115,2 m²
3 herb.
1 baðherb.
2 svefnh.
Þvottahús
Sameiginl. inngangur
Bílastæði
Lyfta
Lýsing
Domusnova og Sölvi Sævarsson kynna: Jöfursbás 5D, - íbúð 0403, Reykjavík.
3ja-4ra herbergja endaíbúð íbúð á fjórðu hæð, íbúðin er 115,2 fm, þar af geymsla 8,5 fm. (merkt 0013).
Íbúðinni fylgir stæði merkt B038 í lokuðum bílakjallara. 72fm. flísalagðar þaksvalir með óbeinni lýsingu og gler handriði út frá stofu. Fallegt útsýni til sjávar.
Íbúðin er skemmtilega hönnuð með tveimur góðum svefnherbergjum og möguleiki á þriðja herberginu. Sér þvottahús innan íbúðar. Gólfhiti í allri íbúðinni.
--- SÝNI SAMDÆGURS ---
Allar nánari upplýsingar veitir: Sölvi Þór Sævarsson lgfs., s. 618-0064 eða [email protected]
***SÉR BÍLASTÆÐI MERKT ÍBÚÐINNI Í LOKUÐU BÍLAHÚSI Í KJALLARA FYLGIR MEÐ ÍBÚÐINNI***
Innanhúss hönnuður hefur komið að hönnun allra íbúða en í þeim má finna innréttingar sem eru sérsmíðaðar hjá VOKE-III, blöndunartæki eru frá Grohe og hreinlætistæki frá Duravit. Quartz steinn frá Technistone er á eldhúsum og böðum. Flísar á votrýmum er frá Ebson og eldhústæki frá AEG. Undirfelldir vaskar í borðplötur.
Allir kaupendur og seljendur okkar fá Gullkort Domusnova. Handhafar gullkortsins fá allt að 35% afslátt hjá 12 samstarfsaðilum okkar: Granítsmiðjan, Sérefni, Birgisson, Módern, Lín design, Tengi, Nespresso, Öryggismiðstöðin, Ísorka, Lýsing og hönnun, Sólar gluggatjöld og Bm Vallá.
Lýsing íbúðar:
Forstofa rúmgóð með stórum fataskáp
Eldhús með eyju, góðu skápaplássi og innbyggð ísskápur, frystir og uppþvottavél. Innrétting er vönduð með Quartz stein á borðplötum.
Stofa og borðstofa með góðum gólfsíðum gluggum og fallegu útsýni til sjávar. Mögulegt að gera herbergi innaf stofu.
Baðherbergi flísalögð 60x60cm ljósgráum flísum frá EBSON bæði gólf og hluti veggja, með vandaðri innréttingu með Quartz stein á baðinnréttingu frá Technistone. Tenging fyrir þvottavél og þurrkara í innréttingu á baði.
Þvottahús innan íbúðar með innréttingu og flísalagt gólf.
Hjónaherbergi er rúmgott með vönduðum fataskáp.
Svefnherbergi rúmgott með fataskáp
Þaksvalir 72 fm. flísalagðar með glerhandrið og óbeinni lýsingu.
Geymsla merkt íbúðinni í kjallara
Hjóla- og vagnageymsla í sameign
Djúpgámar á lóð fyrir flokkað rusl
Hitalagnir í helstu gönguleiðum lóðar
Allir innviðir í hverfinu sterkir þ.m.t. skólar, leikskólar, verslanir og hvers konar önnur þjónusta í næsta nágrenni.
Leiðakerfi strætó tengist Gufunesi með sérstakri þjónustu.
Allar upplýsingar á: https://gufunesid.is/
Íbúðirnar í húsinu eru samtals 26 talsins í tveimur stigahúsum, mjög fjölbreyttar 2-4 herbergja. Stærðir frá 55 fm-180 fm. Næg stæði fyrir utan hús.
Hverfið:
Við Eiðsvík í Gufunesi er að rísa spennandi íbúðabyggð í gömlu iðnaðarhverfi sem nú hýsir kvikmyndaver og fyrirtæki í skapandi greinum. Landslagið er einstakt, vogskornir klettar, strendur með svörtum og gylltum sandi, fuglalíf og útsýni yfir Geldinganes, Viðey, Esju og miðborgina. Engar götur skilja byggðina frá náttúrunni og einungis hjóla- og göngustígar liggja að hafi. Einstök náttúruperla í miðri höfuðborginni.
Það er stutt í alla þjónustu, hvort sem það er í verslun, skóla, leikskóla eða íþróttamannvirki. Í Spönginni má m.a. finna ýmsar matvöruverslanir, vínbúð, veitingastaði, bókasafn, apótek, heilsugæslu, menningarmiðstöð og tónlistarskóla. Stutt er í Vættaskóla sem er grunnskóli og Borgarholtsskóla sem er framhaldsskóli. Þá eru fjölmargir leikskólar í nágrenninu auk þess sem golfvöllur er skammt undan.
Hafið samband við eftirfarandi fasteignasala til að skoða:
Sölvi Þór Sævarsson lgfs., s. 618-0064 eða [email protected]
NÁNARI LÝSING:
HÖNNUÐIR: Húsin eru hönnuð af Nordic Arkitektum. Mikill fjölbreytileiki er bæði á ytra útliti húsinss og í gerðum og stærðum á íbúðum. Mikið var lagt upp úr gæða efnisvali og góðum lausnum.
HÚSIÐ: Húsið er klætt að utan með álklæðningu og því viðhaldslítið. Gluggarnir eru vandaðir ál-tré gluggar frá Byko sem hafa það einkenni að vera með hátt einangrunargildi fyrir hita og hljóði.
ÍBÚÐIR: Aukin lofthæð í flestum íbúðum, 280 cm og gólfsíðir gluggar víða. Vandaðar sérsmíðaðar innréttingar frá VOKE III
Quartz steinn á borðplötum í eldhúsi og frá Tecnistone á baðherbergi. Rafmagnstæki eru af vandaðri gerð frá AEG. Span hellurborð og vandaður veggofn í innréttingu.
Blöndunar- og hreinlætistæki, vaskur og salernisskál frá Duravit (Duravit D-Code og Duravit D-Neo Rimless). Blöndunartæki eru öll í krómi frá Grohe.
Á baðherbergi eru vandaðar ljósgráar 60x60cm flísar frá EBSON.
BÍLAKJALLARINN OG GEYMSLUR: Bílastæði fylgir flestum íbúðum og góðar geymslur.
SAMEIGINLEGUR GARÐUR: Einstaklega fallegur og skjólgóður. Gróður og hellulagðir/steyptir gangstígar sem að hluta til eru með snjóbræðslu ásamt lýsingu.
AFHENDING: Fyrstu íbúðir eru til afhendingar í apríl 2024.
Um skoðunar- og aðgæsluskyldu:
Í lögum um fasteignakaup nr. 40/2002 er kveðið á um ríka skoðunarskyldu kaupenda á fasteignum. DOMUSNOVA fasteignasala bendir væntanlegum kaupendum á að kynna sér vel ástand fasteigna við skoðun og fyrir tilboðsgerð og ef þurfa þykir að leita til sérfræðinga um nánari ástandsskoðun.
Forsendur söluyfirlits:
Söluyfirlit er samið af fasteignasala í samræmi við ákvæði laga nr. 70/2015. Þær upplýsingar sem fram koma í söluyfirliti þessu eru sóttar í opinberar skrár, til seljanda sjálfs og eftir atvikum til húsfélags. Seljandi veitir upplýsingar um eign í samræmi við upplýsingaskyldu laga um fasteignakaup nr. 40/2002, og ábyrgist að þær séu réttar. Fasteignasali sannreynir að þær upplýsingar séu réttar með sjónskoðun á eigninni. Fasteignasali getur ekki fullyrt um ástand og eiginleika þeirra hluta fasteigna sem ekki eru aðgengilegir og sjást ekki berum augum, t.d. lagnir, dren, skólp og þak. Það sama á við um staðhæfingar seljanda eignar um viðhald og einstaka framkvæmdir.
Seljandi áskilur sér allan rétt til að gera efnis-, tæknilegar- og útlits breytingar meðan á byggingaframkvæmd stendur.
Myndir í söluyfirliti þessu eru tölvugerðar og endurspegla gæði og efnisval íbúða almennt en eiga ekki endilega við um viðkomandi eign.
Heimild seljanda til að breyta eignaskiptasamning sé þess þörf án þess þó að rýra eignarrétt kaupanda. Innréttingateikningar eru þær sem gilda ef misræmi er milli arkitektateikninga og innréttingateikninga og eru þær áritaðar og hluti samningsins.
Gjöld sem kaupandi þarf að standa straum af vegna kaupanna:
Stimpilgjald af kaupsamningi sem er hlutfall af fasteignamati. Stimpilgjald er 0,8% fyrir einstaklinga (0,4% við fyrstu kaup) og 1,6% fyrir lögaðila.
Þinglýsingargjald af kaupsamningi, veðskuldabréfum, veðleyfum o.fl. Þinglýsingargjald er kr. 2.500,- fyrir hvert skjal.
Lántökugjald lánastofnunar. Um lántökugjald vísast í gjaldskrá viðkomandi lánveitanda.
Umsýsluþóknun fasteignasölu skv. gjaldskrá.
Ef um nýbyggingu er að ræða greiðir kaupandi skipulagsgjald, 0,3% af brunabótamáti, þegar það er lagt á.
3ja-4ra herbergja endaíbúð íbúð á fjórðu hæð, íbúðin er 115,2 fm, þar af geymsla 8,5 fm. (merkt 0013).
Íbúðinni fylgir stæði merkt B038 í lokuðum bílakjallara. 72fm. flísalagðar þaksvalir með óbeinni lýsingu og gler handriði út frá stofu. Fallegt útsýni til sjávar.
Íbúðin er skemmtilega hönnuð með tveimur góðum svefnherbergjum og möguleiki á þriðja herberginu. Sér þvottahús innan íbúðar. Gólfhiti í allri íbúðinni.
--- SÝNI SAMDÆGURS ---
Allar nánari upplýsingar veitir: Sölvi Þór Sævarsson lgfs., s. 618-0064 eða [email protected]
***SÉR BÍLASTÆÐI MERKT ÍBÚÐINNI Í LOKUÐU BÍLAHÚSI Í KJALLARA FYLGIR MEÐ ÍBÚÐINNI***
Innanhúss hönnuður hefur komið að hönnun allra íbúða en í þeim má finna innréttingar sem eru sérsmíðaðar hjá VOKE-III, blöndunartæki eru frá Grohe og hreinlætistæki frá Duravit. Quartz steinn frá Technistone er á eldhúsum og böðum. Flísar á votrýmum er frá Ebson og eldhústæki frá AEG. Undirfelldir vaskar í borðplötur.
Allir kaupendur og seljendur okkar fá Gullkort Domusnova. Handhafar gullkortsins fá allt að 35% afslátt hjá 12 samstarfsaðilum okkar: Granítsmiðjan, Sérefni, Birgisson, Módern, Lín design, Tengi, Nespresso, Öryggismiðstöðin, Ísorka, Lýsing og hönnun, Sólar gluggatjöld og Bm Vallá.
Lýsing íbúðar:
Forstofa rúmgóð með stórum fataskáp
Eldhús með eyju, góðu skápaplássi og innbyggð ísskápur, frystir og uppþvottavél. Innrétting er vönduð með Quartz stein á borðplötum.
Stofa og borðstofa með góðum gólfsíðum gluggum og fallegu útsýni til sjávar. Mögulegt að gera herbergi innaf stofu.
Baðherbergi flísalögð 60x60cm ljósgráum flísum frá EBSON bæði gólf og hluti veggja, með vandaðri innréttingu með Quartz stein á baðinnréttingu frá Technistone. Tenging fyrir þvottavél og þurrkara í innréttingu á baði.
Þvottahús innan íbúðar með innréttingu og flísalagt gólf.
Hjónaherbergi er rúmgott með vönduðum fataskáp.
Svefnherbergi rúmgott með fataskáp
Þaksvalir 72 fm. flísalagðar með glerhandrið og óbeinni lýsingu.
Geymsla merkt íbúðinni í kjallara
Hjóla- og vagnageymsla í sameign
Djúpgámar á lóð fyrir flokkað rusl
Hitalagnir í helstu gönguleiðum lóðar
Allir innviðir í hverfinu sterkir þ.m.t. skólar, leikskólar, verslanir og hvers konar önnur þjónusta í næsta nágrenni.
Leiðakerfi strætó tengist Gufunesi með sérstakri þjónustu.
Allar upplýsingar á: https://gufunesid.is/
Íbúðirnar í húsinu eru samtals 26 talsins í tveimur stigahúsum, mjög fjölbreyttar 2-4 herbergja. Stærðir frá 55 fm-180 fm. Næg stæði fyrir utan hús.
Hverfið:
Við Eiðsvík í Gufunesi er að rísa spennandi íbúðabyggð í gömlu iðnaðarhverfi sem nú hýsir kvikmyndaver og fyrirtæki í skapandi greinum. Landslagið er einstakt, vogskornir klettar, strendur með svörtum og gylltum sandi, fuglalíf og útsýni yfir Geldinganes, Viðey, Esju og miðborgina. Engar götur skilja byggðina frá náttúrunni og einungis hjóla- og göngustígar liggja að hafi. Einstök náttúruperla í miðri höfuðborginni.
Það er stutt í alla þjónustu, hvort sem það er í verslun, skóla, leikskóla eða íþróttamannvirki. Í Spönginni má m.a. finna ýmsar matvöruverslanir, vínbúð, veitingastaði, bókasafn, apótek, heilsugæslu, menningarmiðstöð og tónlistarskóla. Stutt er í Vættaskóla sem er grunnskóli og Borgarholtsskóla sem er framhaldsskóli. Þá eru fjölmargir leikskólar í nágrenninu auk þess sem golfvöllur er skammt undan.
Hafið samband við eftirfarandi fasteignasala til að skoða:
Sölvi Þór Sævarsson lgfs., s. 618-0064 eða [email protected]
NÁNARI LÝSING:
HÖNNUÐIR: Húsin eru hönnuð af Nordic Arkitektum. Mikill fjölbreytileiki er bæði á ytra útliti húsinss og í gerðum og stærðum á íbúðum. Mikið var lagt upp úr gæða efnisvali og góðum lausnum.
HÚSIÐ: Húsið er klætt að utan með álklæðningu og því viðhaldslítið. Gluggarnir eru vandaðir ál-tré gluggar frá Byko sem hafa það einkenni að vera með hátt einangrunargildi fyrir hita og hljóði.
ÍBÚÐIR: Aukin lofthæð í flestum íbúðum, 280 cm og gólfsíðir gluggar víða. Vandaðar sérsmíðaðar innréttingar frá VOKE III
Quartz steinn á borðplötum í eldhúsi og frá Tecnistone á baðherbergi. Rafmagnstæki eru af vandaðri gerð frá AEG. Span hellurborð og vandaður veggofn í innréttingu.
Blöndunar- og hreinlætistæki, vaskur og salernisskál frá Duravit (Duravit D-Code og Duravit D-Neo Rimless). Blöndunartæki eru öll í krómi frá Grohe.
Á baðherbergi eru vandaðar ljósgráar 60x60cm flísar frá EBSON.
BÍLAKJALLARINN OG GEYMSLUR: Bílastæði fylgir flestum íbúðum og góðar geymslur.
SAMEIGINLEGUR GARÐUR: Einstaklega fallegur og skjólgóður. Gróður og hellulagðir/steyptir gangstígar sem að hluta til eru með snjóbræðslu ásamt lýsingu.
AFHENDING: Fyrstu íbúðir eru til afhendingar í apríl 2024.
Um skoðunar- og aðgæsluskyldu:
Í lögum um fasteignakaup nr. 40/2002 er kveðið á um ríka skoðunarskyldu kaupenda á fasteignum. DOMUSNOVA fasteignasala bendir væntanlegum kaupendum á að kynna sér vel ástand fasteigna við skoðun og fyrir tilboðsgerð og ef þurfa þykir að leita til sérfræðinga um nánari ástandsskoðun.
Forsendur söluyfirlits:
Söluyfirlit er samið af fasteignasala í samræmi við ákvæði laga nr. 70/2015. Þær upplýsingar sem fram koma í söluyfirliti þessu eru sóttar í opinberar skrár, til seljanda sjálfs og eftir atvikum til húsfélags. Seljandi veitir upplýsingar um eign í samræmi við upplýsingaskyldu laga um fasteignakaup nr. 40/2002, og ábyrgist að þær séu réttar. Fasteignasali sannreynir að þær upplýsingar séu réttar með sjónskoðun á eigninni. Fasteignasali getur ekki fullyrt um ástand og eiginleika þeirra hluta fasteigna sem ekki eru aðgengilegir og sjást ekki berum augum, t.d. lagnir, dren, skólp og þak. Það sama á við um staðhæfingar seljanda eignar um viðhald og einstaka framkvæmdir.
Seljandi áskilur sér allan rétt til að gera efnis-, tæknilegar- og útlits breytingar meðan á byggingaframkvæmd stendur.
Myndir í söluyfirliti þessu eru tölvugerðar og endurspegla gæði og efnisval íbúða almennt en eiga ekki endilega við um viðkomandi eign.
Heimild seljanda til að breyta eignaskiptasamning sé þess þörf án þess þó að rýra eignarrétt kaupanda. Innréttingateikningar eru þær sem gilda ef misræmi er milli arkitektateikninga og innréttingateikninga og eru þær áritaðar og hluti samningsins.
Gjöld sem kaupandi þarf að standa straum af vegna kaupanna:
Stimpilgjald af kaupsamningi sem er hlutfall af fasteignamati. Stimpilgjald er 0,8% fyrir einstaklinga (0,4% við fyrstu kaup) og 1,6% fyrir lögaðila.
Þinglýsingargjald af kaupsamningi, veðskuldabréfum, veðleyfum o.fl. Þinglýsingargjald er kr. 2.500,- fyrir hvert skjal.
Lántökugjald lánastofnunar. Um lántökugjald vísast í gjaldskrá viðkomandi lánveitanda.
Umsýsluþóknun fasteignasölu skv. gjaldskrá.
Ef um nýbyggingu er að ræða greiðir kaupandi skipulagsgjald, 0,3% af brunabótamáti, þegar það er lagt á.