Upplýsingar
Byggt 2008
210 m²
5 herb.
2 baðherb.
3 svefnh.
Þvottahús
Bílskúr
Sérinngangur
Lýsing
Fasteignasala Suðurlands (s 483 3424) kynnir í einkasölu: Finnsbúð 9, Þorlákshöfn. Stórglæsilegt, afar vel staðsett og einstaklega vandað 162,4m2 einbýlishús ásamt 47,6m2 tvöföldum bílskúr. Garðurinn er verðlaunagarður með stórri verönd með heitum potti og gróðurhúsi. 3 stór herbergi eru í húsinu og innaf hjónasvítu er glæsilegt fataherbergi.
Sjón er sögu ríkari !
** Hægt er að bóka skoðun og fá allar nánari upplýsingar í síma 483 3424 og á [email protected] **
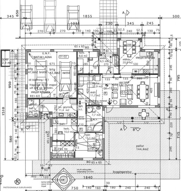
Húsið skiptist svo:
* Forstofa er flísalögð og með stórum fataskáp.
* 3 stór svefnherbergi. Í barnaherbergjum eru góðir fataskápar.
* Inn af hjónasvítu er fallegt og vel skipulagt fataherbergi með rennihurð.
* Stórglæsileg stofa og sjónvarpsstofa með upp teknu lofti með innfelldri lýsingu.
* Úr stofunni er utangengt á stóra, skjólgóða suður / vestur verönd með heitum potti.
* Glæsilegt eldhús með fallegri innréttingu með lýsingu, góðum borðkrók og flísum á gólfi og milli skápanna.
* 2 baðherbergi eru í húsinu:
Stærra baðherbergið er með sérsmíðaðri innréttingu, flísum á gólfi og veggjum, hornbaðkari og upphengdu wc.
Minna baðherbergið er með góðum skápum, flísum á gólfi og veggjum, upphengdu wc og sturtu.
* Einstaklega rúmgott þvottahús með stórri innréttingu með vask og flísum á gólfi. Úr þvottahúsinu er utangengt út á baklóð og innangengt í bílskúrinn.
* Bílskúrinn er tvöfaldur með mjög góðri innréttingu með vask, 2 aksturshurðum úr gegnheilum harðvið með rafmagnsopnurum og flísum á gólfi. Loft í bílskúrnum er upp tekið. Milliloft er að hluta yfir bílskúrnum.
** Allar innréttingar, innihurðar og fataskápar eru sérsmíðaðar. Nýlegt parket er á öllum gólfum, nema blautflötum.
** Lóðin er uppgróinn verðlaunagarður með stórri verönd með miklum og góðum skjólveggjum og heitum potti. Umhverfis húsið eru að hluta hellulagðar stéttar.
* Á lóð er gróðurhús, ca 10-12m2 með tvöföldu gleri og einnig 4-5m2 geymsluskúr.
* Bílaplanið er með fallegri stimplaðri steypu með lokuðu hitakerfi og frostlegi.
Húsið er byggt upp með forsteyptum, steinuðum, einingum.
Loft yfir stofum er upptekið með innfelldri lýsingu og annars staðar er steypt loftaplata.
Þakið er valmaþak með svörtu stölluðu járni.
FASTEIGNASALA SUÐURLANDS HEFUR VEITT VANDAÐA OG GÓÐA ÞJÓNUSTU SÍÐAN 2003 !
Fasteignasala Suðurlands, Unubakka 3b, Þorlákshöfn.
Heimasíða fasteignasölunnar: https://www.eignin.is/
Sími 483 3424
Í Þorlákshöfn er þjónustustig mjög gott - hagnýtar upplýsingar:
Verslun og þjónusta: Hér má m.a. finna:
KRÓNUVERSLUN
Apótekarann.
Rakarstofu Kjartans (facebook: kjartan rakari)
Vínbúðina.
Veitingastaðina: Thai Sakhon Restaurant (facebook: thai sakhon restaurant)
Skálann, sem jafnframt er sölustaður Orkunnar. Einnig er hér ÓB-stöð.
Caffe Bristól.
Hér er mjög góð heilsugæsla.
Hér er tannlæknir.
Í Ráðhúsi bæjarins eru, auk skrifstofu sveitarfélagsins:
Mjög gott bókasafn (facebook: Bæjarbókasafn Ölfuss) Landsbankinn
Tómstundir og afþreying:
Íþróttaiðkun í Þorlákshöfn er gríðarlega öflug og þá helst meðal barna og unglinga og er aðstaða til íþróttaiðkunar öll til mikillar fyrirmyndar.
Frá fjögurra ára aldri er í boði að iðka fótbolta (aegirfc.is), fimleika (facebook: fimleikadeild Þórs), körfubolta (facebook: Þór Þorlákshöfn) og frjálsar, ásamt því að iðkaður er badminton. Hér er svo einnig Litli íþróttaskólinn á vegum fimleikadeildarinnar fyrir börn frá eins árs aldri.
Motorcrossá braut rétt utan við bæinn.
Hestamennska (facebook: hestamannafélagið háfeti) með fallegum reiðleiðum allt um kring
Golf (facebook: golfklúbbur Þorlákshafnar) á rómuðum golfvelli sem staðsettur er í jaðri byggðarinnar, rétt við sjávarsíðuna.
Í íþróttamiðstöðinni er mjög góð líkamsræktar-aðstaða þar sem hægt er að komast í einka- þjálfun, spinning, hóptíma, líkamsrækt fyrir eldri borgara o.m.fl. Þar er að finna góða sundaðstöðumeð útilaug, heitum pottum, vaðlaug og skemmtilegri innilaug fyrir fjölskyldufólk. Jógastúdíó (Jógahornið). Öflug sjúkraþjálfun.
Afþreying er hér af ýmsum toga:
hér má meðal annars finna: Fallegt útivistarsvæði við vitann með útsýnispalli og göngustíg meðfram bjarginu í einstakri náttúrufegurð. Heilsustíg má finna í bænum þar sem líkamsræktartæki eru við göngu/hlaupastíga.
Hér er æðisleg strönd sem mikið er mikið notuð til útivistar og þar má oft sjá menn á brimbrettum, en slíkt er gott að stunda hér. Í sjónum við útsýnispallinn er einn vinsælasta staður til brimbrettaiðkunar á Íslandi.
Blackbeach tours (www.blackbeachtours.is) er afþreyingar fyrirtæki sem býður upp á fjórhjólaferðir bæði í fjöruna og um hraunið, RIB bátaferðir meðfram bjarginu og adrenalínferðir, snekkjuleigu og sjóstöng og jógaferðir úti í náttúrunni.
Einnig er hér: Öflugt leikfélag (facebook: leikfélag ölfuss).
Hinir ýmsu kórar (facebook: Tónar og Trix, Kyrjukórinn, ofl.) Einn stærsti Kiwanisklúbbur landsins (facebook: Kiwanisklúbburinn Ölver) O.sfr. o.s.frv.
** Allar helstu fréttir úr sveitafélaginu má finna á www.hafnarfrettir.is
Sjón er sögu ríkari !
** Hægt er að bóka skoðun og fá allar nánari upplýsingar í síma 483 3424 og á [email protected] **
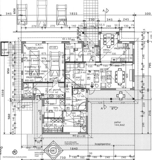
Húsið skiptist svo:
* Forstofa er flísalögð og með stórum fataskáp.
* 3 stór svefnherbergi. Í barnaherbergjum eru góðir fataskápar.
* Inn af hjónasvítu er fallegt og vel skipulagt fataherbergi með rennihurð.
* Stórglæsileg stofa og sjónvarpsstofa með upp teknu lofti með innfelldri lýsingu.
* Úr stofunni er utangengt á stóra, skjólgóða suður / vestur verönd með heitum potti.
* Glæsilegt eldhús með fallegri innréttingu með lýsingu, góðum borðkrók og flísum á gólfi og milli skápanna.
* 2 baðherbergi eru í húsinu:
Stærra baðherbergið er með sérsmíðaðri innréttingu, flísum á gólfi og veggjum, hornbaðkari og upphengdu wc.
Minna baðherbergið er með góðum skápum, flísum á gólfi og veggjum, upphengdu wc og sturtu.
* Einstaklega rúmgott þvottahús með stórri innréttingu með vask og flísum á gólfi. Úr þvottahúsinu er utangengt út á baklóð og innangengt í bílskúrinn.
* Bílskúrinn er tvöfaldur með mjög góðri innréttingu með vask, 2 aksturshurðum úr gegnheilum harðvið með rafmagnsopnurum og flísum á gólfi. Loft í bílskúrnum er upp tekið. Milliloft er að hluta yfir bílskúrnum.
** Allar innréttingar, innihurðar og fataskápar eru sérsmíðaðar. Nýlegt parket er á öllum gólfum, nema blautflötum.
** Lóðin er uppgróinn verðlaunagarður með stórri verönd með miklum og góðum skjólveggjum og heitum potti. Umhverfis húsið eru að hluta hellulagðar stéttar.
* Á lóð er gróðurhús, ca 10-12m2 með tvöföldu gleri og einnig 4-5m2 geymsluskúr.
* Bílaplanið er með fallegri stimplaðri steypu með lokuðu hitakerfi og frostlegi.
Húsið er byggt upp með forsteyptum, steinuðum, einingum.
Loft yfir stofum er upptekið með innfelldri lýsingu og annars staðar er steypt loftaplata.
Þakið er valmaþak með svörtu stölluðu járni.
FASTEIGNASALA SUÐURLANDS HEFUR VEITT VANDAÐA OG GÓÐA ÞJÓNUSTU SÍÐAN 2003 !
Fasteignasala Suðurlands, Unubakka 3b, Þorlákshöfn.
Heimasíða fasteignasölunnar: https://www.eignin.is/
Sími 483 3424
Í Þorlákshöfn er þjónustustig mjög gott - hagnýtar upplýsingar:
Verslun og þjónusta: Hér má m.a. finna:
KRÓNUVERSLUN
Apótekarann.
Rakarstofu Kjartans (facebook: kjartan rakari)
Vínbúðina.
Veitingastaðina: Thai Sakhon Restaurant (facebook: thai sakhon restaurant)
Skálann, sem jafnframt er sölustaður Orkunnar. Einnig er hér ÓB-stöð.
Caffe Bristól.
Hér er mjög góð heilsugæsla.
Hér er tannlæknir.
Í Ráðhúsi bæjarins eru, auk skrifstofu sveitarfélagsins:
Mjög gott bókasafn (facebook: Bæjarbókasafn Ölfuss) Landsbankinn
Tómstundir og afþreying:
Íþróttaiðkun í Þorlákshöfn er gríðarlega öflug og þá helst meðal barna og unglinga og er aðstaða til íþróttaiðkunar öll til mikillar fyrirmyndar.
Frá fjögurra ára aldri er í boði að iðka fótbolta (aegirfc.is), fimleika (facebook: fimleikadeild Þórs), körfubolta (facebook: Þór Þorlákshöfn) og frjálsar, ásamt því að iðkaður er badminton. Hér er svo einnig Litli íþróttaskólinn á vegum fimleikadeildarinnar fyrir börn frá eins árs aldri.
Motorcrossá braut rétt utan við bæinn.
Hestamennska (facebook: hestamannafélagið háfeti) með fallegum reiðleiðum allt um kring
Golf (facebook: golfklúbbur Þorlákshafnar) á rómuðum golfvelli sem staðsettur er í jaðri byggðarinnar, rétt við sjávarsíðuna.
Í íþróttamiðstöðinni er mjög góð líkamsræktar-aðstaða þar sem hægt er að komast í einka- þjálfun, spinning, hóptíma, líkamsrækt fyrir eldri borgara o.m.fl. Þar er að finna góða sundaðstöðumeð útilaug, heitum pottum, vaðlaug og skemmtilegri innilaug fyrir fjölskyldufólk. Jógastúdíó (Jógahornið). Öflug sjúkraþjálfun.
Afþreying er hér af ýmsum toga:
hér má meðal annars finna: Fallegt útivistarsvæði við vitann með útsýnispalli og göngustíg meðfram bjarginu í einstakri náttúrufegurð. Heilsustíg má finna í bænum þar sem líkamsræktartæki eru við göngu/hlaupastíga.
Hér er æðisleg strönd sem mikið er mikið notuð til útivistar og þar má oft sjá menn á brimbrettum, en slíkt er gott að stunda hér. Í sjónum við útsýnispallinn er einn vinsælasta staður til brimbrettaiðkunar á Íslandi.
Blackbeach tours (www.blackbeachtours.is) er afþreyingar fyrirtæki sem býður upp á fjórhjólaferðir bæði í fjöruna og um hraunið, RIB bátaferðir meðfram bjarginu og adrenalínferðir, snekkjuleigu og sjóstöng og jógaferðir úti í náttúrunni.
Einnig er hér: Öflugt leikfélag (facebook: leikfélag ölfuss).
Hinir ýmsu kórar (facebook: Tónar og Trix, Kyrjukórinn, ofl.) Einn stærsti Kiwanisklúbbur landsins (facebook: Kiwanisklúbburinn Ölver) O.sfr. o.s.frv.
** Allar helstu fréttir úr sveitafélaginu má finna á www.hafnarfrettir.is