Löggiltir fasteignasalar innan Félags fasteignasala:
Sverrir Kristinsson
Kjartan Hallgeirsson
Guðlaugur Ingi Guðlaugsson
Daði Hafþórsson
Gunnar Helgi Einarsson
Gunnar Bergmann Jónsson
Jenný Sandra Gunnarsdóttir
Vista
fjölbýlishús

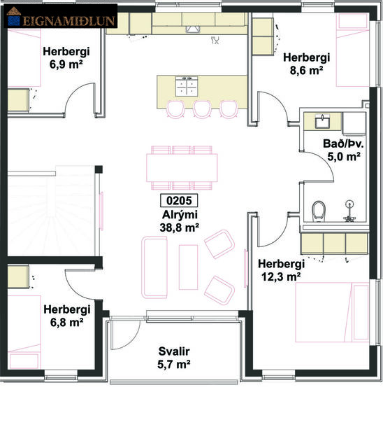
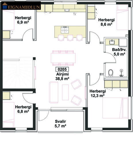
Eskiás 7 - íbúð 205

210 Garðabær

99.500.000 kr.

946.717 þ.kr./m2
Fasteignanúmer

F2512844

Fasteignamat

20.150.000 kr.

Brunabótamat

0 kr.

Áhvílandi

0 kr.

Arion banki – Reikna lán
Upplýsingar
svg
Byggt 2026
svg
105,1 m²
svg
5 herb.
svg
1 baðherb.
svg
4 svefnh.
svg
Sérinngangur
Opið hús: 12. apríl 2026 kl. 12:00 til 12:30

Eskiás 7, 210 Garðabæ. Nýr áfangi í sölu! Verið velkomin á opið hús sunnudaginn 12. apríl á milli kl 12:00 og 12:30. Fasteignasalar Eignamiðlunar taka vel á móti áhugasömum.

Lýsing

Eignamiðlun kynnir:

Íbúð 02-05 er 105.1 fm með 4 svefnherbergjum, baðherbergi með þvottaaðstöðu ásamt svölum og sérgeymslu innan íbúðar. 

Hafðu samband og bókaðu skoðun: 
Gunnar Bergmann Jónsson - Löggiltur fasteignasali - sími 6903408 eða [email protected]

Fallegar íbúðir í nýju fjölbýli á góðum stað í Garðabæ.
Allar íbúðirnar eru með sérinngangi, vönduðum innréttingum og sérgeymslu innan íbúðar.
Afhending er áætluð í júní 2026.

Frágangur:
-     Íbúðirnar afhendast fullfrágengnar fyrir utan megingólfefni en flísar á baðherbergjum/þvottahúsi.
-     Innréttingar í eldhúsi verða af vandaðri gerð frá NOBILIA og fataskápar frá Trésmiðju GKS.
-     Eldhústæki verða; blástursofn, spanhelluborð og innbyggður ísskápur frá Whirlpool sem þjónustað er af Heimilistækjum.
-     Baðherbergi/þvottahús eru forframleidd og hífð inn í hús samhliða uppsteypu húsanna. Söluaðili baðherbergjanna er Wilbergs/Bitter ehf. (Parki) og eru þau hönnuð af Boxen samkvæmt norskum stöðlum. Mikið er lagt upp úr vönduðum frágang og er allt efni og búnaður af þekktri og viðurkenndri gerð.  
-    Öll hreinlætistæki eru af vandaðri gerð frá Grohe.
-    Ljósleiðarar frá OR og Mílu eru í hverri íbúð.
-    Rafbílahleðslukerfi verður fyrir hendi. 

Skoða heimasíðu verkefnis

Nánari upplýsingar veita fasteignasalar Eignamiðlunar:
Oddný María Kristinsdóttir 777-3711 | [email protected]
Gunnar Bergmann Jónsson 839-1600 | [email protected]
Kári Sighvatsson 899-8815 | [email protected]
Alfreð B. Valencia 776-2150 | [email protected] 
Lilja Guðmundsdóttir 649-3868 | [email protected]

***
Ábyrg þjónusta í áratugi. Eignamiðlun var stofnuð 1957 og er elsta starfandi fasteignasala á Íslandi. Reynsla, heiðarleiki og þekking á fasteignamarkaðnum eru grunnur að farsælum viðskiptum. 

Eignamiðlun Grensásvegi 11, 108 Reykjavík - Opið frá kl. 9-17 mánudaga til fimmtudaga og 9-16 á föstudögum.

Heimasíða Eignamiðlunar

Eignamiðlun á Facebook

img
Gunnar Bergmann Jónsson
Lögg.fasteignasali innan félags fasteignasala
Eignamiðlun
Grensásvegi 11, 108 Reykjavík
Eignamiðlun

Eignamiðlun

Grensásvegi 11, 108 Reykjavík
img

Gunnar Bergmann Jónsson

Grensásvegi 11, 108 Reykjavík
Eignamiðlun

Eignamiðlun

Grensásvegi 11, 108 Reykjavík

Gunnar Bergmann Jónsson

Grensásvegi 11, 108 Reykjavík