Upplýsingar
Verðsaga
Byggt 2014
105,2 m²
3 herb.
1 baðherb.
2 svefnh.
Þvottahús
Sameiginl. inngangur
Lyfta
Lýsing
Íbúðin og SELD - Með fyrirvara!
GLÆSILEG 105 FM 3JA HERB. ÍBÚÐ Á 2. HÆÐ MEÐ 14,7 FM SUÐVESTUR VERÖND Í LYFTUHÚSNÆÐI Á ÞESSUM VINSÆLA STAÐ Í KÓPAVOGI.
Samkvæmt skráningu Þjóðskrár Íslands er birt flatarmál eignarinnar 105,2 fm.
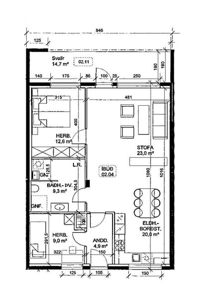
Um er að ræða rúmgóða og fallega 3ja herb. íbúð á 2. hæð í steinsteyptu lyftuhúsnæði byggðu árið 2014. Verönd (Svalarými) er skráð 14,7 fm.
Gengið er inn í rúmgóða forstofu, til vinstri við hana er minna svefnherbergið. Gengið er inn í alrými íbúðarinnar úr forstofunni, en til hægri er eldhúsið sem er opið í borðstofuna og stofuna. Baðherbergið og þvottahúsið er til vinstri við innganginn og hjónaherbergið þar inn af einnig vinstra megin. Stofan er mjög rúmgóð og er útgangur er út á verönd sem snýr til suðvesturs úr stofunni. Tvær mjög rúmgóðar sameiginlegar vagna- og hjólageymslur eru á jarðhæð, ásamt geymslu íbúðarinnar.
Forstofa/hol: Flísar á forstofu, parket er á holinu.
Eldhús: Falleg innrétting með góðu skápa- og borðplássi. Span helluborð og ofnar í vinnuhæð, opið í stofurnar, parket á gólfi.
Stofur: Bjartar og rúmgóðar, parket á gólfum og opið í eldhúsið, útgangur út á verönd eða svalarrýmið.
Svefnherbergin: Bæði herbergin eru parketlögð með góðu skápaplássi.
Baðherbergi: Flísar á gólfi, sturta, upphengt salerni, skápur undir handlaug, handklæðaofn í þvottahúsrýminu.
Þvottahús: Inn af baðherberginu, flísar á gólfi, góð aðstaða fyrir vélar, skápar og skolvaskur.
Geymsla: Sér rúmgóð geymsla á jarðhæð fylgir íbúðinni.
Sameign: Einstaklega snyrtilegur stigagangur og á jarðhæð eru tvær rúmgóðar hjólageymslur.
- Leyfi er fyrir svalalokun.
- Ljósleiðari er kominn inn í íbúðina.
- Næg bílastæði eru fyrir utan húsið, ásamt hleðslustöðum.
- Um er að ræða einstaka íbúð á frábærum stað í Kópavogi.
Um er að ræða góða 3ja herb. íbúð í nýlegu lyftuhúsnæði, í góðu hverfi í Kópavogi þar sem stutt er í alla þjónustu.
Allar nánari uppl. og skoðun veitir: Jóhann Friðgeir, lgf. GSM: 896-3038 e-mail: [email protected]
GLÆSILEG 105 FM 3JA HERB. ÍBÚÐ Á 2. HÆÐ MEÐ 14,7 FM SUÐVESTUR VERÖND Í LYFTUHÚSNÆÐI Á ÞESSUM VINSÆLA STAÐ Í KÓPAVOGI.
Samkvæmt skráningu Þjóðskrár Íslands er birt flatarmál eignarinnar 105,2 fm.
Um er að ræða rúmgóða og fallega 3ja herb. íbúð á 2. hæð í steinsteyptu lyftuhúsnæði byggðu árið 2014. Verönd (Svalarými) er skráð 14,7 fm.
Gengið er inn í rúmgóða forstofu, til vinstri við hana er minna svefnherbergið. Gengið er inn í alrými íbúðarinnar úr forstofunni, en til hægri er eldhúsið sem er opið í borðstofuna og stofuna. Baðherbergið og þvottahúsið er til vinstri við innganginn og hjónaherbergið þar inn af einnig vinstra megin. Stofan er mjög rúmgóð og er útgangur er út á verönd sem snýr til suðvesturs úr stofunni. Tvær mjög rúmgóðar sameiginlegar vagna- og hjólageymslur eru á jarðhæð, ásamt geymslu íbúðarinnar.
Forstofa/hol: Flísar á forstofu, parket er á holinu.
Eldhús: Falleg innrétting með góðu skápa- og borðplássi. Span helluborð og ofnar í vinnuhæð, opið í stofurnar, parket á gólfi.
Stofur: Bjartar og rúmgóðar, parket á gólfum og opið í eldhúsið, útgangur út á verönd eða svalarrýmið.
Svefnherbergin: Bæði herbergin eru parketlögð með góðu skápaplássi.
Baðherbergi: Flísar á gólfi, sturta, upphengt salerni, skápur undir handlaug, handklæðaofn í þvottahúsrýminu.
Þvottahús: Inn af baðherberginu, flísar á gólfi, góð aðstaða fyrir vélar, skápar og skolvaskur.
Geymsla: Sér rúmgóð geymsla á jarðhæð fylgir íbúðinni.
Sameign: Einstaklega snyrtilegur stigagangur og á jarðhæð eru tvær rúmgóðar hjólageymslur.
- Leyfi er fyrir svalalokun.
- Ljósleiðari er kominn inn í íbúðina.
- Næg bílastæði eru fyrir utan húsið, ásamt hleðslustöðum.
- Um er að ræða einstaka íbúð á frábærum stað í Kópavogi.
Um er að ræða góða 3ja herb. íbúð í nýlegu lyftuhúsnæði, í góðu hverfi í Kópavogi þar sem stutt er í alla þjónustu.
Allar nánari uppl. og skoðun veitir: Jóhann Friðgeir, lgf. GSM: 896-3038 e-mail: [email protected]
Ár
Fasteignamat
Kaupverð
Stærð
Fermetraverð
27. maí. 2022
53.400.000 kr.
64.300.000 kr.
105.2 m²
611.217 kr.
8. jan. 2015
29.450.000 kr.
31.900.000 kr.
105.2 m²
303.232 kr.
Byggt á upplýsingum úr Þjóðskrá Íslands frá 2006-2026