Upplýsingar
Byggt 2025
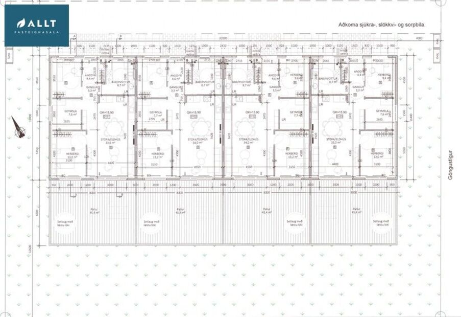
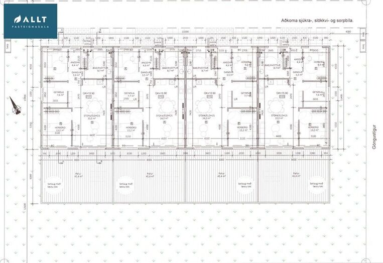
91,2 m²
3 herb.
1 baðherb.
2 svefnh.
Sérinngangur
Lýsing
ALLT Fasteignasala kynnir vandaða og fullbúna íbúð í raðhúsi við Bárusker 6, í nýju og ört vaxandi hverfi í Sandgerði, Suðurnesjabæ.
Um er að ræða vel skipulagða eign þar sem gæði, efnisval og hönnun fara vel saman í snyrtilegri heild. Bílastæði eru beint fyrir framan hverja íbúð og sorpgeymsla fylgir hverri einingu.
Nánari upplýsingar veita:
Elín Frímannsdóttir Löggiltur fasteignasali, í síma 560-5521, tölvupóstur [email protected].
Páll Þorbjörnsson Löggiltur fasteignasali, í síma 560-5501, tölvupóstur [email protected]
Forstofa er með flísum á gólfi og fataskáp.
Stofa og eldhús eru í björtu og rúmgóðu samliggjandi rými með útgengi út á baklóð.
Eldhúsinnrétting er úr dökkri hnotu og innbyggðum tækjum, þar á meðal helluborði, bakaraofni, innbyggðri uppþvottavél og innbyggðum ísskáp.
Svefnherbergi eru rúmgóð og með fataskápum.
Baðherbergi er flísalagt að hluta, með upphengdu salerni, sturtu með sturtugleri og mjög góðri innréttingu fyrir þvottavél og þurrkara. Mikið skápapláss.
Geymsla er innan íbúðar með fataskáp.
Húsið er hitað með gólfhita sem lagður er í steypta botnplötu. Innfelld LED lýsing er víðast hvar og gólfhitastýring er í hverju rými. Loftræsting er í baðherbergi, þvottarými, geymslu og eldhúsi.
ATH eignin selst án gólfefna, innihurðar fylgja með.
Nánari byggingarlýsing:
Húsin eru steypt og forsteypt með 100 mm plasteinangrun í botnplötu og 100 mm steinullareinangrun í útveggjum. Forsteyptur brunaveggur er á milli íbúða. Útveggir eru slípaðir og málaðir. Þak er heilklætt með þakpappa og báruáli og niðurföll eru tengd fráveitu bæjarins. Gluggar og útihurðir eru timbur/ál frá Velfac Rationel, dökkgráir að utan og hvítir að innan, með einangrunargleri.
Lóðin er með steyptri stétt fyrir framan íbúðir, grófri möl til hliðar við stétt og grófjöfnuðu og torf að hluta fyrir aftan hús.
Steypt sorpgeymsla fylgir hverri íbúð og gert er ráð fyrir þremur sorpílátum.
Rafmagnsídráttarrör eru fyrir bílhleðslu í sameiginlegum stæðum og lýsing er í þakkannti.
Innanhúss eru baðherbergi, þvottarými og anddyri flísalögð og íbúðir skilast án parkets í öðrum rýmum.
Veggir eru sandsparslaðir, grunnaðir og málaðir með tveimur yfirferðum. Léttir innveggir eru byggðir upp úr 45/70 mm stoðum og klæddir OSB-plötum og gipsi.
Loft eru klædd dúk með innfelldri LED lýsingu. Innihurðir sem fylgja eru sléttar, hvítar og yfirfelldar.
Sjá hér deiliskipulag hverfisins.
Nánari upplýsingar veita:
Elín Frímannsdóttir Löggiltur fasteignasali, í síma 560-5521, tölvupóstur [email protected].
Páll Þorbjörnsson Löggiltur fasteignasali, í síma 560-5501, tölvupóstur [email protected]
Vertu tilbúin(n) þegar rétta eignin birtist – skráðu eignina þín í dag og tryggðu þér forskotið.
ALLT fasteignasala er staðsett á eftirfarandi stöðum:
Hafnargötu 91, 230 Reykjanesbæ - Reykjavíkurveg 66, 220 Hafnarfirði
Kostnaður kaupanda:
1. Af gjaldskyldum skjölum skal greiða 0,8% af fasteignamati ef kaupandi er einstaklingur, fyrstukaupendur 0,4% og 1,6% af fasteignamati ef kaupandi er lögaðili.
2. Þinglýsingargjald á hvert skjal er kr. 2.700.
3. Lántökugjald fer eftir verðskrá lánastofnunar hverju sinni.
4. Umsýslugjald til ALLT fasteignasölu er kr. 69.440 m/vsk.
5. Sé um nýbyggingu um að ræða greiðir kaupandi skipulagsgjald, 0,3% af brunabótamati, þegar það er lagt á.
Skoðunar- og aðgæsluskylda kaupanda:
Í lögum um fasteignakaup nr. 40/2002 er kveðið á um ríka skoðunarskyldu kaupenda á fasteignum. ALLT fasteignasala vill beina því til væntanlegs kaupanda að kynna sér ástand fasteignar vel við skoðun og fyrir tilboðsgerð. Ef þurfa þykir er ráðlagt að leita til sérfræðifróðra aðila.
Forsendur söluyfirlits: Söluyfirlit þetta er samið af fasteignasala til samræmis við lög um sölu fasteigna og skipa nr. 70/2015. Upplýsingar þær sem koma fram í söluyfirliti þessu eru sóttar í opinberar skrár, frá seljanda og eftir atvikum til húsfélags. Seljandi veitir upplýsingar um eignina til samræmis við upplýsingaskyldu sína sbr. lög um fasteignakaup nr. 40/2002. Fasteignasali sannreynir að upplýsingar séu réttar með sjónskoðun á eigninni. Fasteignasali getur ekki fullyrt um ástand og eiginleika þeirra hluta fasteignar sem ekki eru aðgengilegir og sjást ekki með berum augum, eins og t.d. lagnir, dren, skólp og þak.
Um er að ræða vel skipulagða eign þar sem gæði, efnisval og hönnun fara vel saman í snyrtilegri heild. Bílastæði eru beint fyrir framan hverja íbúð og sorpgeymsla fylgir hverri einingu.
Nánari upplýsingar veita:
Elín Frímannsdóttir Löggiltur fasteignasali, í síma 560-5521, tölvupóstur [email protected].
Páll Þorbjörnsson Löggiltur fasteignasali, í síma 560-5501, tölvupóstur [email protected]
Forstofa er með flísum á gólfi og fataskáp.
Stofa og eldhús eru í björtu og rúmgóðu samliggjandi rými með útgengi út á baklóð.
Eldhúsinnrétting er úr dökkri hnotu og innbyggðum tækjum, þar á meðal helluborði, bakaraofni, innbyggðri uppþvottavél og innbyggðum ísskáp.
Svefnherbergi eru rúmgóð og með fataskápum.
Baðherbergi er flísalagt að hluta, með upphengdu salerni, sturtu með sturtugleri og mjög góðri innréttingu fyrir þvottavél og þurrkara. Mikið skápapláss.
Geymsla er innan íbúðar með fataskáp.
Húsið er hitað með gólfhita sem lagður er í steypta botnplötu. Innfelld LED lýsing er víðast hvar og gólfhitastýring er í hverju rými. Loftræsting er í baðherbergi, þvottarými, geymslu og eldhúsi.
ATH eignin selst án gólfefna, innihurðar fylgja með.
Nánari byggingarlýsing:
Húsin eru steypt og forsteypt með 100 mm plasteinangrun í botnplötu og 100 mm steinullareinangrun í útveggjum. Forsteyptur brunaveggur er á milli íbúða. Útveggir eru slípaðir og málaðir. Þak er heilklætt með þakpappa og báruáli og niðurföll eru tengd fráveitu bæjarins. Gluggar og útihurðir eru timbur/ál frá Velfac Rationel, dökkgráir að utan og hvítir að innan, með einangrunargleri.
Lóðin er með steyptri stétt fyrir framan íbúðir, grófri möl til hliðar við stétt og grófjöfnuðu og torf að hluta fyrir aftan hús.
Steypt sorpgeymsla fylgir hverri íbúð og gert er ráð fyrir þremur sorpílátum.
Rafmagnsídráttarrör eru fyrir bílhleðslu í sameiginlegum stæðum og lýsing er í þakkannti.
Innanhúss eru baðherbergi, þvottarými og anddyri flísalögð og íbúðir skilast án parkets í öðrum rýmum.
Veggir eru sandsparslaðir, grunnaðir og málaðir með tveimur yfirferðum. Léttir innveggir eru byggðir upp úr 45/70 mm stoðum og klæddir OSB-plötum og gipsi.
Loft eru klædd dúk með innfelldri LED lýsingu. Innihurðir sem fylgja eru sléttar, hvítar og yfirfelldar.
Sjá hér deiliskipulag hverfisins.
Nánari upplýsingar veita:
Elín Frímannsdóttir Löggiltur fasteignasali, í síma 560-5521, tölvupóstur [email protected].
Páll Þorbjörnsson Löggiltur fasteignasali, í síma 560-5501, tölvupóstur [email protected]
Vertu tilbúin(n) þegar rétta eignin birtist – skráðu eignina þín í dag og tryggðu þér forskotið.
ALLT fasteignasala er staðsett á eftirfarandi stöðum:
Hafnargötu 91, 230 Reykjanesbæ - Reykjavíkurveg 66, 220 Hafnarfirði
Kostnaður kaupanda:
1. Af gjaldskyldum skjölum skal greiða 0,8% af fasteignamati ef kaupandi er einstaklingur, fyrstukaupendur 0,4% og 1,6% af fasteignamati ef kaupandi er lögaðili.
2. Þinglýsingargjald á hvert skjal er kr. 2.700.
3. Lántökugjald fer eftir verðskrá lánastofnunar hverju sinni.
4. Umsýslugjald til ALLT fasteignasölu er kr. 69.440 m/vsk.
5. Sé um nýbyggingu um að ræða greiðir kaupandi skipulagsgjald, 0,3% af brunabótamati, þegar það er lagt á.
Skoðunar- og aðgæsluskylda kaupanda:
Í lögum um fasteignakaup nr. 40/2002 er kveðið á um ríka skoðunarskyldu kaupenda á fasteignum. ALLT fasteignasala vill beina því til væntanlegs kaupanda að kynna sér ástand fasteignar vel við skoðun og fyrir tilboðsgerð. Ef þurfa þykir er ráðlagt að leita til sérfræðifróðra aðila.
Forsendur söluyfirlits: Söluyfirlit þetta er samið af fasteignasala til samræmis við lög um sölu fasteigna og skipa nr. 70/2015. Upplýsingar þær sem koma fram í söluyfirliti þessu eru sóttar í opinberar skrár, frá seljanda og eftir atvikum til húsfélags. Seljandi veitir upplýsingar um eignina til samræmis við upplýsingaskyldu sína sbr. lög um fasteignakaup nr. 40/2002. Fasteignasali sannreynir að upplýsingar séu réttar með sjónskoðun á eigninni. Fasteignasali getur ekki fullyrt um ástand og eiginleika þeirra hluta fasteignar sem ekki eru aðgengilegir og sjást ekki með berum augum, eins og t.d. lagnir, dren, skólp og þak.