Upplýsingar
Verðsaga
Byggt 2008
127,8 m²
4 herb.
2 baðherb.
3 svefnh.
Þvottahús
Sameiginl. inngangur
Bílastæði
Lyfta
Lýsing
Fasteignasalan TORG kynnir :
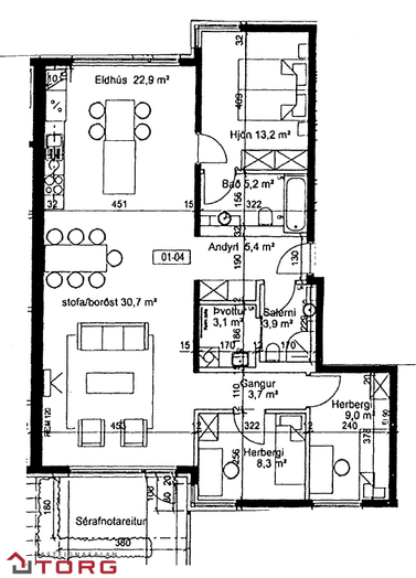
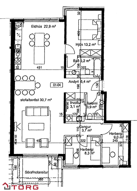
Falleg og vel skipulögð 127,8fm fjögurra herbergja íbúð á fyrstu hæð í vönduðu lyftuhúsi sem ætlað er fyrir 50 ára og eldri. Íbúðinni fylgir sér stæði í bílakjallara. Eignin skiptist í : forstofu, eldhús, stofu, borðstofu, þrjú svefnherbergi, tvö baðherbergi, þvottahús, geymslu ásamt stæði í bílageymslu. Útgengi út á hellulagða verönd sem snýr til suð/vesturs. Nánari upplýsingar veitir Helgi Jónsson Löggiltur fasteigansali í síma : 780-2700 eða á [email protected]
NÁNARI LÝSING :
Forstofa : með innbyggðum skápum, parket gólfi.
Baðherbergi : með sturtuklefa, innréttingu við vask, flísar á gólfi og veggjum.
Þvottahús : innaf baðherbergi með vinnuborði, flísar á gólfi.
Stofa / Borðstofa : rúmgóðar með parket á gólfi, útgengt út á hellulagða verönd með fallegu útsýni til vesturs.
Eldhús : með viðarinnréttingu, tengi fyrir uppþvottavél, eyja, flísar á gólfi.
Hjónaherbergi : með innbyggðum skápum, parketi á gólfi.
Baðherbergi : innaf hjónaherbergi með baðkari og innréttingu, flísar á gólfi og veggjum.
Svefnherbergi : tvö rúmgóð með skápum, parketi á gólfi.
Geymsla : 7,1fm á hæðinni.
Stæði : í bílageymslu.
Nánari upplýsingar veitir Helgi Jónsson Löggiltur fasteigansali í síma : 780-2700 eða á [email protected]
Falleg og vel skipulögð 127,8fm fjögurra herbergja íbúð á fyrstu hæð í vönduðu lyftuhúsi sem ætlað er fyrir 50 ára og eldri. Íbúðinni fylgir sér stæði í bílakjallara. Eignin skiptist í : forstofu, eldhús, stofu, borðstofu, þrjú svefnherbergi, tvö baðherbergi, þvottahús, geymslu ásamt stæði í bílageymslu. Útgengi út á hellulagða verönd sem snýr til suð/vesturs. Nánari upplýsingar veitir Helgi Jónsson Löggiltur fasteigansali í síma : 780-2700 eða á [email protected]
NÁNARI LÝSING :
Forstofa : með innbyggðum skápum, parket gólfi.
Baðherbergi : með sturtuklefa, innréttingu við vask, flísar á gólfi og veggjum.
Þvottahús : innaf baðherbergi með vinnuborði, flísar á gólfi.
Stofa / Borðstofa : rúmgóðar með parket á gólfi, útgengt út á hellulagða verönd með fallegu útsýni til vesturs.
Eldhús : með viðarinnréttingu, tengi fyrir uppþvottavél, eyja, flísar á gólfi.
Hjónaherbergi : með innbyggðum skápum, parketi á gólfi.
Baðherbergi : innaf hjónaherbergi með baðkari og innréttingu, flísar á gólfi og veggjum.
Svefnherbergi : tvö rúmgóð með skápum, parketi á gólfi.
Geymsla : 7,1fm á hæðinni.
Stæði : í bílageymslu.
Nánari upplýsingar veitir Helgi Jónsson Löggiltur fasteigansali í síma : 780-2700 eða á [email protected]
Ár
Fasteignamat
Kaupverð
Stærð
Fermetraverð
4. ágú. 2011
25.350.000 kr.
26.800.000 kr.
127.8 m²
209.703 kr.
Byggt á upplýsingum úr Þjóðskrá Íslands frá 2006-2026