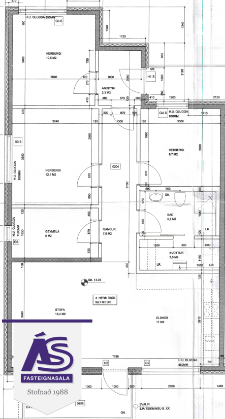
Heiðargerði, 190 Vogar