Löggiltir fasteignasalar innan Félags fasteignasala:
Halla Unnur Helgadóttir
Elín Urður Hrafnberg
Guðmunda Björnsdóttir Stackhouse
Herdís Valb. Hölludóttir
Ellert Bragi Sigurþórsson
Daði Runólfsson
Vista
fjölbýlishús

Ástún 10

200 Kópavogur

67.900.000 kr.

856.242 þ.kr./m2
Fasteignanúmer

F2058671

Fasteignamat

62.300.000 kr.

Brunabótamat

45.100.000 kr.

Áhvílandi

0 kr.

Arion banki – Reikna lán
Upplýsingar
Verðsaga
svg
Byggt 1980
svg
79,3 m²
svg
3 herb.
svg
1 baðherb.
svg
2 svefnh.
svg
Útsýni

Lýsing

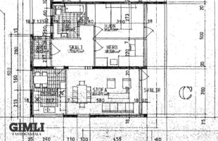
Gimli fasteignasala og Lilja Hrafnberg kynna:  FALLEG 3JA HERBERGJA ENDAÍBÚÐ Á FJÓRÐU HÆÐ (EFSTU) MEÐ FRÁBÆRU ÚTSÝNI. SÉRINNGANGUR AF SVÖLUM. EIGNIN SEM ER SKRÁÐ 79,3 FM SKIPTIST Í FORSTOFU, HOL, ELDHÚS, STOFU/BORÐSSTOFU, TVÖ SVEFNHERBERGI, BAÐHERBERGI MEÐ ÞVOTTAAÐSTÖÐU OG SÉRGEYMSLU Í SAMEIGN. 
Bókið skoðun hjá Lilja Hrafnberg  í síma 8206511, eða [email protected]

NÁNARI LÝSING:
Forstofa: með viðarlituðum fataskáp. Harðparket á gólfi. 
Hol: Úr forstofu er komið inn í hol sem tengir saman rými íbúðarinnar. Eikarparket á gólfi. 
Eldhús: Bjart og rúmgott með gluggum á tvo vegu. Snyrtileg innrétting, tengi fyrir uppþvottavél, hvít eldavél með ofni, vifta. Ljósar flísar á gólfi. Ljósar flísar milli skápa. Borðkrókur. 
Stofa/borðstofa: Rúmgóð með gluggum á tvo vegu. Útgengi á rúmgóðar svalir. Eikarparket á gólfi. 
Hjónaherbergi: Rúmgott með fataskáp og eikarparketi á gólfi. Útgengi er úr hjónaherbergi á svalir. 
Svefnherbergi #2: með fataskáp og harðparketi á gólfi. 
Baðherbergi: Rúmgott með dúk á gólfi og flísum á veggjum við baðkar sem er með sturtuaðstöðu. Hvítur vaskaskápur með handlaug. Þvottaaðstaða. 
Sérgeymsla í sameign á jarðhæð ásamt sameiginlegu þvottahús, hjóla- og vagnageymslu. 
Sérmerkt bílastæði fylgir eigninni.

Endurbætur sem hafa verið gerðar á húsinu á undanförnum árum samkvæmt seljanda:
2021 Skipt var um glugga/opnanleg fög, tréverk og gler eftir þörfum. Múrverk var hreinsað, lagað og málað. Svalagólf voru háþrýstiþvegin og máluð. Þakið var málað og flasningar settar á milli þaks og þakrenna.
2023 Skipt var um niðurfall og þakpappi lagður á þak yfir anddyri. Malbiksviðgerðir gerðar á bílastæði og þau máluð.
2024 Lagfærðar stíflaðar þakrennur sunnanmegin í húsinu. Ný hitaveitugrind og lagnir frá grind hreinsaðar 

Afar björt og falleg eign með einstaklega flottu útsýni. Staðsetning rétt við Fossvogsdalinn þar sem er frábært útivistarsvæði. Stutt er í leikskóla, grunnskóla og aðra þjónustu. 

Nánari upplýsingar veitir: Lilja Hrafnberg Viðskiptafræðingur/Löggiltur fasteignasali, í síma 8206511, tölvupóstur [email protected] eða [email protected]

Gimli fasteignasala leggur áherslu á traust, áreiðanleika og góða þjónustu.

Það er okkar trú að það skipti öllu máli í fasteignaviðskiptum að viðskiptavinurinn fái trausta og góða þjónustu. Við hjá Gimli höfum stundað fasteignaviðskipti með farsælum hætti í meira en fjóra áratugi. Hjá okkur starfa sérhæfðir og reyndir fasteignasalar sem sinna stórum sem smáum verkefnum af nákvæmni og þekkingu sem skilar árangri.

Hvar erum við?
Gimli Fasteignasala er staðsett á jarðhæð í Skipholti 35 í Reykjavík en einnig rekum við söluskrifstofu að Eyrarvegi 29. 2 hæð á Selfossi.

Við höfum opið frá 10-15 mánudaga til föstudaga. Sláðu á þráðinn eða líttu við hjá okkur í Skipholtinu næst þegar þú átt leið hjá. Við erum alltaf með heitt á könnunni. sími: 570 4800, tölvupóstur: [email protected]

Gimli gerir betur...
Heimasíða Gimli fasteignasölu

Gimli á Facebook

Um skoðunar- og aðgæsluskyldu kaupenda: Í lögum um fasteignakaup nr. 40/2002 er kveðið á um ríka skoðunarskyldu kaupenda á fasteignum. Gimli fasteignasala bendir væntanlegum kaupendum á að kynna sér vel ástand eigna við skoðun og fyrir tilboðsgerð og að leita til sérfræðinga um nánari ástandsskoðun ef þörf er á.
Forsendur söluyfirlits: Söluyfirlit er samið af fasteignasala í samræmi við ákvæði laga nr. 70/2015. Þær upplýsingar sem fram koma í söluyfirliti þessu eru sóttar í opinberar skrár, til seljanda sjálfs og eftir atvikum til húsfélags. Seljandi veitir upplýsingar um eign í samræmi við upplýsingaskyldu laga um fasteignakaup nr. 40/2002. Fasteignasali sannreynir að þær upplýsingar séu réttar með sjónskoðun á eigninni. Fasteignasali getur ekki fullyrt um ástand og eiginleika þeirra hluta fasteigna sem ekki eru aðgengilegir og sjást ekki berum augum, t.d. lagnir, dren, skólp og þak.
Gjöld sem kaupandi þarf að standa straum af vegna kaupanna:Stimpilgjald af kaupsamningi sem er hlutfall af fasteignamati. Stimpilgjald er 0,8% fyrir einstaklinga (0,4% við fyrstu kaup m.v. að lágmarki 50% eignarhlut) og 1,6% fyrir lögaðila.Þinglýsingargjald hvers skjals er kr. 3800,- .Lántökugjald lánastofnunar skv. gjaldskrá viðkomandi lánveitanda.Umsýsluþóknun fasteignasölu skv. gjaldskrá.Ef um nýbyggingu er að ræða greiðir kaupandi skipulagsgjald, 0,3% af brunabótamati, þegar það er lagt á.
Teikningar sem fylgja lýsingu eignarinnar og myndum eru til viðmiðunar og ekki alltaf í samræmi við samþykktar teikningar af eigninni.
Myndir í auglýsingu eru í einkaeigu og er notkun þeirra með öllu óheimil án formlegs leyfis fasteignasala
 

Gimli fasteignasala leggur áherslu á traust, áreiðanleika og góða þjónustu.

Það er okkar trú að það skipti öllu máli í fasteignaviðskiptum að viðskiptavinurinn fái trausta og góða þjónustu. Við hjá Gimli höfum stundað fasteignaviðskipti með farsælum hætti í meira en fjóra áratugi. Hjá okkur starfa sérhæfðir og reyndir fasteignasalar sem sinna stórum sem smáum verkefnum af nákvæmni og þekkingu sem skilar árangri.

Hvar erum við?
Gimli Fasteignasala er staðsett á jarðhæð í Skipholti 35 í Reykjavík en einnig rekum við söluskrifstofu að Eyrarvegi 29. 2 hæð á Selfossi.

Við höfum opið frá 10-15 mánudaga til föstudaga. Sláðu á þráðinn eða líttu við hjá okkur í Skipholtinu næst þegar þú átt leið hjá. Við erum alltaf með heitt á könnunni.

Gimli gerir betur...

Gimli fasteignasala

Gimli fasteignasala

Skipholt 35, 105 Reykjavík
phone
Ár
Fasteignamat
Kaupverð
Stærð
Fermetraverð
6. júl. 2021
38.550.000 kr.
43.500.000 kr.
79.3 m²
548.550 kr.
Byggt á upplýsingum úr Þjóðskrá Íslands frá 2006-2026
Gimli fasteignasala

Gimli fasteignasala

Skipholt 35, 105 Reykjavík
phone