Upplýsingar
Verðsaga
Byggt 2024
161,7 m²
6 herb.
2 baðherb.
4 svefnh.
Þvottahús
Sérinngangur
Lýsing
Hraunhamar fasteignasala kynnir: Glæsilega, nýlega og rúmgóða 5-6 herbergja efri sérhæð í 2-býli, 161,7 fm íbúð á 2 hæðum í flottu húsi (2024) Eignin er með stórum þaksvölum og sérmerktu bílastæði að Drangsskarði 6B, 221 Hafnarfjörður.
Góð staðsetning í suðurátt í Skarðshlíðinni, í göngufæri við vinsælan grunnskóla og leikskóla. Húsið er klætt að utan og því viðhaldslétt.
// Gólfhiti
// Aukin lofthæð
// 4 rúmgóð svefnherbergi + 2 stofur
// Innréttingar frá Björninn https://www.bjorninninnrettingar.is/
Skápahurðir eru hvítar eða gráar að lit
// Borðplötur frá Fanntófell https://fanntofell.is/
Eldhúsinnrétting með tækjum og búnaði frá AEG
// 98,1 fm Þaksvalir
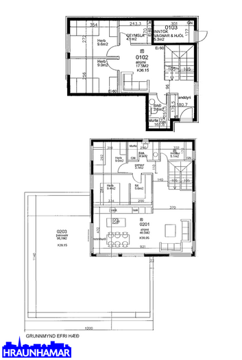
Nánari lýsing:
Neðri hæð: 59,1 fm
Anddyri: Flísar á gólfi, fataskápur
Baðherbergi: Flísar á gólfi og veggjum að hluta, handlaug, sturta með hertu glerskilrúmi, upphengt salerni.
Sjónvarpsrými: Er í miðrými á neðri hæð.
Geymsla: Innan íbúðar.
Herbergi: 9,6 fm. Fataskápur.
Herbergi: 9,0 fm. Fataskápur.
Efri hæð: 98,1 fm + þaksvalir
Stofa: Opin og björt með stórum gluggum, opin við eldhús.
Eldhús: Gott skápa- og borðpláss, eyja með spanhelluborði og innfelldum gufugleypi, innfelld uppþvottavél og ísskápur, ofn í vinnuhæð, góður borðkrókur.
Þvottaherbergi: Innan íbúðar, tengi fyrir skolvask, vaskur fylgir ekki. Gluggi.
Baðherbergi: Flísar á gólfi og veggjum að hluta, innrétting undir handlaug, sturta með hertu glerskilrúmi, upphengt salerni.
Herbergi: 9,0 fm. Fataskápur.
Hjónaherbergi: 15,0 fm. Fataherbergi.
Þaksvalir: 98,1 fm þaksvalir með glæsilegu útsýni.
Vandað harðparket og flísar á gólfum.
Lóðin er í suðurátt og er frágengin, með hellulögn og túnþökum. Inngangar/aðkoma er hellulögð.
Þetta er mjög áhugaverð eign til að skoða frekar, byggð 2024 í vinsælu nýju hverfi í Hafnarfirði.
Allar nánari uppl. gefur Helgi Jón Harðarson sölustj. s. 893-2233 [email protected] og
Glódís Helgadóttir lgf. s. 659-0510 [email protected]
Skoðunarskylda:
Í lögum um fasteignakaup nr. 40/2002 er kveðið á um ríka skoðunarskyldu kaupenda á fasteignum. Hraunhamar fasteignasala vill benda væntanlegum kaupendum á að kynna sér vel ástand fasteigna fyrir kauptilboðsgerð og ef þurfa þykir að leita til sérfræðinga fyrir nánari ástandsskoðun.
Gjöld sem kaupandi þarf að standa straum af vegna kaupanna:
1. Stimpilgjald af kaupsamningi, fyrstu kaup (0,4%), almenn kaup (0,8%), lögaðilar (1,6%) af heildarfasteignamati.
2. Þinglýsingargjald af kaupsamningi, veðskuldabréfi, mögulegu veðleyfi o.fl. – 3.800 kr. af hverju skjali.
3. Lántökugjald lánastofnunar er skv. verðskrá viðkomandi lánastofnunar.
4. Umsýslugjald til fasteignasölu skv. þjónustusamningi
Hraunhamar er elsta fasteignasala Hafnarfjarðar, stofnuð 1983.
Hraunhamar, í fararbroddi í rúm 40 ár. – Hraunhamar.is
Smelltu hér til að fá frítt söluverðmat.
Smelltu hér til að fá söluyfirlit sent strax.
Góð staðsetning í suðurátt í Skarðshlíðinni, í göngufæri við vinsælan grunnskóla og leikskóla. Húsið er klætt að utan og því viðhaldslétt.
// Gólfhiti
// Aukin lofthæð
// 4 rúmgóð svefnherbergi + 2 stofur
// Innréttingar frá Björninn https://www.bjorninninnrettingar.is/
Skápahurðir eru hvítar eða gráar að lit
// Borðplötur frá Fanntófell https://fanntofell.is/
Eldhúsinnrétting með tækjum og búnaði frá AEG
// 98,1 fm Þaksvalir
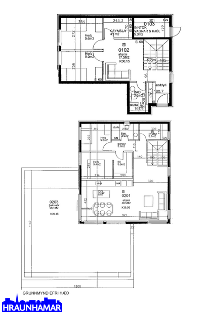
Nánari lýsing:
Neðri hæð: 59,1 fm
Anddyri: Flísar á gólfi, fataskápur
Baðherbergi: Flísar á gólfi og veggjum að hluta, handlaug, sturta með hertu glerskilrúmi, upphengt salerni.
Sjónvarpsrými: Er í miðrými á neðri hæð.
Geymsla: Innan íbúðar.
Herbergi: 9,6 fm. Fataskápur.
Herbergi: 9,0 fm. Fataskápur.
Efri hæð: 98,1 fm + þaksvalir
Stofa: Opin og björt með stórum gluggum, opin við eldhús.
Eldhús: Gott skápa- og borðpláss, eyja með spanhelluborði og innfelldum gufugleypi, innfelld uppþvottavél og ísskápur, ofn í vinnuhæð, góður borðkrókur.
Þvottaherbergi: Innan íbúðar, tengi fyrir skolvask, vaskur fylgir ekki. Gluggi.
Baðherbergi: Flísar á gólfi og veggjum að hluta, innrétting undir handlaug, sturta með hertu glerskilrúmi, upphengt salerni.
Herbergi: 9,0 fm. Fataskápur.
Hjónaherbergi: 15,0 fm. Fataherbergi.
Þaksvalir: 98,1 fm þaksvalir með glæsilegu útsýni.
Vandað harðparket og flísar á gólfum.
Lóðin er í suðurátt og er frágengin, með hellulögn og túnþökum. Inngangar/aðkoma er hellulögð.
Þetta er mjög áhugaverð eign til að skoða frekar, byggð 2024 í vinsælu nýju hverfi í Hafnarfirði.
Allar nánari uppl. gefur Helgi Jón Harðarson sölustj. s. 893-2233 [email protected] og
Glódís Helgadóttir lgf. s. 659-0510 [email protected]
Skoðunarskylda:
Í lögum um fasteignakaup nr. 40/2002 er kveðið á um ríka skoðunarskyldu kaupenda á fasteignum. Hraunhamar fasteignasala vill benda væntanlegum kaupendum á að kynna sér vel ástand fasteigna fyrir kauptilboðsgerð og ef þurfa þykir að leita til sérfræðinga fyrir nánari ástandsskoðun.
Gjöld sem kaupandi þarf að standa straum af vegna kaupanna:
1. Stimpilgjald af kaupsamningi, fyrstu kaup (0,4%), almenn kaup (0,8%), lögaðilar (1,6%) af heildarfasteignamati.
2. Þinglýsingargjald af kaupsamningi, veðskuldabréfi, mögulegu veðleyfi o.fl. – 3.800 kr. af hverju skjali.
3. Lántökugjald lánastofnunar er skv. verðskrá viðkomandi lánastofnunar.
4. Umsýslugjald til fasteignasölu skv. þjónustusamningi
Hraunhamar er elsta fasteignasala Hafnarfjarðar, stofnuð 1983.
Hraunhamar, í fararbroddi í rúm 40 ár. – Hraunhamar.is
Smelltu hér til að fá frítt söluverðmat.
Smelltu hér til að fá söluyfirlit sent strax.
Ár
Fasteignamat
Kaupverð
Stærð
Fermetraverð
25. júl. 2025
96.000.000 kr.
206.175.000 kr.
10102 m²
20.409 kr.
Byggt á upplýsingum úr Þjóðskrá Íslands frá 2006-2026