Löggiltir fasteignasalar innan Félags fasteignasala:
Hannes Steindórsson
Bogi Molby Pétursson
Guðrún Antonsdóttir
Heimir Hallgrímsson
Hrafnkell P. H. Pálmason
Viðar Marinósson
Elías Haraldsson
Kristján Þórir Hauksson
Albert Bjarni Úlfarsson
Ragnar Þorsteinsson
Þórey Ólafsdóttir
Andri Freyr Halldórsson
Upplýsingar
Byggt 2009
344,9 m²
6 herb.
4 baðherb.
4 svefnh.
Þvottahús
Bílskúr
Opið hús: 19. apríl 2026
kl. 17:00
til 17:30
Opið hús: Auðnukór 6, 203 Kópavogur. Eignin verður sýnd sunnudaginn 11. janúar 2026 milli kl. 17:00 og kl. 17:30.
Lýsing
Nýtt á skrá! Auðnukór 6 Kópavogi - Eignin er eingöngu sýnd í einkasýningum ([email protected])
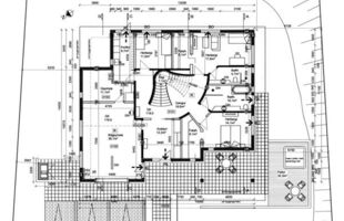
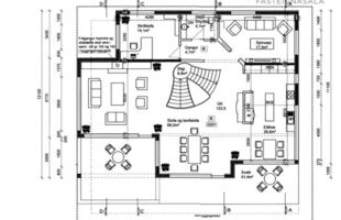
Lind fasteignasala / Heimir Hallgrímsson lögg. fasteignasali kynnir glæsilegt 7 herbergja 344,9 fermetra einbýlishús á tveimur hæðum við Auðnukór 6 í Kópavogi. Eignin skiptist í 135,7 fermetra neðri hæð, 154,3 fermetra efri hæð, 13,4 fermetra geymslu og stóran 41,5 fermetra bílskúr, samtals 344,9 fermetrar að stærð. Í dag er auka íbúð á neðri hæð með sérinngangi, stofu/eldhúskrók, svefnherbergi og baðherbergi. Auðvelt er að breyta húsinu eins og upphaflega teikningar gera ráð fyrir (sjá myndir) með fimm rúmgóðum svefnherbergjum (tvö með fataherbergi og annað einnig með baðherbergi inn af).
Um er að ræða afar vel staðsett hús með glæsilegu útsýni í grónu fjölskylduhverfi og lokuðum botlanga við Auðnukór í Kópavogi. Húsið er afar sjarmernandi með mikilli lofthæð, stórum gluggum og vönduðum sérsmíðuðum innréttingum og gólfefnum. Þá hefur húsið fengið mjög gott viðhald í gegnum árin og ber húsið þess vel merki að utan sem innan. Gólfhiti er í öllu húsinu. Mjög stórar svalir liggja út frá stofum með glæsilegu útsýni yfir höfuðborgina og til fjalla.
Aðalhæðin (efri hæð): Er vel skipulögð með stórum alrýmum og útgengi á rúmgóðar svalir með afar fallegu útsýni. Niðurtekin loft að hluta og innfelld lýsing í loftum. Fallegt útsýni er úr stofum og eldhúsi efri hæðar. Falleg eldhúsinnrétting úr ljósum við og steini á borðum og eyju. Þá eru tvö herbergi og gestasnyrting á efri hæð.
Neðri hæð: Komið er inn í stóra forstofu með miklu skápaplássi. Stórt hol þar sem gengið er upp glæsilegan steyptan stiga. Innangengt þaðan inn í bílskúr og geymslu. Stórt herbergi með fataherbergi inn baðhergi inn af (nú nýtt fyrir aukaíbúð). Þá er einnig gott herbergi (nýtt sem stofa í auka íbúð í dag). Rúmgott herbergi með fataherberg inn af. Baðherbergi og þvottaherbergi.
Lóðin er 849,0 fermetrar að stærð og er afgirt með steyptum veggjum. Bílastæði og verönd er steypt með snjóbræðslu. Heitur pottur sunnan megin við húsið. Falleg en viðhaldslítið lóð.
Nánari lýsing:
Neðri hæð:
Forstofa: Er stór með flísum á gólfum og miklu skápaplássi.
Hol: Er rúmgott þar sem við tekur glæsilegur steyptur stigi upp á efri hæð. Niðurtekið loft fyrir ofan stiga með glæsilegri led lýsingu.
Svefnherbergi I: Er stórt með flísum á gólfi. Fataherbergi er staðsett inn af herbergi og gólfsíðir gluggar til suðurs. Útgengi á verönd.
Verönd: Steypt verönd til suðurs með heitum potti.
Baðherbergi I: Með flísum á gólfi og hluta veggja. Steinn á borði og undirfelludr vaskur. Fallegt frístandandi baðkar með innfelldum blöndunartækjum. Flísalögð sturta með innfelldum blöndunartækum. Upphengt salerni og handklæðaofn. Útgengi á verönd til suðurs (að heitum potti á verönd).
Svefnherbergi II: Er stórt með fataherbergi inn af og baðherbergi II. Er í dag nýtt inn af auka íbúð (sjá 17,6 fm herbergi á teikningu)
Svefnherbergi III: Er rúmgott með flísum á gólfi og glugga til austurs. Er í dag nýtt sem stofa/eldhús fyrir auka íbúð (sjá 11,0 fm herbergi á teikningu).
Baðherbergi II: Er staðsett inn af hjónasvítu. Flísalagt gólf og veggir. Flísalögð sturta með innfelldum blöndunartækjum. Falleg innrétting við vask og baklýsing við spegil. Gluggi til suðurs og handklæðaofn
Aðalhæð.
Stofa: Er stór með flísum á gólfi. Gólfsíðir gluggar til vesturs og norðurs með afar fallegu útsýni yfir höfuðborgarsvæðið og til fjalla. Innfeld ljós í loftum.
Svalir: Er stórar með flísum á svalagólfi. Hiti er í svalagólfi. Falleg glerhandrið og glæsilegt útsýni.
Borðstofa: Er opin við stofum. Flísar á gólfi og gólfsíðir gluggar til vesturs með afar fallegu útsýni. Innfelld lýsing í loftum.
Eldhús: Er stórt með flísum á gólfi og afar fallegri eldhúsinnréttingu úr ljósum við. Steinn á borðum og eyju. Vönduð eldhústæki, m.a. tveir ofnar, innb. uppþvottavél, innb. kæliskúffur, vínkælir/auka kælir, tvöfaldur kæliskápur og helluborð í eyju. Niðurtekið loft með innfelldum ljósum. Gluggar til suðurs og vesturs með fallegu útsýni. Góður borðkrókur sem rúmar stórt borð við endan á eldhúsi.
Svefnherbergi IV (sjónvarpsstofa): Með flísum á gólfi og gluggum til austurs og suðurs. Innfelld lýsing í loftum.
Gestasnyrting: Er rúmgott, flísalagt með upphengdu salerni og innréttingu við vask. Gluggi til austurs.
Svefnherbergi V: Með flísum á gólfi, gluggum til norðurs og austurs og innfelldri lýsingu í loftum.
Bílskúr: Er 41,5 fermetrar að stærð. Flísar á bílskúrsgólfi og rafmagnsopnun á bílskúrshurð. Gluggar til norðurs. Vinnuborð og hllur. Upphitaður og heitt/kalt vatn ásamt góðri geymslu fyrir innan.
Allar nánari upplýsingar veitir:
Heimir Hallgrímsson lögg. fasteignasali í síma 849-0672 eða á netfanginu [email protected]
Lind fasteignasala / Heimir Hallgrímsson lögg. fasteignasali kynnir glæsilegt 7 herbergja 344,9 fermetra einbýlishús á tveimur hæðum við Auðnukór 6 í Kópavogi. Eignin skiptist í 135,7 fermetra neðri hæð, 154,3 fermetra efri hæð, 13,4 fermetra geymslu og stóran 41,5 fermetra bílskúr, samtals 344,9 fermetrar að stærð. Í dag er auka íbúð á neðri hæð með sérinngangi, stofu/eldhúskrók, svefnherbergi og baðherbergi. Auðvelt er að breyta húsinu eins og upphaflega teikningar gera ráð fyrir (sjá myndir) með fimm rúmgóðum svefnherbergjum (tvö með fataherbergi og annað einnig með baðherbergi inn af).
Um er að ræða afar vel staðsett hús með glæsilegu útsýni í grónu fjölskylduhverfi og lokuðum botlanga við Auðnukór í Kópavogi. Húsið er afar sjarmernandi með mikilli lofthæð, stórum gluggum og vönduðum sérsmíðuðum innréttingum og gólfefnum. Þá hefur húsið fengið mjög gott viðhald í gegnum árin og ber húsið þess vel merki að utan sem innan. Gólfhiti er í öllu húsinu. Mjög stórar svalir liggja út frá stofum með glæsilegu útsýni yfir höfuðborgina og til fjalla.
Aðalhæðin (efri hæð): Er vel skipulögð með stórum alrýmum og útgengi á rúmgóðar svalir með afar fallegu útsýni. Niðurtekin loft að hluta og innfelld lýsing í loftum. Fallegt útsýni er úr stofum og eldhúsi efri hæðar. Falleg eldhúsinnrétting úr ljósum við og steini á borðum og eyju. Þá eru tvö herbergi og gestasnyrting á efri hæð.
Neðri hæð: Komið er inn í stóra forstofu með miklu skápaplássi. Stórt hol þar sem gengið er upp glæsilegan steyptan stiga. Innangengt þaðan inn í bílskúr og geymslu. Stórt herbergi með fataherbergi inn baðhergi inn af (nú nýtt fyrir aukaíbúð). Þá er einnig gott herbergi (nýtt sem stofa í auka íbúð í dag). Rúmgott herbergi með fataherberg inn af. Baðherbergi og þvottaherbergi.
Lóðin er 849,0 fermetrar að stærð og er afgirt með steyptum veggjum. Bílastæði og verönd er steypt með snjóbræðslu. Heitur pottur sunnan megin við húsið. Falleg en viðhaldslítið lóð.
Nánari lýsing:
Neðri hæð:
Forstofa: Er stór með flísum á gólfum og miklu skápaplássi.
Hol: Er rúmgott þar sem við tekur glæsilegur steyptur stigi upp á efri hæð. Niðurtekið loft fyrir ofan stiga með glæsilegri led lýsingu.
Svefnherbergi I: Er stórt með flísum á gólfi. Fataherbergi er staðsett inn af herbergi og gólfsíðir gluggar til suðurs. Útgengi á verönd.
Verönd: Steypt verönd til suðurs með heitum potti.
Baðherbergi I: Með flísum á gólfi og hluta veggja. Steinn á borði og undirfelludr vaskur. Fallegt frístandandi baðkar með innfelldum blöndunartækjum. Flísalögð sturta með innfelldum blöndunartækum. Upphengt salerni og handklæðaofn. Útgengi á verönd til suðurs (að heitum potti á verönd).
Svefnherbergi II: Er stórt með fataherbergi inn af og baðherbergi II. Er í dag nýtt inn af auka íbúð (sjá 17,6 fm herbergi á teikningu)
Svefnherbergi III: Er rúmgott með flísum á gólfi og glugga til austurs. Er í dag nýtt sem stofa/eldhús fyrir auka íbúð (sjá 11,0 fm herbergi á teikningu).
Baðherbergi II: Er staðsett inn af hjónasvítu. Flísalagt gólf og veggir. Flísalögð sturta með innfelldum blöndunartækjum. Falleg innrétting við vask og baklýsing við spegil. Gluggi til suðurs og handklæðaofn
Aðalhæð.
Stofa: Er stór með flísum á gólfi. Gólfsíðir gluggar til vesturs og norðurs með afar fallegu útsýni yfir höfuðborgarsvæðið og til fjalla. Innfeld ljós í loftum.
Svalir: Er stórar með flísum á svalagólfi. Hiti er í svalagólfi. Falleg glerhandrið og glæsilegt útsýni.
Borðstofa: Er opin við stofum. Flísar á gólfi og gólfsíðir gluggar til vesturs með afar fallegu útsýni. Innfelld lýsing í loftum.
Eldhús: Er stórt með flísum á gólfi og afar fallegri eldhúsinnréttingu úr ljósum við. Steinn á borðum og eyju. Vönduð eldhústæki, m.a. tveir ofnar, innb. uppþvottavél, innb. kæliskúffur, vínkælir/auka kælir, tvöfaldur kæliskápur og helluborð í eyju. Niðurtekið loft með innfelldum ljósum. Gluggar til suðurs og vesturs með fallegu útsýni. Góður borðkrókur sem rúmar stórt borð við endan á eldhúsi.
Svefnherbergi IV (sjónvarpsstofa): Með flísum á gólfi og gluggum til austurs og suðurs. Innfelld lýsing í loftum.
Gestasnyrting: Er rúmgott, flísalagt með upphengdu salerni og innréttingu við vask. Gluggi til austurs.
Svefnherbergi V: Með flísum á gólfi, gluggum til norðurs og austurs og innfelldri lýsingu í loftum.
Bílskúr: Er 41,5 fermetrar að stærð. Flísar á bílskúrsgólfi og rafmagnsopnun á bílskúrshurð. Gluggar til norðurs. Vinnuborð og hllur. Upphitaður og heitt/kalt vatn ásamt góðri geymslu fyrir innan.
Allar nánari upplýsingar veitir:
Heimir Hallgrímsson lögg. fasteignasali í síma 849-0672 eða á netfanginu [email protected]