Upplýsingar
Verðsaga
Byggt 2024
98,2 m²
2 herb.
1 baðherb.
1 svefnh.
Þvottahús
Sameiginl. inngangur
Hjólastólaaðgengi
Bílastæði
Lyfta
Laus strax
Lýsing
Háborg fasteignasala og Katla kynna með stolti glæsilega 2ja herbergja endursöluíbúð á 2. hæð við Hestamýri 2B á Álftanesi.
Um er að ræða einstaklega vel skipulagða og bjarta 2ja herbergja íbúð, samtals 98,2 fm, í nýlegu lyftuhúsi, þar af 17,9 fm geymslu í kjallara og 8,5 fm svalir. Eigninni fylgir sérmerkt bílastæði í bílakjallara, merkt B12.
Íbúðin er til sölu vegna búferlaflutninga eiganda erlendis og gefst því gott tækifæri til að eignast fullbúna og vandaða eign í nýlegu húsi, án biðar. Eignin er sérstaklega áhugaverð fyrir þá sem vilja kaupa í nýbyggingu á hagstæðara verði en sambærilegar íbúðir í verkefninu, auk þess sem íbúðin nýtur mjög góðrar legu til suðvesturs.
Íbúðin hefur verið hönnuð af innanhúshönnuði og skartar vönduðum, sérsmíðuðum innréttingum frá Parka, quartz borðplötum, ítölskum flísum frá Porcelanosa og 12 mm harðparketi. Gólfhiti er í öllum rýmum og loftskiptikerfi með varmaendurvinnslu tryggir aukin þægindi og orkusparnað. Húsið er klætt með álklæðningu og bambus harðvið og í kjallara er sameiginleg hjóla- og bílageymsla.
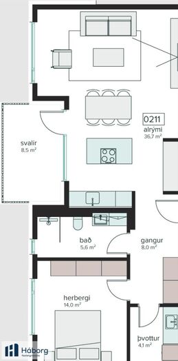
Nánari lýsing á eign nr. 211
Forstofa / gangur
Komið er inn í rúmgóða forstofu sem tengir saman öll rými íbúðarinnar. Þar er góður fataskápur og fallegt harðparket á gólfi. Góð lofthæð og skýrt skipulag gefa íbúðinni hlýlegt og fallegt yfirbragð strax við inngang.
Alrými – stofa, borðstofa og eldhús, 36,7 fm
Bjart og opið alrými með gólfsíðum gluggum sem hleypa mikilli birtu inn í rýmið. Útgengt er út á 8,5 fm svalir. Rýmið skiptist vel upp í stofu, borðstofu og eldhús með eyju. Vandaðar innréttingar frá Parka, quartz borðplötur og heimilistæki frá Ormsson setja sterkan svip á rýmið.
Eldhús
Eldhúsið er fallega hannað með sérsmíðuðum innréttingum frá Parka í melamín hnotuáferð sem gefur því hlýlegt og stílhreint yfirbragð. Borðplötur og plata milli efri og neðri skápa fyrir ofan vask eru úr White Tech Grain quartz frá Stone Italiana, sem er bæði endingargott og glæsilegt efni. Í eldhúsinu er undirlímdur vaskur með blöndunartæki frá Grohe.
Tækin eru frá Ormsson og þar má nefna spanhelluborð, blástursofn með sjálfhreinsibúnaði og kjöthitamæli, uppþvottavél, innbyggðan ísskáp og gufugleypi.
Svefnherbergi
Rúmgott svefnherbergi með góðu skápaplássi og gólfsíðum gluggum. Harðparket er á gólfi.
Baðherbergi
Fallegt baðherbergi flísalagt í hólf og gólf með ítölskum flísum frá Porcelanosa. Þar er sturta með glerþili, upphengt salerni og vaskinnrétting með quartz borðplötu.
Þvottahús
Sér þvottahús með flísalögðu gólfi, góðri innréttingu og tengi fyrir þvottavél og þurrkara ásamt hillum og skápum.
Helstu kostir
Pantið skoðun og fáið nánari upplýsingar hjá Katlu Hönnu Steed, löggiltum fasteignasala, í síma 822-1661 eða á netfangið [email protected]
Um er að ræða einstaklega vel skipulagða og bjarta 2ja herbergja íbúð, samtals 98,2 fm, í nýlegu lyftuhúsi, þar af 17,9 fm geymslu í kjallara og 8,5 fm svalir. Eigninni fylgir sérmerkt bílastæði í bílakjallara, merkt B12.
Íbúðin er til sölu vegna búferlaflutninga eiganda erlendis og gefst því gott tækifæri til að eignast fullbúna og vandaða eign í nýlegu húsi, án biðar. Eignin er sérstaklega áhugaverð fyrir þá sem vilja kaupa í nýbyggingu á hagstæðara verði en sambærilegar íbúðir í verkefninu, auk þess sem íbúðin nýtur mjög góðrar legu til suðvesturs.
Íbúðin hefur verið hönnuð af innanhúshönnuði og skartar vönduðum, sérsmíðuðum innréttingum frá Parka, quartz borðplötum, ítölskum flísum frá Porcelanosa og 12 mm harðparketi. Gólfhiti er í öllum rýmum og loftskiptikerfi með varmaendurvinnslu tryggir aukin þægindi og orkusparnað. Húsið er klætt með álklæðningu og bambus harðvið og í kjallara er sameiginleg hjóla- og bílageymsla.
Nánari lýsing á eign nr. 211
Forstofa / gangur
Komið er inn í rúmgóða forstofu sem tengir saman öll rými íbúðarinnar. Þar er góður fataskápur og fallegt harðparket á gólfi. Góð lofthæð og skýrt skipulag gefa íbúðinni hlýlegt og fallegt yfirbragð strax við inngang.
Alrými – stofa, borðstofa og eldhús, 36,7 fm
Bjart og opið alrými með gólfsíðum gluggum sem hleypa mikilli birtu inn í rýmið. Útgengt er út á 8,5 fm svalir. Rýmið skiptist vel upp í stofu, borðstofu og eldhús með eyju. Vandaðar innréttingar frá Parka, quartz borðplötur og heimilistæki frá Ormsson setja sterkan svip á rýmið.
Eldhús
Eldhúsið er fallega hannað með sérsmíðuðum innréttingum frá Parka í melamín hnotuáferð sem gefur því hlýlegt og stílhreint yfirbragð. Borðplötur og plata milli efri og neðri skápa fyrir ofan vask eru úr White Tech Grain quartz frá Stone Italiana, sem er bæði endingargott og glæsilegt efni. Í eldhúsinu er undirlímdur vaskur með blöndunartæki frá Grohe.
Tækin eru frá Ormsson og þar má nefna spanhelluborð, blástursofn með sjálfhreinsibúnaði og kjöthitamæli, uppþvottavél, innbyggðan ísskáp og gufugleypi.
Svefnherbergi
Rúmgott svefnherbergi með góðu skápaplássi og gólfsíðum gluggum. Harðparket er á gólfi.
Baðherbergi
Fallegt baðherbergi flísalagt í hólf og gólf með ítölskum flísum frá Porcelanosa. Þar er sturta með glerþili, upphengt salerni og vaskinnrétting með quartz borðplötu.
Þvottahús
Sér þvottahús með flísalögðu gólfi, góðri innréttingu og tengi fyrir þvottavél og þurrkara ásamt hillum og skápum.
Helstu kostir
- Endursala í nýbyggingu
- Til sölu vegna búferlaflutninga eiganda erlendis
- Hagstæðara verð en á sambærilegum íbúðum í verkefninu
- Mjög góð lega til suðvesturs
- Bjart og opið alrými með gólfsíðum gluggum
- Vandaðar sérsmíðaðar innréttingar frá Parka
- Quartz borðplötur og hágæða efnisval
- Ítalskar flísar frá Porcelanosa
- Gólfhiti í öllum rýmum
- Loftskiptikerfi með varmaendurvinnslu
- Sérmerkt bílastæði í bílakjallara
- 17,9 fm geymsla í kjallara
- Fullbúin eign, tilbúin til afhendingar
Pantið skoðun og fáið nánari upplýsingar hjá Katlu Hönnu Steed, löggiltum fasteignasala, í síma 822-1661 eða á netfangið [email protected]
Ár
Fasteignamat
Kaupverð
Stærð
Fermetraverð
20. mar. 2025
71.650.000 kr.
84.900.000 kr.
10211 m²
8.315 kr.
Byggt á upplýsingum úr Þjóðskrá Íslands frá 2006-2026