Löggiltir fasteignasalar innan Félags fasteignasala:
Sverrir Kristinsson
Kjartan Hallgeirsson
Guðlaugur Ingi Guðlaugsson
Daði Hafþórsson
Gunnar Helgi Einarsson
Gunnar Bergmann Jónsson
Jenný Sandra Gunnarsdóttir
Vista
svg

29

svg

27  Skoðendur

svg

Skráð  17. apr. 2026

fjölbýlishús

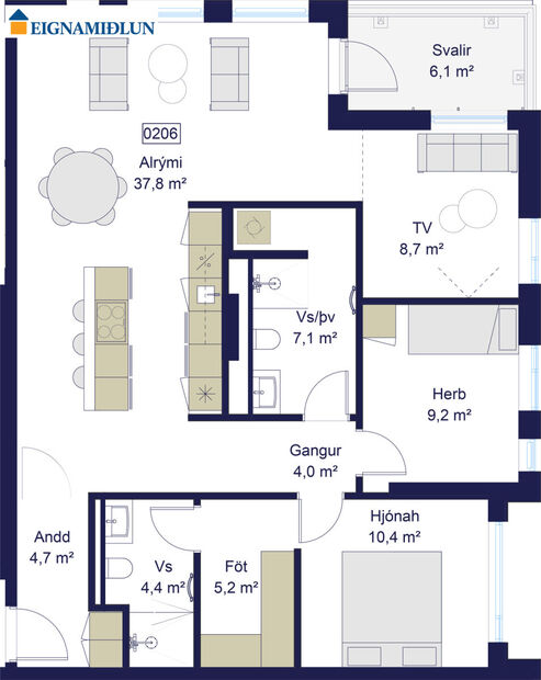
Laugavegur 170 íb 206 - Heklureitur

105 Reykjavík

119.900.000 kr.

1.027.421 þ.kr./m2
Fasteignanúmer

F2536413

Fasteignamat

0 kr.

Brunabótamat

0 kr.

Áhvílandi

0 kr.

Arion banki – Reikna lán
Upplýsingar
svg
Byggt 2025
svg
116,7 m²
svg
4 herb.
svg
2 baðherb.
svg
2 svefnh.
svg
Útsýni
svg
Sameiginl. inngangur
svg
Bílastæði
svg
Lyfta

Lýsing

Eignamiðlun kynnir:

Glæsilegar íbúðir í fjölbreyttum stærðum við Heklureit þar sem áhersla er lög á nútímalega hönnun með vönduðum sérsmíðuðum ítölskum innréttingum og nýjustu Siemens tækjum. Stæði fylgir öllum íbúðum í sölu. Gólfsíðir gluggar hleypa mikilli náttúrulegri birtu inn og auka útsýni. Gólfhiti er í öllum íbúðum. Íbúðir á efri hæðum hafa eigin þakgarða en sameiginlegur þakgarður verður einnig fyrir alla íbúa í húsinu ásamt fallegum inngarði. Frábær staðsetning í miðborginni en þó fjarri skarkala miðbæjarins.

NÁNARI UPPLÝSINGAR GEFUR: Kári Sighvatsson, lögfr. og löggiltur fasteignasali í síma 899-8815 eða [email protected]

Glæsileg horníbúð með svölum til norðurs úr stofunni. Útbúin gæða ítölskum sérsmíðuðum innréttingum og nýjustu Siemens tækjum. Sér baðherbergi og fataherbergi í hjónasvítunni. Gólfhiti er í íbúðinni og eru flestir gluggar gólfsíðir. Innréttingaþema er Hlýja með quartz borðplötum í eldhúsi. Einkastæði í bílakjallara fylgir íbúðinni.

Opinber skráning eignar: 
Horníbúð merkt 02-06 við Laugaveg 170, 105 Reykjavík. Fastanúmer eignar: 253-6413. Birt flatarmál er 116.7 fm með svölum og sérgeymslu í sameign. Stæði í bílageymslu merkt 0B-00 fylgir íbúðinni. Innréttingaþema: Hlýja með Quartz borðplötum í eldhúsi. Tölvumyndir eru af sýningaríbúð.

*** Sækja söluyfirlit ***

*** Heimasíða verkefnis ***

Hönnun:
Fágun og gæði voru höfð að leiðarljósi við hönnun íbúðanna. Gluggar nema við gólf og eru hærri til lofts til að hámarka flæði birtu og útsýnis. Gólfhiti er í öllum íbúðum. Studio Homestead komu að hönnun innréttinganna og eru þær sérsmíðaðar af ítalska fyrirtækinu Cubo Design úr Miton línunni þeirra. Borðplötur ásamt bakplötu eru úr Quarts steini sem er sérframleiddur á Ítalíu frá Santamargherita. Íbúðirnar eru búnar vönduðum tækjum frá Siemens. Spanhelluborð er með innbyggðum gufugleypi, fjölvirkur blástursofn með sjálfhreinsikerfi, innbyggð uppþvottavél og innbyggður kæliskápur. Á baðherbergjum verða innbyggð blöndunartæki í sturtu. Öll tæki hvort sem er fyrir eldhús eða bað eru valin með tilliti til gæða og endingar. 
Húsið er klætt með mismunandi litaðri álklæðningu ásamt timbri sem gefur því lifandi yfirbragð og þarfnast lítils viðhalds. Aðkeyrsla að bílakjallara er á tveimur stöðum, frá Nóatúni og Laugavegi. Gengið verður frá dreifingu fyrir rafhleðslustöðvar við öll bílastæði og því hægt með fljótum hætti að setja upp rafhleðslustöðvar við öll einkastæði. Sjá skilalýsingu hér.

Afhending miðast við árslok 2026

Nánari upplýsingar veita fasteignasalar Eignamiðlunar:
Kjartan Hallgeirsson 824-9093 [email protected]
Kári Sighvatsson 899-8815 [email protected]
Gunnar Bergmann Jónsson 839-1600 [email protected]
Brynjar Þ. Sumarliðason 896-1168 [email protected]
Rögnvaldur Örn Jónsson 660-3452 [email protected]
Unnar Kjartansson 867-0968 [email protected] 
Lilja Guðmundsdóttir 649-3868 [email protected]

***
Ábyrg þjónusta í áratugi. Eignamiðlun var stofnuð 1957 og er elsta starfandi fasteignasala á Íslandi. Reynsla, heiðarleiki og þekking á fasteignamarkaðnum eru grunnur að farsælum viðskiptum. 

Eignamiðlun Grensásvegi 11, 108 Reykjavík - Opið frá kl. 9-17 mánudaga til fimmtudaga og 9-16 á föstudögum.

Heimasíða Eignamiðlunar

Eignamiðlun á Facebook

Eignamiðlun

Eignamiðlun

Grensásvegi 11, 108 Reykjavík
Eignamiðlun

Eignamiðlun

Grensásvegi 11, 108 Reykjavík