Upplýsingar
Byggt 2025
101,4 m²
3 herb.
1 baðherb.
2 svefnh.
Sameiginl. inngangur
Bílastæði
Lyfta
Lýsing
*** Bókið skoðun fyrir allar íbúðir að Heklureit í S: 861-0125***
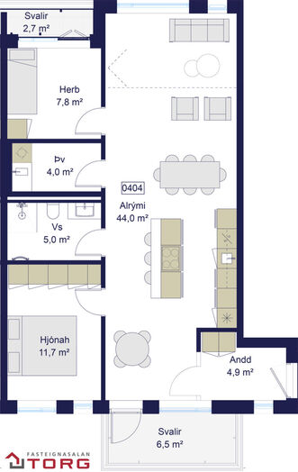
Fasteignasalan TORG Kynnir: Góð 3ja herbergja íbúð með tvennar svalir. Íbúð merkt:404 á Laugavegi 170. Íbúðin er alls 101,4fm að stærð á 4. hæð í góðu lyftuhúsi. Íbúðin sjálf er skráð 90,7fm og skiptist í anddyri, alrými með eldhúsi, borðstofu með útgengi út á svalir til suðurs og aðrar svalir til norðurs útfrá svefnherbergi. Tvö svefnherbergi, baðherbergi, sér þvottaaðstaða og sér geymslu í sameign merkt: 0021, skráð 10,7fm. Íbúðin er með bílastæði í bílakjallara merkt: B55. Allar nánari upplýsingar, teikningar og skilalýsingu er hægt að nálgast með að hafa samband við Andreu aðstoðarmann fasteignasala í GSM: 861-0125 eða [email protected] og/eða Sigurð löggiltan fasteignasala í GSM: 898-6106 eða [email protected].
Sjá nánari upplýsingar á heimasíðu verkefnisins HÉR
Sækja söluyfirlit HÉR
Heklureiturinn.
Heklureiturinn sem er Laugarvegur 168 – 174 er einn mest spennandi miðborgarreiturinn sem er í uppbyggingu í dag. Reiturinn liggur vel við öllum samgönguæðum, stutt inn á Sæbraut, Miklubraut og Kringlumýrarbraut. Þá er örstutt að ganga í miðbæinn en samt nógu langt frá til þess að verða ekki fyrir truflun þegar miðborgarlífið er í fullri sveiflu.
Úrval íbúða er einstakt frá tveggja herbergja íbúðum upp í stórar þakíbúðir sem og íbúðir á tveimur hæðum og munu henta fyrir nánast allar fjölskyldugerðir. Nokkrar með sér inngangi og/eða inngangi af svalagangi. Allir stigagangar með lyftur.
Í fyrsta áfanga verða 82 íbúðir að Laugarvegi 168 sem eru til afhendingar haustið 2025.
Heildaruppbyggingin mun skila yfir 400 íbúðum alveg við miðborgina og verður umbylting í borgarmyndinni á þessum stað.
Um er að ræða glæsilegar íbúðir í fjölbreyttum stærðum við Laugarveg þar sem áhersla er lög á nútímalega hönnun með vönduðum sérsmíðuðum ítölskum innréttingum og nýjustu Siemens tækjum. Fágun og gæði voru höfð að leiðarljósi við hönnun íbúðanna. Gluggar nema við gólf og eru hærri til lofts til að hámarka flæði birtu og útsýnis. Gólfhiti er í öllum íbúðum. Studio Homestead kom að hönnun innréttinganna og eru þær sérsmíðaðar af ítalska fyrirtækinu Cubo Design úr Miton línunni þeirra. Quarts steinn er á borðum eldhúss og baðherbergis sem sérframleiddur er á Ítalíu frá Santamargherita. Eldhústæki eru frá Siemens.
Húsið er klætt með mismunandi litaðri álklæðningu ásamt bambus sem gefur því lifandi yfirbragð og þarfnast lítils viðhalds. Aðkeyrsla að bílakjallara er á tveimur stöðum, frá Nóatúni og Laugavegi.
Skipulag:
Deiliskipulagið að reitnum eru fimm byggingar frá Laugavegi 168-174 sem verður byggt í áföngum.
Skipulagið tekur mið af því að hámarka gæði staðsetningarinnar, hvað varðar skjólið frá holtinu, útsýnið sem er í allar áttir og sérstaklega í átt að Esjunni, vestur yfir borgina og austur í fjallahringinn. Einnig til suðurs í átt að Perlunni.
Götumynd verður endurbyggð í Brautarholti, Nóatúni og við Laugaveg. Við Laugaveginn verða þjónustu- og verslunarrými þar sem áætlað er að borgarlínan muni ganga framhjá. Nálægð við þjónustu og samgöngur gefur möguleika á bíllausum lífstíl en í kjallara verða bílastæðahús þar sem hægt er að aka út hvort sem er út á Laugaveginn eða Nóatún
Hönnun:
Að hönnun húsanna á Heklureitnum koma tvær arkitektastofur, Teikna teiknistofa arkitekta og THG arkitektar. Var það gert til þess að auka fjölbreytnina í hönnuninni og sá önnur stofan um innra skipulag á meðan hin einbeitir sér að því að sjá um ytra útlit með því að skapa tilbreytni í uppbroti klæðninganna með litum og efnisvali. Um landslagshönnun sér síðan Lilja Filippusdóttir hjá Lilium teiknistofu.
Áhersla var lögð á að hvert hús hefði sinn karakter og sérkenni en eru síðan bundin saman með sameinandi þáttum í landslagshönnuninni. Til að hámarka birtu stallast húsið niður til suðurs, það ásamt gólfsíðum gluggum í flestum íbúðum eykur birtu innan íbúða.
Myndir tölvugerðar og aðeins til að gefa góða mynd af íbúðum. Sjá nánar skilalýsingu*
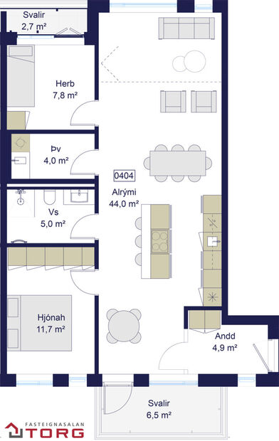
Fasteignasalan TORG Kynnir: Góð 3ja herbergja íbúð með tvennar svalir. Íbúð merkt:404 á Laugavegi 170. Íbúðin er alls 101,4fm að stærð á 4. hæð í góðu lyftuhúsi. Íbúðin sjálf er skráð 90,7fm og skiptist í anddyri, alrými með eldhúsi, borðstofu með útgengi út á svalir til suðurs og aðrar svalir til norðurs útfrá svefnherbergi. Tvö svefnherbergi, baðherbergi, sér þvottaaðstaða og sér geymslu í sameign merkt: 0021, skráð 10,7fm. Íbúðin er með bílastæði í bílakjallara merkt: B55. Allar nánari upplýsingar, teikningar og skilalýsingu er hægt að nálgast með að hafa samband við Andreu aðstoðarmann fasteignasala í GSM: 861-0125 eða [email protected] og/eða Sigurð löggiltan fasteignasala í GSM: 898-6106 eða [email protected].
Sjá nánari upplýsingar á heimasíðu verkefnisins HÉR
Sækja söluyfirlit HÉR
Heklureiturinn.
Heklureiturinn sem er Laugarvegur 168 – 174 er einn mest spennandi miðborgarreiturinn sem er í uppbyggingu í dag. Reiturinn liggur vel við öllum samgönguæðum, stutt inn á Sæbraut, Miklubraut og Kringlumýrarbraut. Þá er örstutt að ganga í miðbæinn en samt nógu langt frá til þess að verða ekki fyrir truflun þegar miðborgarlífið er í fullri sveiflu.
Úrval íbúða er einstakt frá tveggja herbergja íbúðum upp í stórar þakíbúðir sem og íbúðir á tveimur hæðum og munu henta fyrir nánast allar fjölskyldugerðir. Nokkrar með sér inngangi og/eða inngangi af svalagangi. Allir stigagangar með lyftur.
Í fyrsta áfanga verða 82 íbúðir að Laugarvegi 168 sem eru til afhendingar haustið 2025.
Heildaruppbyggingin mun skila yfir 400 íbúðum alveg við miðborgina og verður umbylting í borgarmyndinni á þessum stað.
Um er að ræða glæsilegar íbúðir í fjölbreyttum stærðum við Laugarveg þar sem áhersla er lög á nútímalega hönnun með vönduðum sérsmíðuðum ítölskum innréttingum og nýjustu Siemens tækjum. Fágun og gæði voru höfð að leiðarljósi við hönnun íbúðanna. Gluggar nema við gólf og eru hærri til lofts til að hámarka flæði birtu og útsýnis. Gólfhiti er í öllum íbúðum. Studio Homestead kom að hönnun innréttinganna og eru þær sérsmíðaðar af ítalska fyrirtækinu Cubo Design úr Miton línunni þeirra. Quarts steinn er á borðum eldhúss og baðherbergis sem sérframleiddur er á Ítalíu frá Santamargherita. Eldhústæki eru frá Siemens.
Húsið er klætt með mismunandi litaðri álklæðningu ásamt bambus sem gefur því lifandi yfirbragð og þarfnast lítils viðhalds. Aðkeyrsla að bílakjallara er á tveimur stöðum, frá Nóatúni og Laugavegi.
Skipulag:
Deiliskipulagið að reitnum eru fimm byggingar frá Laugavegi 168-174 sem verður byggt í áföngum.
Skipulagið tekur mið af því að hámarka gæði staðsetningarinnar, hvað varðar skjólið frá holtinu, útsýnið sem er í allar áttir og sérstaklega í átt að Esjunni, vestur yfir borgina og austur í fjallahringinn. Einnig til suðurs í átt að Perlunni.
Götumynd verður endurbyggð í Brautarholti, Nóatúni og við Laugaveg. Við Laugaveginn verða þjónustu- og verslunarrými þar sem áætlað er að borgarlínan muni ganga framhjá. Nálægð við þjónustu og samgöngur gefur möguleika á bíllausum lífstíl en í kjallara verða bílastæðahús þar sem hægt er að aka út hvort sem er út á Laugaveginn eða Nóatún
Hönnun:
Að hönnun húsanna á Heklureitnum koma tvær arkitektastofur, Teikna teiknistofa arkitekta og THG arkitektar. Var það gert til þess að auka fjölbreytnina í hönnuninni og sá önnur stofan um innra skipulag á meðan hin einbeitir sér að því að sjá um ytra útlit með því að skapa tilbreytni í uppbroti klæðninganna með litum og efnisvali. Um landslagshönnun sér síðan Lilja Filippusdóttir hjá Lilium teiknistofu.
Áhersla var lögð á að hvert hús hefði sinn karakter og sérkenni en eru síðan bundin saman með sameinandi þáttum í landslagshönnuninni. Til að hámarka birtu stallast húsið niður til suðurs, það ásamt gólfsíðum gluggum í flestum íbúðum eykur birtu innan íbúða.
Myndir tölvugerðar og aðeins til að gefa góða mynd af íbúðum. Sjá nánar skilalýsingu*