Upplýsingar
Verðsaga
Byggt 2021
92,3 m²
3 herb.
1 baðherb.
2 svefnh.
Þvottahús
Lýsing
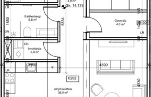
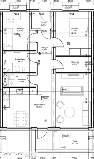
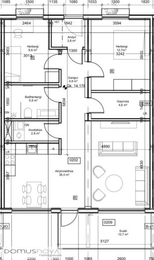
Domusnova fasteignasala og Ragga Rún lögg.fasteignasali kynnir: Fallega 3ja herbergja íbúð á 2. hæð með sérinngangi í Asparskógum 21 á Akranesi. Um er að ræða íbúð 0202 og er hún skráð 92,3 fm á stærð.
Íbúðin er björt og vel skipulögð. Stutt í útivistarsvæði, golfvöll og tvo leikskóla, allt í göngufæri.
Nánari lýsing:
Forstofa: Forstofan er með fataskáp og flísum á gólfi.
Svefnherbergi I: Svefnherbergið er 12,7 fm á stærð með fataskápum og parketi á gólfi.
Svefnherbergi II: Svefnherbergið er 9,6 fm á stærð með parketi á gólfi.
Baðherbergi: Baðherbergið er með "walk in" sturtu, innréttingu undir vask og snyrtiskáp fyrir ofan, aðstöðu fyrir þvottavél og þurrkara og flísum á gólfi.
Eldhús: Eldhúsið er með hvítum efri skápum og ljósgráum neðri skápum, innbyggðri uppþvottavél og viftu, ísskáp og parketi á gólfi.
Stofa: Stofan er í opnu rými með eldhúsinu með parketi á gólfi og útgengi á rúmgóðan sérafnotareit.
Þvottahús: Þvottahúsið 2,8 fm og er innan íbúðar.
Geymsla: Geymslan er 4,6 fm á stærð og er innan íbúðar.
Hjóla- vagnageymsla: Hjóla- og vagnageymslan er sameiginleg í sameign á jarðhæð hússins.
Um er að ræða íbúð 0202 og er hún skráð 92,3 fm á stærð þar af er geymslan 4,6 fm á stærð
Almenn lýsing:
Asparskógar 21 er fjölbýlishús á tveimur hæðum með 12 íbúðum. Sameiginleg geymsla fyrir hjól og vagna ásamt inntaksrými er á jarðhæð, ásamt geymslum fyrir hluta íbúða, aðrar geymslur eru inni í viðkomandi íbúðum. Svalagangur tengir íbúðir á efri hæð. Húsið er timburhús unnið úr einingum klædd að utan með Cembrit klæðningu og brunavarinni timburklæðningu.
Bílastæðin eru 12 við húsið.
Nánari upplýsingar veitir:
Ragnheiður Rún Gísladóttir löggiltur fasteignasali [email protected] / sími 861-4644
Um skoðunar- og aðgæsluskyldu: Í lögum um fasteignakaup nr. 40/2002 er kveðið á um ríka skoðunarskyldu kaupenda á fasteignum. DOMUSNOVA fasteignasala bendir væntanlegum kaupendum á að kynna sér vel ástand fasteigna við skoðun og fyrir tilboðsgerð og ef þurfa þykir að leita til sérfræðinga um nánari ástandsskoðun.
Forsendur söluyfirlits: Söluyfirlit er samið af fasteignasala í samræmi við ákvæði laga nr. 70/2015. Þær upplýsingar sem fram koma í söluyfirliti þessu eru sóttar í opinberar skrár, til seljanda sjálfs og eftir atvikum til húsfélags. Seljandi veitir upplýsingar um eign í samræmi við upplýsingaskyldu laga um fasteignakaup nr. 40/2002. Fasteignasali sannreynir að þær upplýsingar séu réttar með sjónskoðun á eigninni. Fasteignasali getur ekki fullyrt um ástand og eiginleika þeirra hluta fasteigna sem ekki eru aðgengilegir og sjást ekki berum augum, t.d. lagnir, dren, skólp og þak.
Gjöld sem kaupandi þarf að standa straum af vegna kaupanna: Stimpilgjald af kaupsamningi sem er hlutfall af fasteignamati. Stimpilgjald er 0,8% fyrir einstaklinga (0,4% við fyrstu kaup m.v. að lágmarki 50% eignarhlut) og 1,6% fyrir lögaðila. Þinglýsingargjald af kaupsamningi, veðskuldabréfum, veðleyfum o.fl. Þinglýsingargjald er kr. 3.800,- fyrir hvert skjal. Lántökugjald lánastofnunar. Um lántökugjald vísast í gjaldskrá viðkomandi lánveitanda. Umsýsluþóknun fasteignasölu skv. gjaldskrá.
Íbúðin er björt og vel skipulögð. Stutt í útivistarsvæði, golfvöll og tvo leikskóla, allt í göngufæri.
Nánari lýsing:
Forstofa: Forstofan er með fataskáp og flísum á gólfi.
Svefnherbergi I: Svefnherbergið er 12,7 fm á stærð með fataskápum og parketi á gólfi.
Svefnherbergi II: Svefnherbergið er 9,6 fm á stærð með parketi á gólfi.
Baðherbergi: Baðherbergið er með "walk in" sturtu, innréttingu undir vask og snyrtiskáp fyrir ofan, aðstöðu fyrir þvottavél og þurrkara og flísum á gólfi.
Eldhús: Eldhúsið er með hvítum efri skápum og ljósgráum neðri skápum, innbyggðri uppþvottavél og viftu, ísskáp og parketi á gólfi.
Stofa: Stofan er í opnu rými með eldhúsinu með parketi á gólfi og útgengi á rúmgóðan sérafnotareit.
Þvottahús: Þvottahúsið 2,8 fm og er innan íbúðar.
Geymsla: Geymslan er 4,6 fm á stærð og er innan íbúðar.
Hjóla- vagnageymsla: Hjóla- og vagnageymslan er sameiginleg í sameign á jarðhæð hússins.
Um er að ræða íbúð 0202 og er hún skráð 92,3 fm á stærð þar af er geymslan 4,6 fm á stærð
Almenn lýsing:
Asparskógar 21 er fjölbýlishús á tveimur hæðum með 12 íbúðum. Sameiginleg geymsla fyrir hjól og vagna ásamt inntaksrými er á jarðhæð, ásamt geymslum fyrir hluta íbúða, aðrar geymslur eru inni í viðkomandi íbúðum. Svalagangur tengir íbúðir á efri hæð. Húsið er timburhús unnið úr einingum klædd að utan með Cembrit klæðningu og brunavarinni timburklæðningu.
Bílastæðin eru 12 við húsið.
Nánari upplýsingar veitir:
Ragnheiður Rún Gísladóttir löggiltur fasteignasali [email protected] / sími 861-4644
Um skoðunar- og aðgæsluskyldu: Í lögum um fasteignakaup nr. 40/2002 er kveðið á um ríka skoðunarskyldu kaupenda á fasteignum. DOMUSNOVA fasteignasala bendir væntanlegum kaupendum á að kynna sér vel ástand fasteigna við skoðun og fyrir tilboðsgerð og ef þurfa þykir að leita til sérfræðinga um nánari ástandsskoðun.
Forsendur söluyfirlits: Söluyfirlit er samið af fasteignasala í samræmi við ákvæði laga nr. 70/2015. Þær upplýsingar sem fram koma í söluyfirliti þessu eru sóttar í opinberar skrár, til seljanda sjálfs og eftir atvikum til húsfélags. Seljandi veitir upplýsingar um eign í samræmi við upplýsingaskyldu laga um fasteignakaup nr. 40/2002. Fasteignasali sannreynir að þær upplýsingar séu réttar með sjónskoðun á eigninni. Fasteignasali getur ekki fullyrt um ástand og eiginleika þeirra hluta fasteigna sem ekki eru aðgengilegir og sjást ekki berum augum, t.d. lagnir, dren, skólp og þak.
Gjöld sem kaupandi þarf að standa straum af vegna kaupanna: Stimpilgjald af kaupsamningi sem er hlutfall af fasteignamati. Stimpilgjald er 0,8% fyrir einstaklinga (0,4% við fyrstu kaup m.v. að lágmarki 50% eignarhlut) og 1,6% fyrir lögaðila. Þinglýsingargjald af kaupsamningi, veðskuldabréfum, veðleyfum o.fl. Þinglýsingargjald er kr. 3.800,- fyrir hvert skjal. Lántökugjald lánastofnunar. Um lántökugjald vísast í gjaldskrá viðkomandi lánveitanda. Umsýsluþóknun fasteignasölu skv. gjaldskrá.
Ár
Fasteignamat
Kaupverð
Stærð
Fermetraverð
11. feb. 2021
36.000.000 kr.
36.900.000 kr.
92.3 m²
399.783 kr.
Byggt á upplýsingum úr Þjóðskrá Íslands frá 2006-2026