Upplýsingar
Verðsaga
392 m²
0 herb.
Lýsing
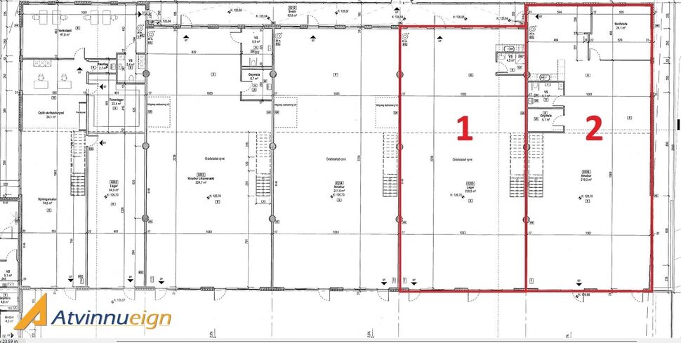
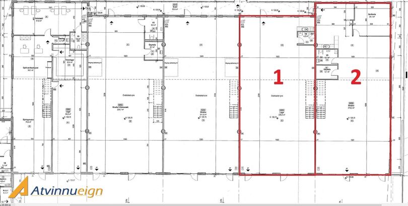
Atvinnueign kynnir til leigu: 392 fm iðnaðar- og skrifstofuhúsnæði við Tónahvarf 3.
Skammtímaleiga.
Húsnæðið er iðnaðarhúsnæði sem búið er að aðlaga sem skrifstofu- og lagerhúsnæði. Rýmið er að mestu opið rými en búið að stúka af með glerveggjum skrifstofu/fundarherbergi á grunnhæð sem og tvær skrifstofur / fundarherbergi á millilofti.
Kaffikrókur / eldhúsaðstaða á milliloft og og tvö salerni. Rými merkt nr. 2 á teikningu. Góð lofthæð.
Hægt er að fá leigt til viðbótar bil við hliðina.
Laust eftir samkomulagi.
Virðisaukaskattur bætist við leigu.
Allar nánari upplýsingar opnunartíma veitir:
Davíð Jens Guðlaugsson, löggiltur leigumiðlari í síma 846-7495 eða [email protected]
Á vefsíðu okkar getur þú fundið fleiri eignir sem og kynnt þér þjónustu Atvinnueignar ehf., www.atvinnueign.is
- Atvinnueignir eru okkar fag -
Skammtímaleiga.
Húsnæðið er iðnaðarhúsnæði sem búið er að aðlaga sem skrifstofu- og lagerhúsnæði. Rýmið er að mestu opið rými en búið að stúka af með glerveggjum skrifstofu/fundarherbergi á grunnhæð sem og tvær skrifstofur / fundarherbergi á millilofti.
Kaffikrókur / eldhúsaðstaða á milliloft og og tvö salerni. Rými merkt nr. 2 á teikningu. Góð lofthæð.
Hægt er að fá leigt til viðbótar bil við hliðina.
Laust eftir samkomulagi.
Virðisaukaskattur bætist við leigu.
Allar nánari upplýsingar opnunartíma veitir:
Davíð Jens Guðlaugsson, löggiltur leigumiðlari í síma 846-7495 eða [email protected]
Á vefsíðu okkar getur þú fundið fleiri eignir sem og kynnt þér þjónustu Atvinnueignar ehf., www.atvinnueign.is
- Atvinnueignir eru okkar fag -
Ár
Fasteignamat
Kaupverð
Stærð
Fermetraverð
3. des. 2024
114.950.000 kr.
520.000.000 kr.
10206 m²
50.950 kr.
31. maí. 2024
114.950.000 kr.
390.000.000 kr.
10206 m²
38.213 kr.
25. okt. 2019
33.150.000 kr.
186.200.000 kr.
665 m²
280.000 kr.
Byggt á upplýsingum úr Þjóðskrá Íslands frá 2006-2026