Upplýsingar
Verðsaga
Byggt 1969
177 m²
5 herb.
1 baðherb.
4 svefnh.
Þvottahús
Bílskúr
Sérinngangur
Lýsing
Hraunhamar fasteignasala og Helgi Jón Harðarson sölustj.s. 893-2233 [email protected] kynna: Afar fallegt einbýli á einni hæð með innb.bílskúr samtals 177 fm. (þar af bílskúr 32 fm) Húsið er þó nokkuð endurnýjað á sl. árum.
Suður garður með palli og heitum potti og útisturtu. Óvenju stórt munstursteypt bílaplan með hitalögn. (nýlega gert) Húsið er klætt að utan og því viðhaldslétt. Eign sem vert er að skoða frekar á þessum rólega, skjólsama og rótgróna stað á Holtinu.
Lækkað verð !
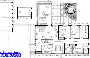
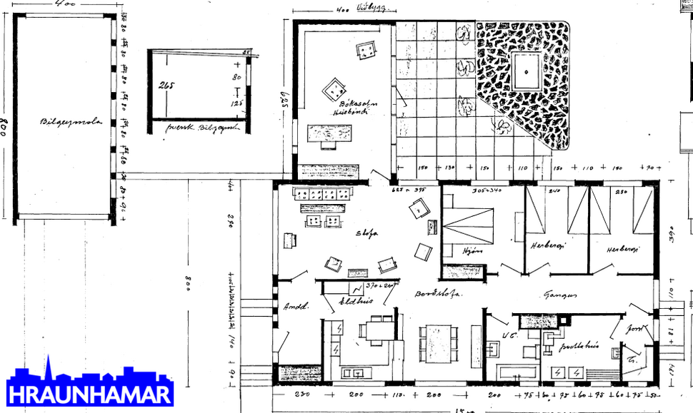
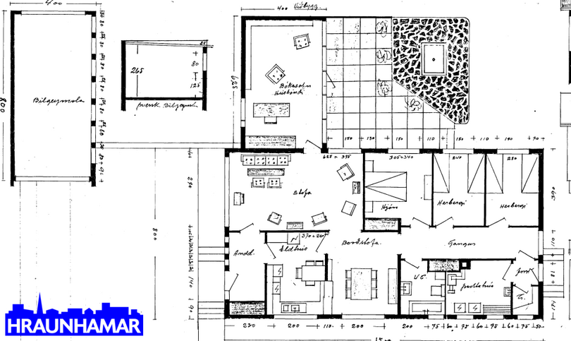
Eignin skiptist m.a. þannig: Rúmgóð forstofa, stofan er björt með útgang út í garðinn, pallinn og pottinn, stórt herbergi (ca 20 fm) með útgang útg. út á pallinn, hægt að hafa þar t.d. hjónasvítu með fataherbergi. (eða barnaherbergi/sjónvarpsherbergi.)
Eldhúsið er bjart og fallegt með nýlegri innréttingu og marmara borðplötum, góður borðkrókur. Svefnálma: Tvö barnaherbergi og gott hjónaherbergi, fallegt baðherbergi með hornbaðkari, flísar í hólf og gólf, gluggi.
Rúmgott þvottaherbergi og geymsla, gluggi, sturtuaðstaða er þar líka. Parket og flísar á gólfum.
Bílskúr er með hita, vatni og rafmagni. Geymsla þar fyrir aftan með sérinngang. Köld geymsla við hliðina með sérinngang.
Skjólsamur garður (hornlóð) í suður með verönd, heitum potti og útisturtu. Fyrir framan bílskúr er nýlega stórt munstursteypt bílaplan og einnig við hliðina á bílskúr sem gæti tilheyrt bílaplani eða garðinum.
Samkvæmt upplýsingum seljanda :
Skolplagnir fóðraðar 2008 og skipt um járn á þaki
Skipt um salerni, handlaug og blöndunartæki á baðherbergi og eldhúsi. Allt keypt frá Tengi 2017.
Sett var svalahurð og gluggi frá stofu og út á pall. 2019.
Allt timburverk á húsi málað að utan 2020.
Innkeyrslan steypt með mynstrusteypa með lokuði hitakerfi. 2020. Endurlagt neysluvatn milli bílskúrs og húss. 2020. Grindverk 2020.
Heitur pottur, útisturta, rafstýringarkerfi, lagða frárennslislögn frá rennum og pottur tengdur við. Grindverki breytt að hluta, 2021.
Steinflísar settar á borðstofugólf og gang 2022.
Skipt um eldhúsinnréttingu og ásýnd heppnar. Aukin tenging við borðstofuna. Teikningar frá Funkis 2023. Ný uppþvottavél, ísskápur og gufugleypir allt frá Simens. Hljóðeinangrunar loftdúkar í eldhúsi með niðurfelldri lýsingu 2023.
Ruslatunnueining E – laga steypa og timbur BM Vallá 2020.
Nýtt Ph útiljós sett upp. Epal 2021.
Ljósaskilti með heimilisfangi 2022.
Þetta er áhugaverð eign til að skoða frekar.
Nánari uppl. gefur Helgi Jón Harðarson sölustjóri s. 893-2233 [email protected] og
Glódís Helgadóttir lgf. s. 659-0510 [email protected]
Skoðunarskylda:
Í lögum um fasteignakaup nr. 40/2002 er kveðið á um ríka skoðunarskyldu kaupenda á fasteignum. Hraunhamar fasteignasala vill benda væntanlegum kaupendum á að kynna sér vel ástand fasteigna fyrir kauptilboðsgerð og ef þurfa þykir að leita til sérfræðinga fyrir nánari ástandsskoðun.
Gjöld sem kaupandi þarf að standa straum af vegna kaupanna:
1. Stimpilgjald af kaupsamningi, fyrstu kaup (0,4%), almenn kaup (0,8%), lögaðilar (1,6%) af heildarfasteignamati.
2. Þinglýsingargjald af kaupsamningi, veðskuldabréfi, mögulegu veðleyfi o.fl. – kr. 3,800 kr. af hverju skjali.
3. Lántökugjald lánastofnunar er skv. verðskrá viðkomandi lánastofnunar.
4. Umsýslugjald til fasteignasölu skv. þjónustusamningi
Hraunhamar er elsta fasteignasala Hafnarfjarðar, stofnuð 1983.
Hraunhamar, í fararbroddi í rúm 40 ár. – Hraunhamar.is
Smelltu hér til að fá frítt söluverðmat.
Suður garður með palli og heitum potti og útisturtu. Óvenju stórt munstursteypt bílaplan með hitalögn. (nýlega gert) Húsið er klætt að utan og því viðhaldslétt. Eign sem vert er að skoða frekar á þessum rólega, skjólsama og rótgróna stað á Holtinu.
Lækkað verð !
Eignin skiptist m.a. þannig: Rúmgóð forstofa, stofan er björt með útgang út í garðinn, pallinn og pottinn, stórt herbergi (ca 20 fm) með útgang útg. út á pallinn, hægt að hafa þar t.d. hjónasvítu með fataherbergi. (eða barnaherbergi/sjónvarpsherbergi.)
Eldhúsið er bjart og fallegt með nýlegri innréttingu og marmara borðplötum, góður borðkrókur. Svefnálma: Tvö barnaherbergi og gott hjónaherbergi, fallegt baðherbergi með hornbaðkari, flísar í hólf og gólf, gluggi.
Rúmgott þvottaherbergi og geymsla, gluggi, sturtuaðstaða er þar líka. Parket og flísar á gólfum.
Bílskúr er með hita, vatni og rafmagni. Geymsla þar fyrir aftan með sérinngang. Köld geymsla við hliðina með sérinngang.
Skjólsamur garður (hornlóð) í suður með verönd, heitum potti og útisturtu. Fyrir framan bílskúr er nýlega stórt munstursteypt bílaplan og einnig við hliðina á bílskúr sem gæti tilheyrt bílaplani eða garðinum.
Samkvæmt upplýsingum seljanda :
Skolplagnir fóðraðar 2008 og skipt um járn á þaki
Skipt um salerni, handlaug og blöndunartæki á baðherbergi og eldhúsi. Allt keypt frá Tengi 2017.
Sett var svalahurð og gluggi frá stofu og út á pall. 2019.
Allt timburverk á húsi málað að utan 2020.
Innkeyrslan steypt með mynstrusteypa með lokuði hitakerfi. 2020. Endurlagt neysluvatn milli bílskúrs og húss. 2020. Grindverk 2020.
Heitur pottur, útisturta, rafstýringarkerfi, lagða frárennslislögn frá rennum og pottur tengdur við. Grindverki breytt að hluta, 2021.
Steinflísar settar á borðstofugólf og gang 2022.
Skipt um eldhúsinnréttingu og ásýnd heppnar. Aukin tenging við borðstofuna. Teikningar frá Funkis 2023. Ný uppþvottavél, ísskápur og gufugleypir allt frá Simens. Hljóðeinangrunar loftdúkar í eldhúsi með niðurfelldri lýsingu 2023.
Ruslatunnueining E – laga steypa og timbur BM Vallá 2020.
Nýtt Ph útiljós sett upp. Epal 2021.
Ljósaskilti með heimilisfangi 2022.
Þetta er áhugaverð eign til að skoða frekar.
Nánari uppl. gefur Helgi Jón Harðarson sölustjóri s. 893-2233 [email protected] og
Glódís Helgadóttir lgf. s. 659-0510 [email protected]
Skoðunarskylda:
Í lögum um fasteignakaup nr. 40/2002 er kveðið á um ríka skoðunarskyldu kaupenda á fasteignum. Hraunhamar fasteignasala vill benda væntanlegum kaupendum á að kynna sér vel ástand fasteigna fyrir kauptilboðsgerð og ef þurfa þykir að leita til sérfræðinga fyrir nánari ástandsskoðun.
Gjöld sem kaupandi þarf að standa straum af vegna kaupanna:
1. Stimpilgjald af kaupsamningi, fyrstu kaup (0,4%), almenn kaup (0,8%), lögaðilar (1,6%) af heildarfasteignamati.
2. Þinglýsingargjald af kaupsamningi, veðskuldabréfi, mögulegu veðleyfi o.fl. – kr. 3,800 kr. af hverju skjali.
3. Lántökugjald lánastofnunar er skv. verðskrá viðkomandi lánastofnunar.
4. Umsýslugjald til fasteignasölu skv. þjónustusamningi
Hraunhamar er elsta fasteignasala Hafnarfjarðar, stofnuð 1983.
Hraunhamar, í fararbroddi í rúm 40 ár. – Hraunhamar.is
Smelltu hér til að fá frítt söluverðmat.
Ár
Fasteignamat
Kaupverð
Stærð
Fermetraverð
25. feb. 2014
38.800.000 kr.
41.500.000 kr.
177 m²
234.463 kr.
Byggt á upplýsingum úr Þjóðskrá Íslands frá 2006-2026