Löggiltir fasteignasalar innan Félags fasteignasala:
Óskar Rúnar Harðarson
Jason Guðmundsson
Þröstur Þórhallsson
Ólafur Finnbogason
Kjartan Ísak Guðmundsson
Gústaf Adolf Björnsson
Viðar Böðvarsson
Rakel Viðarsdóttir
Ragnheiður Pétursdóttir
Böðvar Þ. Eggertsson
Vista
fjölbýlishús

Garðsendi 3

108 Reykjavík

86.900.000 kr.

853.635 þ.kr./m2
Fasteignanúmer

F2035697

Fasteignamat

72.900.000 kr.

Brunabótamat

56.650.000 kr.

Áhvílandi

0 kr.

Arion banki – Reikna lán
Upplýsingar
Verðsaga
svg
Byggt 1960
svg
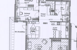
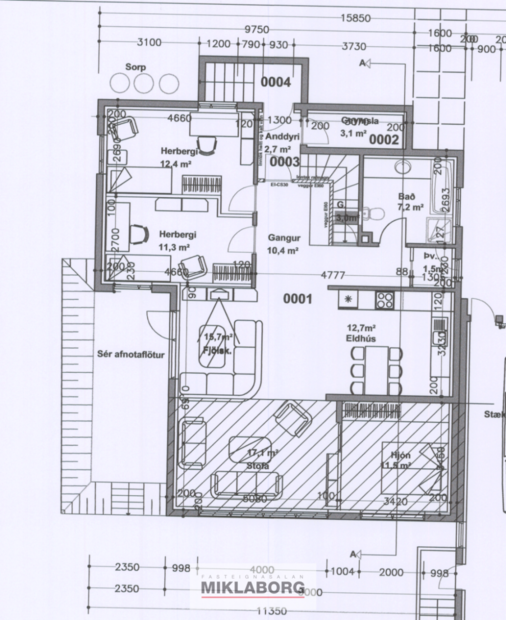
101,8 m²
svg
3 herb.
svg
1 baðherb.
svg
2 svefnh.
svg
Sérinngangur
Opið hús: 29. apríl 2026 kl. 16:30 til 17:00

Lýsing

Móeiður og Miklaborg kynna í einkasölu:

Einstaklega fallega og mikið endurnýjaða 101,8 fm 3–4 herbergja jarðhæðaríbúð með stórum 20 fm sólpalli sem snýr í hásuður við Garðsenda 3, miðsvæðis í Reykjavík.

Um er að ræða vel skipulagða og bjarta eign í húsi sem hefur verið nánast endurnýjað frá grunni á síðustu árum.

Bókaðu skoðun! Móeiður Svala lögg. fasteignasali í síma 8998278 eða [email protected]


Nánari lýsing:

Jarðhæð með stórum sólpalli í hásuður – mikið endurnýjuð íbúð í nánast endurnýjuðu húsi.

Rúmgott og bjart alrými þar sem stofa, borðstofa og eldhús tengjast með stórum gluggum til suðurs.

Úr stofu er gengið út á glæsilegan um 20 fm sólpall sem snýr í hásuður og nýtur sólar frá morgni og fram á kvöld. Einnig er 100 fm sameiginlegur sólpallur!

Íbúðin er með tvö góð svefnherbergi með stórum fataskápum og möguleika á að bæta við þriðja herberginu.

Fallegt eldhús með eyju og innbyggðum ísskáp og uppþvottavél.

Baðherbergið hefur verið mjög smekklega endurnýjað með flísum á gólfi og veggjum, walk-in sturtu með gleri, vegghengdu salerni og fallegri innréttingu.

Við hlið þess er þvottaherbergi með glugga og góðri aðstöðu.

Geymsla er innan íbúðar og gólfhiti er í allri íbúðinni.

Allt húsið er nýklætt að framan og aftan

Miklar endurbætur

Íbúðin hefur verið endurnýjuð frá grunni, m.a. með jarðvegsskiptum, nýjum gólfum með gólfhita, nýrri einangrun, nýjum milliveggjum og nýjum innréttingum, hurðum og gólfefnum.

Húsið hefur einnig verið umfangsmikið endurnýjað á síðustu árum, m.a.:

  • þak og burðarvirki endurgert
  • allir gluggar og gler endurnýjuð
  • rafmagns- og vatnslagnir endurnýjaðar
  • nýtt dren og skólp út í götu
  • húsið múrað og málað að utan
  • lóð endurgerð með bílaplani, stéttum og tröppum með snjóbræðslu

Eignin er á góðum og rólegum stað miðsvæðis í Reykjavík, stutt í skóla, þjónustu og helstu samgönguleiðir.

Upplýsingar frá seljanda:

Seljandi mun klára eftirfarandi atriði innan við 3. mánuði eftir sölu

1. Mála þar sem þarf í geymslu og þvottaherbergi

2. Skipta um útidyrahurð

3. Klára sólpall alveg, þeas loka fyrir opið á milli sérafnotaréttar og sameignar með tröppu.


Umfram það býður hann upp á:

1. Fataskápar í svefnherbergjum mega fylgja með.

2. Skera út og setja upp glugg, bæta við 3. svefnherberginu - Gegn einhverju samkomulagi

3. Er almennt opinn gagnvart flestu ef upp koma séróskir

Hér er á ferðinni einstaklega vel heppnuð eign á mjög eftirsóttum fjölskyldustað í Reykjavík– frábært tækifæri til að eignast vandað og fallegt heimili.


Bókaðu skoðun! Móeiður Svala lögg. fasteignasali í síma 8998278 eða [email protected]


Miklaborg fasteignasala

Miklaborg fasteignasala

Lágmúli 4, 108 Reykjavík
Ár
Fasteignamat
Kaupverð
Stærð
Fermetraverð
31. ágú. 2023
55.200.000 kr.
66.500.000 kr.
101.8 m²
653.242 kr.
22. jan. 2014
16.850.000 kr.
11.000.000 kr.
66.3 m²
165.913 kr.
27. sep. 2007
13.060.000 kr.
19.000.000 kr.
66.3 m²
286.576 kr.
Byggt á upplýsingum úr Þjóðskrá Íslands frá 2006-2026
Miklaborg fasteignasala

Miklaborg fasteignasala

Lágmúli 4, 108 Reykjavík