Löggiltir fasteignasalar innan Félags fasteignasala:
Ástþór Reynir Guðmundsson
Vigdís R. S. Helgadóttir
Guðbjörg Helga Jóhannesdóttir
Gylfi Jens Gylfason
Sigrún Matthea Sigvaldadóttir
Sveinn Gíslason
Páll Guðmundsson
Þórarinn Arnar Sævarsson
Berglind Hólm Birgisdóttir
Þorsteinn Gíslason
Guðrún Lilja Tryggvadóttir
Brynjar Ingólfsson
Guðný Þorsteinsdóttir
Bjarni Blöndal
Þorsteinn Ólafs
Þórdís Björk Davíðsdóttir
Jóhann Kristinn Jóhannesson
Bjarný Björg Arnórsdóttir
Salvör Þóra Davíðsdóttir
Magga Sigríður Gísladóttir
Upplýsingar
Verðsaga
Byggt 1973
201 m²
5 herb.
2 baðherb.
4 svefnh.
Þvottahús
Sérinngangur
Laus strax
Lýsing
RE/MAX / Brynjar Ingólfsson kynnir: Vel viðhaldið endaraðhús í bökkunum.
- LAUS VIÐ KAUPSAMNING
- Viðhaldslisti frá 2013-2026 hér fyrir neðan
- Arinn
- Fasteignamat 106.800.000 kr.
- 2 hellulögð bílastæði
- Stór garður með útgengi frá neðri hæð og stiga frá svölum
- Þak komið á tíma (dúkur í dós, bráðabirgða borið á)
Nánari lýsing:
Anddyrið er með flísum á gólfi og fallegum sérsmíðuðum fataskáp.
Gestasalerni er við anddyrið. Klósett, vaskur með skáp, ofn og gluggi fyrir loftun. Flísalagt í hólf og gólf.
Herbergi 1 er við anddyrið. Nýtt eikarparket á gólfi.
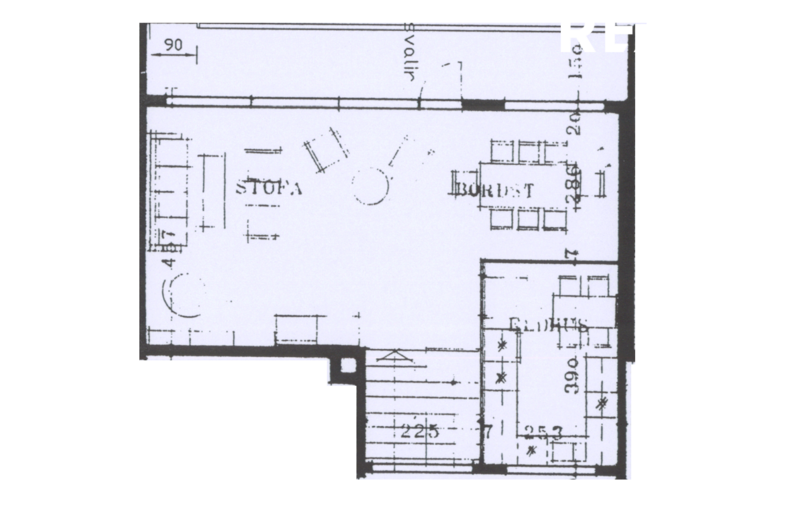
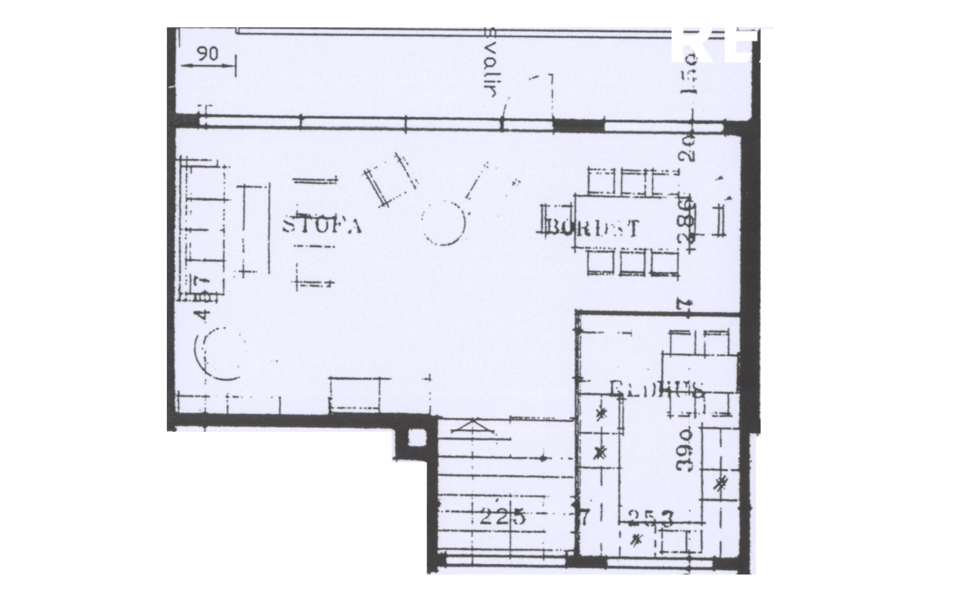
Stofan er á efsta palli. Eikarparket á gólfi. Fallegur arinn. Bjart og rúmgott rými.
Borðstofan er í opnu rými milli stofu og eldhúss.
Stórar svalir sem útgengt er á frá stofu. Stigi er frá svölunum niður í garð.
Eldhúsið er með hvítri innréttingu, flísar á milli skápa. Stæði fyrir uppþvottavél.
Á neðri palli er hol með skápum á báðum hliðum.
Herbergi 2 / hjónaherbergið er á neðri palli. Parket á gólfi, stór fataskápur. Útgengi út í bakgarð.
Herbergi 3 er við hjónaherbergið er búið er að taka niður vegginn þar og búa til sjónvarpshol úr því. Auðvelt að setja upp vegginn aftur.
Herbergi 4 er með parket á gólfi og vísar gluggi út í bakgarðinn.
Baðherbergið er flísalagt í hólf og gólf. Baðkar, sturtuklefi, klósett, handklæðaofn og stórar innréttingar.
Í kjallara er stórt þvottahús með innréttingu og vinnuvaski. Dúkur á gólfi. Einnig eru 2 geymslur á hæðinni.
Bílskúrinn er innangengur. Flísar á gólfi, tveir vinnuvaskar.
Lóðin: Pallur er að hluta fyrir framan húsið. Fyrir aftan er pallur að hluta og hellur.
Framkvæmdir síðastliðin ár:
2013 Stigi endursmíðaður og nýtt handrið á stiga
2014 Gestabað endurnýjað og smíðaðar innréttingar i anddyri
2015 Bílskúr flísalagður.
2015 Sett dúk í dós á þakið
2015 hús málað að utan litur „Apotek hálfur“ frá Slippfélaginu
2017 skipt um sturtuklefa og 3 miðstöðvarofna, inn í þvottahusi, gestabaði og bílskúr
2017 skipt um klæðningu á bílskúrshurð og hún einangruð
2019 svalahandrið fjarlægt og brotið 30 cm framan af svalagólfi og endursteypt, sett nýtt stálhandrið
2019 skipt um parkett á stofu
2023 sett ný svalahurð í stofu, skipt um alla gluggalista og þakþétting á neðra þaki og uppvið húsvegg
2025 sett „dúk í dós“ á allt þakið, efni frá Sindra
2025 kaldir veggir á svölum klæddir með álplötu og timburklæðningu. Borið á allt tréverk
2026 skipt um parkett á herbergi við anddyri
Allar frekari upplýsingar um eignina veitir:
Brynjar Ingólfsson MSc, löggiltur fasteignasali í síma 666 8 999 / [email protected]
Vegna mikillar eftirspurnar vantar okkur allar tegundir eigna á skrá. Hafið samband og ég mun verðmeta eign þína þér að kostnaðarlausu.
- LAUS VIÐ KAUPSAMNING
- Viðhaldslisti frá 2013-2026 hér fyrir neðan
- Arinn
- Fasteignamat 106.800.000 kr.
- 2 hellulögð bílastæði
- Stór garður með útgengi frá neðri hæð og stiga frá svölum
- Þak komið á tíma (dúkur í dós, bráðabirgða borið á)
Nánari lýsing:
Anddyrið er með flísum á gólfi og fallegum sérsmíðuðum fataskáp.
Gestasalerni er við anddyrið. Klósett, vaskur með skáp, ofn og gluggi fyrir loftun. Flísalagt í hólf og gólf.
Herbergi 1 er við anddyrið. Nýtt eikarparket á gólfi.
Stofan er á efsta palli. Eikarparket á gólfi. Fallegur arinn. Bjart og rúmgott rými.
Borðstofan er í opnu rými milli stofu og eldhúss.
Stórar svalir sem útgengt er á frá stofu. Stigi er frá svölunum niður í garð.
Eldhúsið er með hvítri innréttingu, flísar á milli skápa. Stæði fyrir uppþvottavél.
Á neðri palli er hol með skápum á báðum hliðum.
Herbergi 2 / hjónaherbergið er á neðri palli. Parket á gólfi, stór fataskápur. Útgengi út í bakgarð.
Herbergi 3 er við hjónaherbergið er búið er að taka niður vegginn þar og búa til sjónvarpshol úr því. Auðvelt að setja upp vegginn aftur.
Herbergi 4 er með parket á gólfi og vísar gluggi út í bakgarðinn.
Baðherbergið er flísalagt í hólf og gólf. Baðkar, sturtuklefi, klósett, handklæðaofn og stórar innréttingar.
Í kjallara er stórt þvottahús með innréttingu og vinnuvaski. Dúkur á gólfi. Einnig eru 2 geymslur á hæðinni.
Bílskúrinn er innangengur. Flísar á gólfi, tveir vinnuvaskar.
Lóðin: Pallur er að hluta fyrir framan húsið. Fyrir aftan er pallur að hluta og hellur.
Framkvæmdir síðastliðin ár:
2013 Stigi endursmíðaður og nýtt handrið á stiga
2014 Gestabað endurnýjað og smíðaðar innréttingar i anddyri
2015 Bílskúr flísalagður.
2015 Sett dúk í dós á þakið
2015 hús málað að utan litur „Apotek hálfur“ frá Slippfélaginu
2017 skipt um sturtuklefa og 3 miðstöðvarofna, inn í þvottahusi, gestabaði og bílskúr
2017 skipt um klæðningu á bílskúrshurð og hún einangruð
2019 svalahandrið fjarlægt og brotið 30 cm framan af svalagólfi og endursteypt, sett nýtt stálhandrið
2019 skipt um parkett á stofu
2023 sett ný svalahurð í stofu, skipt um alla gluggalista og þakþétting á neðra þaki og uppvið húsvegg
2025 sett „dúk í dós“ á allt þakið, efni frá Sindra
2025 kaldir veggir á svölum klæddir með álplötu og timburklæðningu. Borið á allt tréverk
2026 skipt um parkett á herbergi við anddyri
Allar frekari upplýsingar um eignina veitir:
Brynjar Ingólfsson MSc, löggiltur fasteignasali í síma 666 8 999 / [email protected]
Vegna mikillar eftirspurnar vantar okkur allar tegundir eigna á skrá. Hafið samband og ég mun verðmeta eign þína þér að kostnaðarlausu.
Ár
Fasteignamat
Kaupverð
Stærð
Fermetraverð
16. maí. 2011
30.250.000 kr.
36.900.000 kr.
201 m²
183.582 kr.
Byggt á upplýsingum úr Þjóðskrá Íslands frá 2006-2026