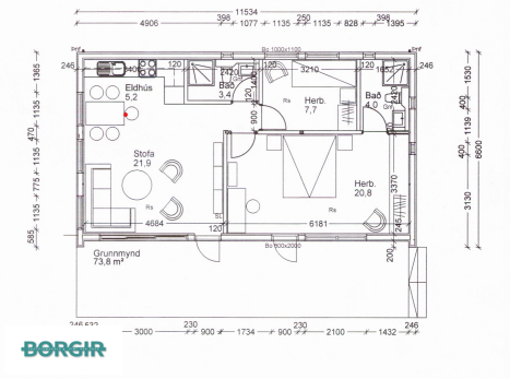
Hofsvík, 805 Selfoss