Upplýsingar
Byggt 1985
213 m²
4 herb.
2 baðherb.
2 svefnh.
Þvottahús
Bílskúr
Lýsing
Híbýli fasteignasala s. 585-8800 kynnir:
Litlabæjarvör 4 á Álftanesi
Einstakt og afar glæsilegt einbýlishús á einni hæð, húsið er á sjávarlóð innst í botnlanga á rólegum stað við Litlubæjarvör á vestanverðu Álftanesi.
Húsið stendur á 900 fermetra eignarlóð og nýtur glæsilegs útsýnis til sjávar og yfir Reykjanesfjallgarðinn.
Bókið skoðun hjá Ólafi M. Ólafssyni löggiltum fasteignasala í síma 865-8515 / [email protected]
Nánari lýsing:
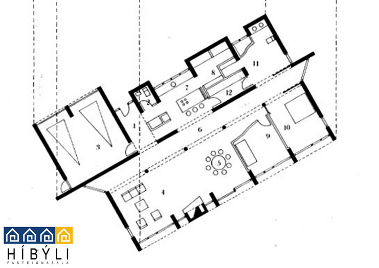
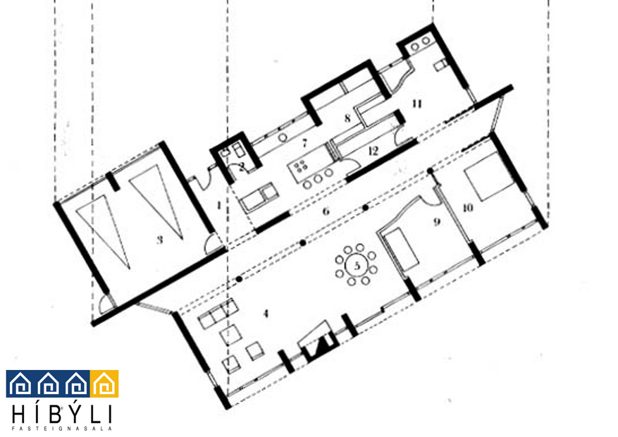
Hár steyptur veggur deilir húsinu í suður og norðuhlið.
Á norðurhlið er inngangur með gestasalerni, innbyggðum bílskúr, eldhúsi, þvottahúsi og baðherbergi. Glerþak er yfir inngangi og gluggar í eldhúsi og baðherbergi ná inn á þakið. Þetta gerir það verkum að mikillar dagsbirtu nýtur á norðurhlið.
Gestasalerni er flísalagt og með glugga. Inngangur/forstofa er með innfelldu fatahengi. Eldhús er opið við stofur og er með gluggum, búrgeymsla er inn af eldhúsi. Baðherbergi er inns á ganginum, hvít innrétting, hornbaðkar, gluggar á tveimur hliðum. Inn af baðherbergi er fataherbergi og þvottahús með glugga. Á hægri hönd við forstofu er innangengt í bílskúrinn sem er innbyggður í húsið. Þar er búið að innrétta tvö herbergi, baðherbergi með sturtu er í öðru herbergjanna. Hefðbundin inngönguhurð í bílskúrinn er einnig á norðurhlið hússins.
Suðurhliðin tengist steypta veggnum með glugga sem nær eftir öllu þakinu og göflum að gólfi. Dagsljós leikur því um mitt húsið og sjónarspil er oft ótrúlegt á langveggnum þegar geislar sólar og tungls falla á hann. Sívalar súlur bera þakið og eykur ásýnd þeirra fjölbreytileikann.
Til suðurs eru stofur, hjónaherbergi og vinnu/barnaherbergi. Gólfsíðir gluggar og rennihurðir eru í öllum rýmum til suðurs. Stór arinn blasir við þegar gengið er inn í stofuálmuna sem er glæsileg, björt og með aukinni lofthæð. Hjónaherbergi er með tveimur rennihurðum að gangi sem og baðherbergi handan gangsins, þar eru ekki þröskuldar.
Veggir og loft eru hvít og öll gólf eru klædd með sérskornum ítölskum carrara marmara. Upphitun hússins er með lofthita, baðherbergi er að auki með gólfhita.
Með efnisvali er húsið aðlagað að umhverfi sínu. Allir útveggir eru sjónsteypuveggir með mótaáferð lóðréttrar borðaklæðningar. Gróf sjávarmöl umlykur húsið þar sem stórir mosavaxnir steinhnullungar liggja á víð og dreif. Það er því sem húsið vaxi upp úr jörðinni.
Mikil áhersla er lögð á að dagsbirtan leiki um allt húsið og dansi með veðrinu. Að sumri við sólarupprás snemma morguns stinga fyrstu sólargeislar dagsins sér inn frá norðri um inngang, eldhús og bað. Á veturna sest sólin, eftir að hún hefur dansað letilega rétt ofan við sjóndeildarhringinn, beint ofan í sjó og litbrigði sólarlagsins verða ólýsanleg.
Um Litlubæjarvör 4 hefur verið fjallað í fjölmörgum fagtímaritum, innlendum sem erlendum, og er húsið oft tekið sem dæmi um athyglisverða byggingarlist 9. áratugarins á Íslandi. Myndir og teikningar af húsinu eru í þeim tveimur leiðsöguritum sem gefin hafa verið út um íslenska byggingarlist.
Þekkt innimynd úr stofunni í Litlabæjarvör 4 prýddi forsíðu bókarinnar Heimili og húsagerð 1967-1987 sem kom út árið 1987. Árið 1994 var Litlabæjarvör 4 eitt þriggja einbýlishúsa sem valið var á sýningu arkitektaskólans í Árósum um Íslenska byggingarlist.
Litlabæjarvör 4 var friðlýst af mennta- og menningarmálaráðherra árið 2021. Friðlýsingin tekur til ytra borðs hússins og frágangs gólfs, lofts og veggja í stofurými og miðjugangi innandyra. Húsið er yngsta friðlýsta hús á Íslandi.
Eignin er samtals skráð 213 fm, (þar af innbyggður bílskúr 38 fm).
Hér er um að ræða glæsilegt hús í einstöku og friðsælu umhverfi með óviðjafnanlegu útsýni.
Nánari upplýsingar á skrifstofu Híbýla í síma 585-8800 eða á netfanginu [email protected]
Ólafur Már Ólafsson löggiltur fasteignasali s. 865-8515 / [email protected]
Litlabæjarvör 4 á Álftanesi
Einstakt og afar glæsilegt einbýlishús á einni hæð, húsið er á sjávarlóð innst í botnlanga á rólegum stað við Litlubæjarvör á vestanverðu Álftanesi.
Húsið stendur á 900 fermetra eignarlóð og nýtur glæsilegs útsýnis til sjávar og yfir Reykjanesfjallgarðinn.
Bókið skoðun hjá Ólafi M. Ólafssyni löggiltum fasteignasala í síma 865-8515 / [email protected]
Nánari lýsing:
Hár steyptur veggur deilir húsinu í suður og norðuhlið.
Á norðurhlið er inngangur með gestasalerni, innbyggðum bílskúr, eldhúsi, þvottahúsi og baðherbergi. Glerþak er yfir inngangi og gluggar í eldhúsi og baðherbergi ná inn á þakið. Þetta gerir það verkum að mikillar dagsbirtu nýtur á norðurhlið.
Gestasalerni er flísalagt og með glugga. Inngangur/forstofa er með innfelldu fatahengi. Eldhús er opið við stofur og er með gluggum, búrgeymsla er inn af eldhúsi. Baðherbergi er inns á ganginum, hvít innrétting, hornbaðkar, gluggar á tveimur hliðum. Inn af baðherbergi er fataherbergi og þvottahús með glugga. Á hægri hönd við forstofu er innangengt í bílskúrinn sem er innbyggður í húsið. Þar er búið að innrétta tvö herbergi, baðherbergi með sturtu er í öðru herbergjanna. Hefðbundin inngönguhurð í bílskúrinn er einnig á norðurhlið hússins.
Suðurhliðin tengist steypta veggnum með glugga sem nær eftir öllu þakinu og göflum að gólfi. Dagsljós leikur því um mitt húsið og sjónarspil er oft ótrúlegt á langveggnum þegar geislar sólar og tungls falla á hann. Sívalar súlur bera þakið og eykur ásýnd þeirra fjölbreytileikann.
Til suðurs eru stofur, hjónaherbergi og vinnu/barnaherbergi. Gólfsíðir gluggar og rennihurðir eru í öllum rýmum til suðurs. Stór arinn blasir við þegar gengið er inn í stofuálmuna sem er glæsileg, björt og með aukinni lofthæð. Hjónaherbergi er með tveimur rennihurðum að gangi sem og baðherbergi handan gangsins, þar eru ekki þröskuldar.
Veggir og loft eru hvít og öll gólf eru klædd með sérskornum ítölskum carrara marmara. Upphitun hússins er með lofthita, baðherbergi er að auki með gólfhita.
Með efnisvali er húsið aðlagað að umhverfi sínu. Allir útveggir eru sjónsteypuveggir með mótaáferð lóðréttrar borðaklæðningar. Gróf sjávarmöl umlykur húsið þar sem stórir mosavaxnir steinhnullungar liggja á víð og dreif. Það er því sem húsið vaxi upp úr jörðinni.
Mikil áhersla er lögð á að dagsbirtan leiki um allt húsið og dansi með veðrinu. Að sumri við sólarupprás snemma morguns stinga fyrstu sólargeislar dagsins sér inn frá norðri um inngang, eldhús og bað. Á veturna sest sólin, eftir að hún hefur dansað letilega rétt ofan við sjóndeildarhringinn, beint ofan í sjó og litbrigði sólarlagsins verða ólýsanleg.
Um Litlubæjarvör 4 hefur verið fjallað í fjölmörgum fagtímaritum, innlendum sem erlendum, og er húsið oft tekið sem dæmi um athyglisverða byggingarlist 9. áratugarins á Íslandi. Myndir og teikningar af húsinu eru í þeim tveimur leiðsöguritum sem gefin hafa verið út um íslenska byggingarlist.
Þekkt innimynd úr stofunni í Litlabæjarvör 4 prýddi forsíðu bókarinnar Heimili og húsagerð 1967-1987 sem kom út árið 1987. Árið 1994 var Litlabæjarvör 4 eitt þriggja einbýlishúsa sem valið var á sýningu arkitektaskólans í Árósum um Íslenska byggingarlist.
Litlabæjarvör 4 var friðlýst af mennta- og menningarmálaráðherra árið 2021. Friðlýsingin tekur til ytra borðs hússins og frágangs gólfs, lofts og veggja í stofurými og miðjugangi innandyra. Húsið er yngsta friðlýsta hús á Íslandi.
Eignin er samtals skráð 213 fm, (þar af innbyggður bílskúr 38 fm).
Hér er um að ræða glæsilegt hús í einstöku og friðsælu umhverfi með óviðjafnanlegu útsýni.
Nánari upplýsingar á skrifstofu Híbýla í síma 585-8800 eða á netfanginu [email protected]
Ólafur Már Ólafsson löggiltur fasteignasali s. 865-8515 / [email protected]