Upplýsingar
Verðsaga
Byggt 1974
200,7 m²
6 herb.
2 baðherb.
4 svefnh.
Þvottahús
Bílskúr
Útsýni
Lýsing
Fasteignasalan Hvammur 466 1600
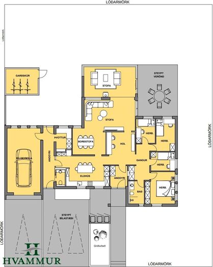
Hjarðarlundur 7 - Mikið endurnýjað 6 herbergja einbýlishús með bílskúr við vinsæla botnlangagötu á Brekkunni - stærð 200,7 þar af er bílskúr 35,2 m²
Eignin skiptist í forstofu, hol, eldhús, borðstofu, sjónvarpshol, stofu, fjögur svefnherbergin baðherbergi, snyrtingu, þvottahús, millibyggingu og bílskúr.
Forstofa er með flísum á gólfi og lökkuðum skáp. Úr forstofu er gengið inn á hol sem hefur verið nýtt sem heimaskrifstofa. Þar er harðparket á gólfi.
Eldhús var endurnýjað árið 2019. Vönduð grá plastlögð innrétting og eyja með ljósri borðplötu frá Tak innréttingum. AEG helluborð og vifta. Ísskápur, frystiskápur og uppþvottavél fylgir með við sölu eignar.
Borðstofa og sjónvarpshol eru í opnu rými þar sem harðparket er á gólfum og gluggar til tveggja átta. Úr sjónvarpsholinu er gengið inn í stofu og þaðan út á verönd.
Stofa var áður sólskáli sem búið er að opna betur inn í og sett á nýtt einangrað þak árið 2017. Flísar eru á gólfi, gólfhiti og gluggar til þriggja átta. Rennihurð er út á flísalagða verönd til suðvesturs. Kamína er í stofunni.
Svefnherbergin eru fjögur, öll með harðparketi á gólfi og fataskápum. Á ganginum fyrir framan svefnherbergin er þrefaldur grár skápur.
Baðherbergi var endurnýjað árið 2017. Flísar eru á gólfum og þiljur á hluta veggja, hvít innrétting og speglaskápur, upphengt wc, handklæðaofn og walk-in sturta með dökku gleri og innfelldum tækjum. Opnanlegur gluggi.
Snyrting er til hliðar úr millibyggingunni með flísum á gólfi, handlaug og upphengdu wc.
Þvottahús er til hliðar úr millibyggingunni, á móts við þar sem gengið er inn í bílskúr. Þar eru flísar á gólfi, hvít snyrtileg innrétting (2019) með stæði fyrir þvottavél og þurrkara í vinnuhæð og opnanlegur gluggi.
Millibyggingin nýtist sem annar inngangur fyrir eignina en þar er einnig hurð út á baklóð. Flísar eru á gólfi og gólfhiti. Stærð millibyggingar er ótalin í heildar fermetrafjölda eignar en hún er rúmmir 10 m² að stærð.
Bílskúr er skráður 35,2 m² að stærð. Þar er lakkað gólf, hillur og eldri skápar. Þakið er steypt og var það málað með polyuretan þéttiefni árið 2024.
Fyrir framan er steypt bílastæði unnið árið 2021 fyrir þrjá bíla. Hitalagnir eru í planinu, lokað kerfi.
Annað
- Húsið var málað að utan sumarið 2025 og settar nýjar þakrennur.
- Árið 2024 var þak yfir íbúðarhúsi endurnýjað, borðaklæðning, þakpappi og bárustál. Steypt loftaplata er í húsinu.
- Árið 2023 var byggður nýr geymsluskúr á baklóðinni og jarðvegsskipt milli bílskúrs og geymsluskúrs.
- Árið 2021 var steypt nýtt bílastæði með hitalögnum, steypt gróðurbeð, sett upp steypt ruslaskýli, frárennslislagnir utan byggingar endurnýjaðar að stærstum hluta, sett upp ný hitaveitugrind og inntök fyrir heitt og kalt vatn endurnýjaðar.
- Árið 2019 var lagður gólfhiti í öll rými íbúðar fyrir utan sólskála/stofu, allar neysluvatnslagnir endurnýjaðar og frárennslislagnir innan byggingar, lagt nýtt harðparket og flísar, settar um hvítar innihurðar, ný rafmagnstafla og raflagnir endurnýjaðar að hluta.
- Árið 2017 var þak yfir stofu/sólskála endurnýja, einangrað og klætt með bárustáli, gler í gluggum í sólskála endurnýjað að mestu og settir nýjir gluggar í barnaherbergi.
- Eignin er í einkasölu.
Um skoðunar- og aðgæsluskyldu:
Í lögum um fasteignakaup nr. 40/2002 er kveðið á um ríka skoðunarskyldu kaupenda á fasteignum. Fasteignasalan Hvammur skorar því á væntanlega kaupendur að kynna sér vel ástand fasteigna fyrir kauptilboðsgerð og leita til þar til bærra sérfræðinga um nánari skoðun ef með þarf.
Forsendur söluyfirlits:
Söluyfirlit er samið af fasteignasala í samræmi við ákvæði laga nr. 70/2015. Þær upplýsingar sem fram koma í söluyfirliti þessu eru sóttar í opinberar skrár, til seljanda sjálfs og eftir atvikum til húsfélags. Seljandi veitir upplýsingar um eign í samræmi við upplýsingaskyldu laga um fasteignakaup nr. 40/2002. Fasteignasali sannreynir að þær upplýsingar séu réttar með sjónskoðun á eigninni. Fasteignasali getur ekki fullyrt um ástand og eiginleika þeirra hluta fasteigna sem ekki eru aðgengilegir og sjást ekki berum augum, t.d. lagnir, dren, skólp og þak.
Hjarðarlundur 7 - Mikið endurnýjað 6 herbergja einbýlishús með bílskúr við vinsæla botnlangagötu á Brekkunni - stærð 200,7 þar af er bílskúr 35,2 m²
Eignin skiptist í forstofu, hol, eldhús, borðstofu, sjónvarpshol, stofu, fjögur svefnherbergin baðherbergi, snyrtingu, þvottahús, millibyggingu og bílskúr.
Forstofa er með flísum á gólfi og lökkuðum skáp. Úr forstofu er gengið inn á hol sem hefur verið nýtt sem heimaskrifstofa. Þar er harðparket á gólfi.
Eldhús var endurnýjað árið 2019. Vönduð grá plastlögð innrétting og eyja með ljósri borðplötu frá Tak innréttingum. AEG helluborð og vifta. Ísskápur, frystiskápur og uppþvottavél fylgir með við sölu eignar.
Borðstofa og sjónvarpshol eru í opnu rými þar sem harðparket er á gólfum og gluggar til tveggja átta. Úr sjónvarpsholinu er gengið inn í stofu og þaðan út á verönd.
Stofa var áður sólskáli sem búið er að opna betur inn í og sett á nýtt einangrað þak árið 2017. Flísar eru á gólfi, gólfhiti og gluggar til þriggja átta. Rennihurð er út á flísalagða verönd til suðvesturs. Kamína er í stofunni.
Svefnherbergin eru fjögur, öll með harðparketi á gólfi og fataskápum. Á ganginum fyrir framan svefnherbergin er þrefaldur grár skápur.
Baðherbergi var endurnýjað árið 2017. Flísar eru á gólfum og þiljur á hluta veggja, hvít innrétting og speglaskápur, upphengt wc, handklæðaofn og walk-in sturta með dökku gleri og innfelldum tækjum. Opnanlegur gluggi.
Snyrting er til hliðar úr millibyggingunni með flísum á gólfi, handlaug og upphengdu wc.
Þvottahús er til hliðar úr millibyggingunni, á móts við þar sem gengið er inn í bílskúr. Þar eru flísar á gólfi, hvít snyrtileg innrétting (2019) með stæði fyrir þvottavél og þurrkara í vinnuhæð og opnanlegur gluggi.
Millibyggingin nýtist sem annar inngangur fyrir eignina en þar er einnig hurð út á baklóð. Flísar eru á gólfi og gólfhiti. Stærð millibyggingar er ótalin í heildar fermetrafjölda eignar en hún er rúmmir 10 m² að stærð.
Bílskúr er skráður 35,2 m² að stærð. Þar er lakkað gólf, hillur og eldri skápar. Þakið er steypt og var það málað með polyuretan þéttiefni árið 2024.
Fyrir framan er steypt bílastæði unnið árið 2021 fyrir þrjá bíla. Hitalagnir eru í planinu, lokað kerfi.
Annað
- Húsið var málað að utan sumarið 2025 og settar nýjar þakrennur.
- Árið 2024 var þak yfir íbúðarhúsi endurnýjað, borðaklæðning, þakpappi og bárustál. Steypt loftaplata er í húsinu.
- Árið 2023 var byggður nýr geymsluskúr á baklóðinni og jarðvegsskipt milli bílskúrs og geymsluskúrs.
- Árið 2021 var steypt nýtt bílastæði með hitalögnum, steypt gróðurbeð, sett upp steypt ruslaskýli, frárennslislagnir utan byggingar endurnýjaðar að stærstum hluta, sett upp ný hitaveitugrind og inntök fyrir heitt og kalt vatn endurnýjaðar.
- Árið 2019 var lagður gólfhiti í öll rými íbúðar fyrir utan sólskála/stofu, allar neysluvatnslagnir endurnýjaðar og frárennslislagnir innan byggingar, lagt nýtt harðparket og flísar, settar um hvítar innihurðar, ný rafmagnstafla og raflagnir endurnýjaðar að hluta.
- Árið 2017 var þak yfir stofu/sólskála endurnýja, einangrað og klætt með bárustáli, gler í gluggum í sólskála endurnýjað að mestu og settir nýjir gluggar í barnaherbergi.
- Eignin er í einkasölu.
Um skoðunar- og aðgæsluskyldu:
Í lögum um fasteignakaup nr. 40/2002 er kveðið á um ríka skoðunarskyldu kaupenda á fasteignum. Fasteignasalan Hvammur skorar því á væntanlega kaupendur að kynna sér vel ástand fasteigna fyrir kauptilboðsgerð og leita til þar til bærra sérfræðinga um nánari skoðun ef með þarf.
Forsendur söluyfirlits:
Söluyfirlit er samið af fasteignasala í samræmi við ákvæði laga nr. 70/2015. Þær upplýsingar sem fram koma í söluyfirliti þessu eru sóttar í opinberar skrár, til seljanda sjálfs og eftir atvikum til húsfélags. Seljandi veitir upplýsingar um eign í samræmi við upplýsingaskyldu laga um fasteignakaup nr. 40/2002. Fasteignasali sannreynir að þær upplýsingar séu réttar með sjónskoðun á eigninni. Fasteignasali getur ekki fullyrt um ástand og eiginleika þeirra hluta fasteigna sem ekki eru aðgengilegir og sjást ekki berum augum, t.d. lagnir, dren, skólp og þak.
Ár
Fasteignamat
Kaupverð
Stærð
Fermetraverð
28. mar. 2017
42.100.000 kr.
55.100.000 kr.
200.7 m²
274.539 kr.
Byggt á upplýsingum úr Þjóðskrá Íslands frá 2006-2026