Upplýsingar
Verðsaga
Byggt 2021
240,5 m²
6 herb.
3 baðherb.
4 svefnh.
Þvottahús
Bílskúr
Sérinngangur
Lýsing
Maríugata – Glæsilegt raðhús með einstöku útsýni yfir Heiðmörk
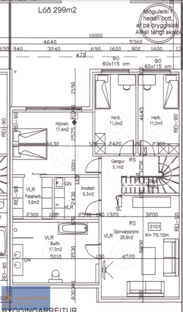
Um er að ræða 240,5 fm miðju raðhús á tveimur hæðum í Urriðaholti, Garðabæ. Húsið stendur neðangötu með aðkomu að efri hæð. Óhindrað útsýni yfir náttúru Heiðmerkur, ekkert verður byggt fyrir neðan húsið. Húsið skilast fullbúið að utan sem innan, kaupandi hefur val um innréttingar og gólfefni og annan búnað annað hvort frá Byko eða Parka.
Heildarstærð: 240,5 fm (þar af 30,6 fm innbyggður bílskúr) Möguleiki er að kaupa húsið í því ástandi sem það er í dag. Verð 193 milljónir
Neðri hæð: 3 svefnherbergi, fataherbergi, mjög stórt og rúmgott fjölskyldurými og stórt baðherbergi, þvottahús.
Efri hæð: Anddyri, gestasnyrting, eldhús, borðstofa og stofa með útgengi á svalir, forstofuherbergi/svefnherbergi, bílskúr
Húsið er hannað með mikla áherslu á útsýni og sólarljós, stórir gluggar, rennihurðir, verönd og svalir tengja inni- og útisvæði á fallegan hátt. Samræmi er í efnisvali og heildaryfirbragði hússins
Frágangur:
Gluggar: Ál/tré gluggar frá Idealcombi með tvöföldu K-gleri
Klæðning: Neðri hæð múrhúðuð, efri hæð klædd með Alucobond álklæðningu 4 mm þykk.
Burðarvirki: Steinsteyptir, járnbentir útveggir og plötur
Þak: Torfklætt, með PVC dúk
Gólfhiti og rör í rör lagnakerfi
Bílskúr með álhurð, einangraður
Svalir með glerhandriði
Lóð frágengin með verönd og skjólveggjum
Umhverfi: Urriðaholt er vottað samkvæmt BREEAM Communities vistvottunarkerfi og einkennist af náttúruvænu skipulagi og fallegri nálægð við Heiðmörk, Urriðavatn og golfvöllinn Urriðarvöll. Öll helsta þjónusta er í nágrenninu og stutt er í leik- og grunnskóla. Maríugata 27 er einstakt tækifæri fyrir þá sem vilja nýtt, fullbúið og vandað heimili á einum besta útsýnisstað höfuðborgarsvæðisins með náttúruna fyrir utan gluggann og möguleika á að móta lokafrágang eftir eigin smekk.
Nánari upplýsingar veitir: Tengdur aðili.
Sigurður Tyrfingsson, löggiltur fasteignasali. Sími: 898-3708 | Netfang: [email protected]
Um er að ræða 240,5 fm miðju raðhús á tveimur hæðum í Urriðaholti, Garðabæ. Húsið stendur neðangötu með aðkomu að efri hæð. Óhindrað útsýni yfir náttúru Heiðmerkur, ekkert verður byggt fyrir neðan húsið. Húsið skilast fullbúið að utan sem innan, kaupandi hefur val um innréttingar og gólfefni og annan búnað annað hvort frá Byko eða Parka.
Heildarstærð: 240,5 fm (þar af 30,6 fm innbyggður bílskúr) Möguleiki er að kaupa húsið í því ástandi sem það er í dag. Verð 193 milljónir
Neðri hæð: 3 svefnherbergi, fataherbergi, mjög stórt og rúmgott fjölskyldurými og stórt baðherbergi, þvottahús.
Efri hæð: Anddyri, gestasnyrting, eldhús, borðstofa og stofa með útgengi á svalir, forstofuherbergi/svefnherbergi, bílskúr
Húsið er hannað með mikla áherslu á útsýni og sólarljós, stórir gluggar, rennihurðir, verönd og svalir tengja inni- og útisvæði á fallegan hátt. Samræmi er í efnisvali og heildaryfirbragði hússins
Frágangur:
Gluggar: Ál/tré gluggar frá Idealcombi með tvöföldu K-gleri
Klæðning: Neðri hæð múrhúðuð, efri hæð klædd með Alucobond álklæðningu 4 mm þykk.
Burðarvirki: Steinsteyptir, járnbentir útveggir og plötur
Þak: Torfklætt, með PVC dúk
Gólfhiti og rör í rör lagnakerfi
Bílskúr með álhurð, einangraður
Svalir með glerhandriði
Lóð frágengin með verönd og skjólveggjum
Umhverfi: Urriðaholt er vottað samkvæmt BREEAM Communities vistvottunarkerfi og einkennist af náttúruvænu skipulagi og fallegri nálægð við Heiðmörk, Urriðavatn og golfvöllinn Urriðarvöll. Öll helsta þjónusta er í nágrenninu og stutt er í leik- og grunnskóla. Maríugata 27 er einstakt tækifæri fyrir þá sem vilja nýtt, fullbúið og vandað heimili á einum besta útsýnisstað höfuðborgarsvæðisins með náttúruna fyrir utan gluggann og möguleika á að móta lokafrágang eftir eigin smekk.
Nánari upplýsingar veitir: Tengdur aðili.
Sigurður Tyrfingsson, löggiltur fasteignasali. Sími: 898-3708 | Netfang: [email protected]
Í lögum um fasteignakaup nr. 40/2002 er kveðið á um ríka skoðunarskyldu kaupenda á fasteignum. Vill því Garðatorg eignamiðlun skora á væntanlega kaupendur að kynna sér vel ástand fasteigna fyrir kauptilboðsgerð og leita til þar til bærra sérfræðinga um nánari skoðun ef með þarf.
Gjöld sem kaupandi þarf að standa straum af vegna kaupanna:
1. Stimpilgjald af kaupsamningi - 0.8% af heildarfasteignamati / 1.6% fyrir lögaðila. (0.4% við fyrstu kaup einstaklinga).
2. Þinglýsingagjald af kaupsamningi, veðskuldabréfi, veðleyfi o.fl.- kr. 3.800 af hverju skjali.
3. Lántökugjald lánastofnunar
4. Umsýsluþóknun til fasteignasölu, sbr.kauptilboð
Ár
Fasteignamat
Kaupverð
Stærð
Fermetraverð
13. jan. 2021
9.900.000 kr.
94.500.000 kr.
240.5 m²
392.931 kr.
Byggt á upplýsingum úr Þjóðskrá Íslands frá 2006-2026