Löggiltir fasteignasalar innan Félags fasteignasala:
Hannes Steindórsson
Bogi Molby Pétursson
Guðrún Antonsdóttir
Heimir Hallgrímsson
Hrafnkell P. H. Pálmason
Viðar Marinósson
Elías Haraldsson
Kristján Þórir Hauksson
Albert Bjarni Úlfarsson
Ragnar Þorsteinsson
Þórey Ólafsdóttir
Andri Freyr Halldórsson
Upplýsingar
Verðsaga
Byggt 2023
129 m²
5 herb.
1 baðherb.
4 svefnh.
Sérinngangur
Bílastæði
Lýsing
LIND Fasteignasala og Guðmundur Hallgrímsson lgfs Kynna Furugerði 23 íbúð 101
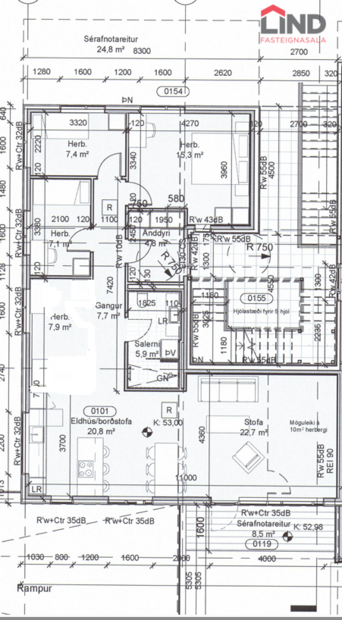
5 herbergja íbúð á fyrstuhæð með sérinngangi og skiptist í anddyri, baðherbergi með þvottaaðstöðu, eldhús, stofu, borðstofu og þrjú til fjögur svefnherbergi.
Eignin er seld, áður auglýst opið hús fellur niður!
Verönd til suðurs og til norðurs. Gluggar til suðurs, vesturs og norðurs.
Sér Geymsla 9,8 fm. Bílastæði fylgir í bílageymslu, sameigninleg hjóla/vagna geymsla.
Nánari lýsing:
Anddyri: er með fataskápum og fallegum 60x60 flísum á gólfi.
Baðherbergi: veggir að hluta flísalagðir með fallegum Terrazzo flísum, upphengt salerni, speglaskáp og innrétting í ljósum furulit, handklæðaofn og walk-in sturta með gleri.
Eldhús: er með fallegri innréttingu með svörtum höldum frá Voke-3 í ljósum Aland Pine Polar lit. Gott vinnurými og skápapláss.
Stofa og borðstofa: Parket á gólfi, stórir gólfsíðir gluggar sem veita mikla birtu inn í rýmið. Opið við eldhús. Útgengt á verönd til suðurs.
Hjónaherbergi: er rúmgott með góðum fataskápum, parket á gólfi.
Svefnherbergi II: með fataskápum og góðum gluggum, parket á gólfi.
Svefnherbergi III: með fataskápum og góðum gluggum, parket á gólfi.
Svefnherbergi IV: Möguleiki á að bæta við fjórða svefnherberginu þar sem í dag er borðstofa við hliðina á eldhúsi (eignin er þannig skv samþykktum teikningum)
Verönd í suður: afmarkað með timburverönd skráð 8,5fm.
Verönd í norður: afmarkað með hellulögn skráð 24,8fm.
Tvöfalt K einangrunargler í gluggum.
Loftræstikerfi með vélrænni loftræstingu með útsogs og innloftsstútum.
Ath að búið er að breyta innra skipulagi frá samþykktum teikningum.
Bílageymsla:
Hægt er með einföldum hætti að setja upp rafhleðslustöð við hvert stæði.
Bílageymsla er upphituð með hitastig undir 10 gráðum (frostfrí).
Allar frekari upplýsingar um eignina veitir:
Guðmundur Hallgrímsson Löggiltur fasteignasali í síma 898-5115 / [email protected]
-Vegna mikillar eftirspurnar vantar allar tegundir eigna á skrá.
-Hafðu samband og við verðmetum eignina þína þér að kostnaðarlausu.
Gjöld sem kaupandi þarf að standa straum af vegna kaupanna:
1. Stimpilgjald af kaupsamningi - 0,4% (fyrstu kaup), 0,8%(einstaklingar) 1.6% (lögaðilar) af heildarfasteignamati.
2. Lántökugjald af veðskuldabréfi mishátt milli lánastofnuna. Nánari upplýsingar á t.d. heimasíðu lánastofnana.
3. Þinglýsingargjald af kaupsamningi, veðskuldabréfi, mögulegu veðleyfi o.fl. - kr. 2.700 af hverju skjali.
4. Umsýslugjald til fasteignasölu 74.900,
5 herbergja íbúð á fyrstuhæð með sérinngangi og skiptist í anddyri, baðherbergi með þvottaaðstöðu, eldhús, stofu, borðstofu og þrjú til fjögur svefnherbergi.
Eignin er seld, áður auglýst opið hús fellur niður!
Verönd til suðurs og til norðurs. Gluggar til suðurs, vesturs og norðurs.
Sér Geymsla 9,8 fm. Bílastæði fylgir í bílageymslu, sameigninleg hjóla/vagna geymsla.
Nánari lýsing:
Anddyri: er með fataskápum og fallegum 60x60 flísum á gólfi.
Baðherbergi: veggir að hluta flísalagðir með fallegum Terrazzo flísum, upphengt salerni, speglaskáp og innrétting í ljósum furulit, handklæðaofn og walk-in sturta með gleri.
Eldhús: er með fallegri innréttingu með svörtum höldum frá Voke-3 í ljósum Aland Pine Polar lit. Gott vinnurými og skápapláss.
Stofa og borðstofa: Parket á gólfi, stórir gólfsíðir gluggar sem veita mikla birtu inn í rýmið. Opið við eldhús. Útgengt á verönd til suðurs.
Hjónaherbergi: er rúmgott með góðum fataskápum, parket á gólfi.
Svefnherbergi II: með fataskápum og góðum gluggum, parket á gólfi.
Svefnherbergi III: með fataskápum og góðum gluggum, parket á gólfi.
Svefnherbergi IV: Möguleiki á að bæta við fjórða svefnherberginu þar sem í dag er borðstofa við hliðina á eldhúsi (eignin er þannig skv samþykktum teikningum)
Verönd í suður: afmarkað með timburverönd skráð 8,5fm.
Verönd í norður: afmarkað með hellulögn skráð 24,8fm.
Tvöfalt K einangrunargler í gluggum.
Loftræstikerfi með vélrænni loftræstingu með útsogs og innloftsstútum.
Ath að búið er að breyta innra skipulagi frá samþykktum teikningum.
Bílageymsla:
Hægt er með einföldum hætti að setja upp rafhleðslustöð við hvert stæði.
Bílageymsla er upphituð með hitastig undir 10 gráðum (frostfrí).
Allar frekari upplýsingar um eignina veitir:
Guðmundur Hallgrímsson Löggiltur fasteignasali í síma 898-5115 / [email protected]
-Vegna mikillar eftirspurnar vantar allar tegundir eigna á skrá.
-Hafðu samband og við verðmetum eignina þína þér að kostnaðarlausu.
Gjöld sem kaupandi þarf að standa straum af vegna kaupanna:
1. Stimpilgjald af kaupsamningi - 0,4% (fyrstu kaup), 0,8%(einstaklingar) 1.6% (lögaðilar) af heildarfasteignamati.
2. Lántökugjald af veðskuldabréfi mishátt milli lánastofnuna. Nánari upplýsingar á t.d. heimasíðu lánastofnana.
3. Þinglýsingargjald af kaupsamningi, veðskuldabréfi, mögulegu veðleyfi o.fl. - kr. 2.700 af hverju skjali.
4. Umsýslugjald til fasteignasölu 74.900,
Ár
Fasteignamat
Kaupverð
Stærð
Fermetraverð
5. des. 2023
78.450.000 kr.
93.000.000 kr.
129 m²
720.930 kr.
11. feb. 2011
36.900.000 kr.
43.000.000 kr.
462.4 m²
92.993 kr.
Byggt á upplýsingum úr Þjóðskrá Íslands frá 2006-2026