Löggiltir fasteignasalar innan Félags fasteignasala:
Hilmar Gunnlaugsson hrl
Sigurður Magnússon
Bryndís Björt Hilmarsdóttir
Vista
parhús

Stekkjarholt 5

730 Reyðarfjörður

85.900.000 kr.

537.884 þ.kr./m2
Fasteignanúmer

F2339543

Fasteignamat

5.310.000 kr.

Brunabótamat

0 kr.

Áhvílandi

0 kr.

Arion banki – Reikna lán
Upplýsingar
svg
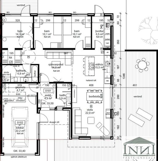
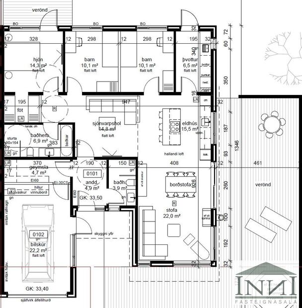
159,7 m²
svg
4 herb.
svg
2 baðherb.
svg
3 svefnh.
svg
Þvottahús
svg
Bílskúr
svg
Sérinngangur

Lýsing

INNI fasteignasala s. 580 7905 -  [email protected]
 

Glæsileg parhúsaíbúð með þremur rúmgóðum svefnherbergjum, auk sjónvarpshols. Stofa og eldhús í opnu rými með útgengt í garð. Innbyggður bílskúr sem innangengt er í. 
Miðað er við að afhenda íbúðina tilbúna til innréttinga og fullbúna að utan en byggingaraðili/seljandi er einnig tilbúin að fullklára eignina samkvæmt samkomulagi við kaupendur henti það betur.
Arkitekt og aðalhönnuður hússins er Guðmundur Gunnlaugsson arkitekt hjá Archus arkitektar.


Húsið er byggt sem hefðbundið timburhús á staðnum.  Húsformin hafa hallandi þök að öllu leyti og eru hefðbundin úr 250mm sperrum og frágangi með efsta lag úr ábræddum pappalögum. 
Húsið er klætt annarsvegar með báruformuðu áli í dökkgráum lit (RAAL 7016) þ.e.a.s. stofuhluti og milli glugga að aftanverðu.  Aðrir hlutar hússins eru klæddir með viðhaldsfríu efni með ljósri viðaráferð. Þakkantur hallandi þaks er veglegur að framan og er klæddur koksgráu áli, timburklæðning undir.  Skyggni er yfir aðalinnkomu og er þar lýsing.
Gluggar eru úr timbri, álklæddir.  Í gólfsíðum gluggum er hert gler. Útihurðir og bílskúrshurð verða í sama lit og gluggar.   Bílskúrshurðin verður flekahurð.
Mulningur er í bílaplani og lóð grófjöfnuð.
Að innan er húsinu skilað skv. nánari skilalýsingu hér að neðan.

Frágangur innanhúss:
Gólfefni:
 Eignin er afhent án gólfefna, búið að koma fyrir hitalögn og tilbúið undir flotun.
Útveggir og loft:  Inni eru allir veggir spartlaðir, grunnaðir eina umferð, tilbúnir fyrir fínspörtlun og málningu.
Gluggar og hurðir: Gluggar eru úr timbri, álklæddir.  Í gólfsíðum gluggum er hert gler. Útihurðar og bílskúrshurð verða í sama lit og gluggar.   Bílskúrshurðin verður flekahurð.
Innveggir: Innveggir eru allir upp komnir samkvæmt teikningu. Þeir eru klæddir beggja megin með tvöföldu gifsi. Þar sem innréttingar koma upp er á flestum stöðum spónaplötur eða krossviður undir festi punktum. Allir veggir eru einangraðir.
Baðherbergi: Baðherbergi verður tilbúið undir flotun gólfa og allir veggir spartlaðir og grunnaðir eina umferð tilbúið undir fínspörtlun og málningu.     
Pípulagnir: Neysluvatnið er rör í rör, þrýsti prófað. Gólfhitalagnir eru í öllu húsinu og bílskúr. Hitagrindur eru tengdar en ekki komið upp stýrikerfi (rafmagn).         
Hitakerfi: Gólfhitakerfi er í öllu húsinu og eru hitakistur fyrir allt húsið staðsettar í bílskúr. 
Lýsing: vinnuljós eru tengd í hverju herbergi. Rofar og tenglar fylgja ekki.
Rafmagns- og sjónvarpslagnir: skilast með ídrætti, rofar, tenglar og innstungur fylgja ekki. 
Bílskúr: Gólfplata er gróf pússuð með niðurfalli. Allir veggir og loft eru klæddir með tvöföldu lagi af gifsi. Búið er að ganga frá rafmagnstöflu og gólfhitagrind er frágengin án hitastýringa og nema sem koma síðar í hvert herbergi.
Lagnir: Fráveitulagnir innanhús eru fullgerðar og frágengnar frá niðurföllum og þrifatækjum. Neysluvatnslagnir er tengdar við stofninntag, fullgerðar og frágengnar að tækjum. Hitakerfi eru fullgerð og frágengin. Gólfhiti er í húsinu.
Rafmagn: Heimtaug rafmagns er tengd og frágengin. Pípur fyrir raf,- og boðlagnir milli töflu og tengidósa er fullgerð. Vinnuljós eru tengd í hverju herbergi. Rafbúnaður vegna vatnshitunar og loftræstingu er fullgerður og frágenginn.

Frágangur utanhúss:
Útveggir: Húsið er byggt sem hefðbundið timburhús á staðnum.
Þak: Húsformin hafa hallandi þök að öllu leyti og eru hefðbundin úr 250mm sperrum og frágangi með efsta lag úr ábræddum pappalögum. 
Gluggar og útihurðir: Gluggar eru úr timbri, álklæddir. Í gólfsíðum gluggum er hert gler.  Útihurðar verða í sama lit og gluggar.  
Bílskúrshurð: Er í sama lit og aðrar hurðar og gluggar. Hurðin verður flekahurð.

Annað:
Reykpípa úr stáli verður utan á húsinu til að hafa möguleika á arin/kamínu
Þrjú ídráttarrör eru út úr sökkli fyrir pott og rafmagn.
Lagt er ídráttarrör fyrir rafhleðslustöð fyrir rafbíla.
Skjólveggur á milli íbúða að aftanverðu og er hann úr sama efni og timburklæðning hússins.
Ruslatunnuskýli verður til staðar.
 
Beri teikningum um útlit og frágang hússins ekki við skrifaðan texta, ræður hinn skrifaði texti. Annað en framtalið fylgir ekki með í kaupum.
 
Möguleiki er á að fá húsið afhent á öðru byggingastigi og fullklárað. Allt gólfefni, innihurðar og allar innréttingar yrðu þá í samráði við væntanlega kaupendur. Endanlegt verð er í samræmi við efnisval kaupenda og væri skoðað hverju sinni.
Byggingarstig 2 - Fokheld bygging - Verð: 73,5 milljónir.
Byggingarstig 3 - Tilbúin til innréttinga - Verð: 85,9 milljónir.
Byggingarstig 4 - Fullgerð bygging - Verð: 104,9 milljónir. 

Áætlaður afhendingartími:
Tilbúin til innréttinga - vor 2026.
Fullbúin íbúð - haust 2026.

INNI fasteignasala ehf

INNI fasteignasala ehf

Fagradalsbraut 11, 700 Egilsstaðir
phone
INNI fasteignasala ehf

INNI fasteignasala ehf

Fagradalsbraut 11, 700 Egilsstaðir
phone