Löggiltir fasteignasalar innan Félags fasteignasala:
Hannes Steindórsson
Bogi Molby Pétursson
Guðrún Antonsdóttir
Heimir Hallgrímsson
Hrafnkell P. H. Pálmason
Viðar Marinósson
Elías Haraldsson
Kristján Þórir Hauksson
Albert Bjarni Úlfarsson
Ragnar Þorsteinsson
Þórey Ólafsdóttir
Andri Freyr Halldórsson
Upplýsingar
Byggt 2023
109,1 m²
4 herb.
1 baðherb.
3 svefnh.
Þvottahús
Sameiginl. inngangur
Bílastæði
Lyfta
Laus strax
Lýsing
BÓKIÐ EINKASKOÐUN Í SÍMA 899-3335 EÐA [email protected], ALLAR ÍBÚÐIR.
**AFHENDING VIÐ KAUPSAMNING** LIND fasteignasala kynnir nýjar og glæsilegar íbúðir í fimm hæða húsi við Hringhamar 35 í nýju hverfi í Hamranesi í Hafnarfirði. Flestum íbúðum fylgir stæði í bílageymslu. Vandaðar, sérsmíðaðar innréttingar frá Bræðrunum Ormsson, tæki frá AEG. Myndavéladyrasími í öllum íbúðum. Íbúðirnar afhendast fullbúnar án gólfefna en flísar verða á votrýmum. Húsið er steinsteypt, einangrað að utan og klætt með álklæðningu. Allir gluggar eru timbur-álgluggar frá Byko. Glæsilegar íbúðir í nýju hverfi í Hafnarfirðinum þaðan sem skólar og leikskólar eru í göngufæri og stutt er í alla helstu þjónustu. Fallegar gönguleiðir allt í kring.
Allir kaupendur og seljendur hjá LIND fasteignasölu fá Vildarkort Lindar sem veitir 30% afslátt hjá fjölmörgum fyrirtækjum.
NÁNARI UPPLÝSINGAR UM ALLAR ÍBÚÐIRNAR HJÁ:
Láru Þyri, löggiltum fasteignasala í síma 899-3335 eða [email protected]
SJÁ UPPLÝSINGAVEF FYRIR HRINGHAMAR 35-37 HÉR.
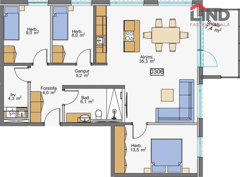
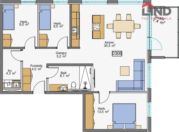
Íbúð 306:
Fjögurra herbergja íbúð á 3. hæð með austursvölum.
Stærð: 109,1 fm, þar af geymsla 10,3 fm.
Stæði í bílageymslu merkt B-03 fylgir eigninni. Sérgeymslan er við bílastæðið.
Forstofa: Fataskápur.
Eldhús: Vönduð innrétting frá Arens með eldunareyju, ljúflokubúnaður á skúffum og skápum, tengi fyrir uppþvottavél.
Stofa: Eldhús og stofa eru í opnu rými. Útgengi úr stofu á austursvalir (7,4 fm).
Þrjú svefnherbergi, öll með fataskáp.
Baðherbergi: Flísar á gólfi og hluta veggja, upphengt salerni, vönduð innrétting með ljúflokubúnaði.
Þvottahús: Flísar á gólfi, innrétting með upphækkun undir vélum.
Sérgeymsla (0033) fyrir framan stæði í bílageymslu.
Sameiginleg hjóla- og vagnageymsla er í sameign
Hringhamar 35-37 eru tvö fimm hæða hús sem standa ofan á steyptum, sameiginlegum kjallara með geymslum og bílastæðum. Samtals eru 46 íbúðir í húsunum.
Húsið er steinsteypt, eingangrað að utan með steinull og klætt að stærstum hluta með álklæðningu, timburklæðning er inná flestum svölum. Gluggar eru eftirísettir áltré gluggakerfi frá Byko. Stigahús eru teppalögð en andyrishús flísalögð með hálkufríum flísum. Innréttingar og skápar eru frá Arens og eru með ljúflokunarbúnaði. Eldhústæki eru frá Bræðrunum Ormsson.
Byggingaraðili er Dverghamrar ehf., traustur verktaki síðan 1986. Fyrirtækið hefur lagt áherslu á byggingu íbúðar- og iðnaðarhúsnæðis og hefur byggt upp yfir 37 ára reynslu á því sviði.
Byggingastjórar fyrirtækisins starfa eftir vottuðu gæðastjórnunarkerfi þar sem lögð er rík áhersla á fagleg vinnubrögð. Framkvæmdar eru reglulegar úttektir á verkþáttum framkvæmdarinnar þar sem tryggt er að unnið sé í samræmi við verklýsingar og að skilað sé traustri og góðri vöru á réttum tíma.
Arkitekt hússins er Orri Árnason hjá Zeppelin arkitektar. Raflagnahönnun er unnin af Agnari Sveinssyni. Lagnahönnun og burðarþolshönnun er unnin af verkfræðistofunni New Nordic Engineering.
ATH: Ljósmyndir á vef sýna myndir af íbúð 506 sem er með sama skipulagi og íbúð 306.
Allar nánari upplýsingar veitir:
Lára Þyri Eggertsdóttir, löggiltur fasteignasali/B.A. í lögfræði í síma 899-3335 eða [email protected]
Gjöld sem kaupandi þarf að standa straum af vegna kaupanna:
1. Stimpilgjald af kaupsamningi - 0,8% af heildarfasteignamati, lögaðili greiðir 1,6%
2. Þinglýsingargjald af kaupsamningi, veðskuldabréfi, mögulegu veðleyfi o.fl. - kr. 2.700 af hverju skjali.
3. Lántökugjald lánastofnunar. Nánari upplýsingar á t.d. heimasíðu lánastofnana.
4. Umsýslugjald til fasteignasölu 74.900.- með vsk.
5. Kaupandi greiðir skipulagsgjald, 0,3% af brunabótamati, þegar það verður lagt á.
**AFHENDING VIÐ KAUPSAMNING** LIND fasteignasala kynnir nýjar og glæsilegar íbúðir í fimm hæða húsi við Hringhamar 35 í nýju hverfi í Hamranesi í Hafnarfirði. Flestum íbúðum fylgir stæði í bílageymslu. Vandaðar, sérsmíðaðar innréttingar frá Bræðrunum Ormsson, tæki frá AEG. Myndavéladyrasími í öllum íbúðum. Íbúðirnar afhendast fullbúnar án gólfefna en flísar verða á votrýmum. Húsið er steinsteypt, einangrað að utan og klætt með álklæðningu. Allir gluggar eru timbur-álgluggar frá Byko. Glæsilegar íbúðir í nýju hverfi í Hafnarfirðinum þaðan sem skólar og leikskólar eru í göngufæri og stutt er í alla helstu þjónustu. Fallegar gönguleiðir allt í kring.
Allir kaupendur og seljendur hjá LIND fasteignasölu fá Vildarkort Lindar sem veitir 30% afslátt hjá fjölmörgum fyrirtækjum.
NÁNARI UPPLÝSINGAR UM ALLAR ÍBÚÐIRNAR HJÁ:
Láru Þyri, löggiltum fasteignasala í síma 899-3335 eða [email protected]
SJÁ UPPLÝSINGAVEF FYRIR HRINGHAMAR 35-37 HÉR.
Íbúð 306:
Fjögurra herbergja íbúð á 3. hæð með austursvölum.
Stærð: 109,1 fm, þar af geymsla 10,3 fm.
Stæði í bílageymslu merkt B-03 fylgir eigninni. Sérgeymslan er við bílastæðið.
Forstofa: Fataskápur.
Eldhús: Vönduð innrétting frá Arens með eldunareyju, ljúflokubúnaður á skúffum og skápum, tengi fyrir uppþvottavél.
Stofa: Eldhús og stofa eru í opnu rými. Útgengi úr stofu á austursvalir (7,4 fm).
Þrjú svefnherbergi, öll með fataskáp.
Baðherbergi: Flísar á gólfi og hluta veggja, upphengt salerni, vönduð innrétting með ljúflokubúnaði.
Þvottahús: Flísar á gólfi, innrétting með upphækkun undir vélum.
Sérgeymsla (0033) fyrir framan stæði í bílageymslu.
Sameiginleg hjóla- og vagnageymsla er í sameign
Hringhamar 35-37 eru tvö fimm hæða hús sem standa ofan á steyptum, sameiginlegum kjallara með geymslum og bílastæðum. Samtals eru 46 íbúðir í húsunum.
Húsið er steinsteypt, eingangrað að utan með steinull og klætt að stærstum hluta með álklæðningu, timburklæðning er inná flestum svölum. Gluggar eru eftirísettir áltré gluggakerfi frá Byko. Stigahús eru teppalögð en andyrishús flísalögð með hálkufríum flísum. Innréttingar og skápar eru frá Arens og eru með ljúflokunarbúnaði. Eldhústæki eru frá Bræðrunum Ormsson.
Byggingaraðili er Dverghamrar ehf., traustur verktaki síðan 1986. Fyrirtækið hefur lagt áherslu á byggingu íbúðar- og iðnaðarhúsnæðis og hefur byggt upp yfir 37 ára reynslu á því sviði.
Byggingastjórar fyrirtækisins starfa eftir vottuðu gæðastjórnunarkerfi þar sem lögð er rík áhersla á fagleg vinnubrögð. Framkvæmdar eru reglulegar úttektir á verkþáttum framkvæmdarinnar þar sem tryggt er að unnið sé í samræmi við verklýsingar og að skilað sé traustri og góðri vöru á réttum tíma.
Arkitekt hússins er Orri Árnason hjá Zeppelin arkitektar. Raflagnahönnun er unnin af Agnari Sveinssyni. Lagnahönnun og burðarþolshönnun er unnin af verkfræðistofunni New Nordic Engineering.
ATH: Ljósmyndir á vef sýna myndir af íbúð 506 sem er með sama skipulagi og íbúð 306.
Allar nánari upplýsingar veitir:
Lára Þyri Eggertsdóttir, löggiltur fasteignasali/B.A. í lögfræði í síma 899-3335 eða [email protected]
Gjöld sem kaupandi þarf að standa straum af vegna kaupanna:
1. Stimpilgjald af kaupsamningi - 0,8% af heildarfasteignamati, lögaðili greiðir 1,6%
2. Þinglýsingargjald af kaupsamningi, veðskuldabréfi, mögulegu veðleyfi o.fl. - kr. 2.700 af hverju skjali.
3. Lántökugjald lánastofnunar. Nánari upplýsingar á t.d. heimasíðu lánastofnana.
4. Umsýslugjald til fasteignasölu 74.900.- með vsk.
5. Kaupandi greiðir skipulagsgjald, 0,3% af brunabótamati, þegar það verður lagt á.