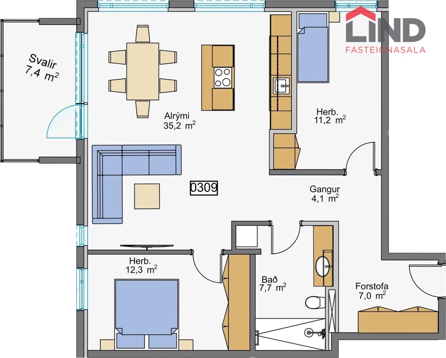
Hringhamar 35 Íb 309, 221 Hafnarfjörður