Löggiltir fasteignasalar innan Félags fasteignasala:
Hilmar Gunnlaugsson hrl
Sigurður Magnússon
Bryndís Björt Hilmarsdóttir
Vista
einbýlishús

Flatasel 10

700 Egilsstaðir

99.500.000 kr.

450.634 þ.kr./m2
Fasteignanúmer

F2298396

Fasteignamat

93.350.000 kr.

Brunabótamat

126.100.000 kr.

Áhvílandi

0 kr.

Arion banki – Reikna lán
Upplýsingar
Verðsaga
svg
Byggt 2007
svg
220,8 m²
svg
6 herb.
svg
2 baðherb.
svg
4 svefnh.
svg
Þvottahús
svg
Bílskúr
svg
Sérinngangur

Lýsing

INNI fasteignasala s. 580 7905 -  [email protected]
 

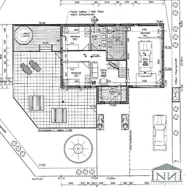
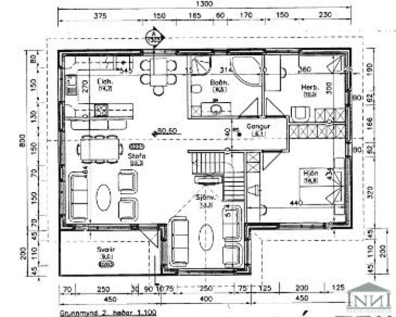
Einbýlishús á tveimur hæðum með bílskúr við Flatasel á Egilsstöðum. Fjögur svefnherbergi og tvö baðherbergi eru í húsinu. Eign í mjög góðu ástandi.
Gengið er inn í rúmgóða flísalagða forstofu með fatahengi. Þaðan er komið í flísalagt hol þar sem er tignarlegur stigi upp á efri hæð. Á neðri hæðinni eru tvö svefnherbergi, baðherbergi, þvottahús og innangengt í bílskúr. Herbergi eru parketlögð. Baðherbergi er flísalagt í hólf og gólf og er með innréttingu, handklæðaofni og sturtu. Útgengt er frá herbergjagangi á neðri hæð á pall með heitum potti. Þvottahús er með innréttingu með plássi fyrir þvottavél og þurrkara í vinnuhæð, flísar eru á gólfi. Þaðan er gengt í stóran flísalagðan bílskúr með bílskúrshurð með rafmagnsopnun. Á efri hæð hússins er eldhús, stofa, tvö svefnherbergi og baðherbergi. Herbergi eru parketlögð, annað þeirra er hjónaherbergi með sexföldum fataskáp og hitt er minna. Baðherbergi er flísalagt í hólf og gólf og er með innréttingu, handklæðaofni og sturtu. Eldhús er með góðri innréttingu þar sem bakaraofn er í vinnuhæð og pláss er fyrir tvöfaldan ísskáp (sem getur fylgt með). Borðkrókur er í eldhúsrými sem er svo opið yfir í stórt stofurými. Stofa er björt og mjög rúmgóð með plássi fyrir bæði setustofu og sjónvarpsrými. Þaðan er útgengt á svalir sem snúa til suðurs og eru með fallegu útsýni. Flísar eru á gólfi í eldhúsi og stofu.
Aðkoma hússins er sérlega falleg. Stórt hellulagt plan með hita er framan við húsið. Garður er vel hirtur. Pallur er stór og afgirtur og er bæði timbur pallur og hellulagt svæði með heitum potti (rafmagns).
Flestir gluggar hússins voru málaðir á síðasta ári (þeir sem hægt er að ná í án stiga). Hiti er í gólfum í húsinu og nýjar hitastýringar eru í öllum herbergjum. Háaloft er yfir herbergjum á efri hæð. 

Grunnteikningar eru fengnar af kortasjá Múlaþings á www.mulathing.is og staðsetning er fengin af ja.is.

INNI fasteignasala ehf

INNI fasteignasala ehf

Fagradalsbraut 11, 700 Egilsstaðir
phone
Ár
Fasteignamat
Kaupverð
Stærð
Fermetraverð
1. júl. 2020
51.250.000 kr.
60.000.000 kr.
220.8 m²
271.739 kr.
Byggt á upplýsingum úr Þjóðskrá Íslands frá 2006-2026
INNI fasteignasala ehf

INNI fasteignasala ehf

Fagradalsbraut 11, 700 Egilsstaðir
phone