Upplýsingar
Verðsaga
Byggt 2019
94,4 m²
4 herb.
1 baðherb.
3 svefnh.
Útsýni
Lyfta
Lýsing
Fasteignasalan Hvammur 466 1600
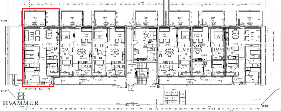
Davíðshagi 6 íbúð 101 - Skemmtileg 4ra herbergja íbúð með sérinngangi á jarðhæð í góðu fjölbýlishúsi í Hagahverfi - stærð 94,4 m²
Eignin skiptist í forstofu, eldhús, stofu, gang, þrjú svefnherbergi og baðherbergi með þvottaaðstöðu. Sér geymsla er í kjallara.
Forstofa, flísar á gólfi og tvöfaldur fataskápur .
Eldhús, vönduð innrétting og skápur út plastlagðri struktur-eik. Svart keramik helluborð, stál bakaraofn og innbyggð vifta. Ísskápur með frysti er innbyggður í innréttingu og fylgir með við sölu eignar.
Stofa ljóst harð parket á gólfi og hurð út á steypta verönd (skráð 13,0 m² skv. teikningu).
Svefnherbergin eru þrjú, öll með harð parketi á gólfi og fataskápum. Stærð herbergja er skv. teikningum 8,1, 9,6 og 11,9 m².
Baðherbergi er flísalagt bæði gólf og veggir, vönduð innrétting er úr plastlagðri struktur-eik og speglaskápur, upphengt wc og sturta með glerhurðum. Stæði er í innréttingu fyrir þvottavél og þurrkara í vinnuhæð.
Sér geymsla er í kjallara, skráð 8,8 m² að stærð. Þar eru flísar á gólfi og hillur.
Annað
- Íbúðin er nýlega máluð
- Gólfhiti er í öllum rýmum íbúðar.
- Innihurðir eru úr plastlagðri struktur-eik.
- Búið er að stækka verönd til vesturs.
- Mynddyrasími
- Snyrtileg sameign.
- Hjóla- og vagnageymsla í sameigninni er með flísum á gólfi.
- Snjóbræðsla í stétt fyrir framan hús.
Um skoðunar- og aðgæsluskyldu:
Í lögum um fasteignakaup nr. 40/2002 er kveðið á um ríka skoðunarskyldu kaupenda á fasteignum. Fasteignasalan Hvammur skorar því á væntanlega kaupendur að kynna sér vel ástand fasteigna fyrir kauptilboðsgerð og leita til þar til bærra sérfræðinga um nánari skoðun ef með þarf.
Forsendur söluyfirlits:
Söluyfirlit er samið af fasteignasala í samræmi við ákvæði laga nr. 70/2015. Þær upplýsingar sem fram koma í söluyfirliti þessu eru sóttar í opinberar skrár, til seljanda sjálfs og eftir atvikum til húsfélags. Seljandi veitir upplýsingar um eign í samræmi við upplýsingaskyldu laga um fasteignakaup nr. 40/2002. Fasteignasali sannreynir að þær upplýsingar séu réttar með sjónskoðun á eigninni. Fasteignasali getur ekki fullyrt um ástand og eiginleika þeirra hluta fasteigna sem ekki eru aðgengilegir og sjást ekki berum augum, t.d. lagnir, dren, skólp og þak.
Davíðshagi 6 íbúð 101 - Skemmtileg 4ra herbergja íbúð með sérinngangi á jarðhæð í góðu fjölbýlishúsi í Hagahverfi - stærð 94,4 m²
Eignin skiptist í forstofu, eldhús, stofu, gang, þrjú svefnherbergi og baðherbergi með þvottaaðstöðu. Sér geymsla er í kjallara.
Forstofa, flísar á gólfi og tvöfaldur fataskápur .
Eldhús, vönduð innrétting og skápur út plastlagðri struktur-eik. Svart keramik helluborð, stál bakaraofn og innbyggð vifta. Ísskápur með frysti er innbyggður í innréttingu og fylgir með við sölu eignar.
Stofa ljóst harð parket á gólfi og hurð út á steypta verönd (skráð 13,0 m² skv. teikningu).
Svefnherbergin eru þrjú, öll með harð parketi á gólfi og fataskápum. Stærð herbergja er skv. teikningum 8,1, 9,6 og 11,9 m².
Baðherbergi er flísalagt bæði gólf og veggir, vönduð innrétting er úr plastlagðri struktur-eik og speglaskápur, upphengt wc og sturta með glerhurðum. Stæði er í innréttingu fyrir þvottavél og þurrkara í vinnuhæð.
Sér geymsla er í kjallara, skráð 8,8 m² að stærð. Þar eru flísar á gólfi og hillur.
Annað
- Íbúðin er nýlega máluð
- Gólfhiti er í öllum rýmum íbúðar.
- Innihurðir eru úr plastlagðri struktur-eik.
- Búið er að stækka verönd til vesturs.
- Mynddyrasími
- Snyrtileg sameign.
- Hjóla- og vagnageymsla í sameigninni er með flísum á gólfi.
- Snjóbræðsla í stétt fyrir framan hús.
Um skoðunar- og aðgæsluskyldu:
Í lögum um fasteignakaup nr. 40/2002 er kveðið á um ríka skoðunarskyldu kaupenda á fasteignum. Fasteignasalan Hvammur skorar því á væntanlega kaupendur að kynna sér vel ástand fasteigna fyrir kauptilboðsgerð og leita til þar til bærra sérfræðinga um nánari skoðun ef með þarf.
Forsendur söluyfirlits:
Söluyfirlit er samið af fasteignasala í samræmi við ákvæði laga nr. 70/2015. Þær upplýsingar sem fram koma í söluyfirliti þessu eru sóttar í opinberar skrár, til seljanda sjálfs og eftir atvikum til húsfélags. Seljandi veitir upplýsingar um eign í samræmi við upplýsingaskyldu laga um fasteignakaup nr. 40/2002. Fasteignasali sannreynir að þær upplýsingar séu réttar með sjónskoðun á eigninni. Fasteignasali getur ekki fullyrt um ástand og eiginleika þeirra hluta fasteigna sem ekki eru aðgengilegir og sjást ekki berum augum, t.d. lagnir, dren, skólp og þak.
Ár
Fasteignamat
Kaupverð
Stærð
Fermetraverð
11. mar. 2025
55.200.000 kr.
64.400.000 kr.
10101 m²
6.376 kr.
16. júl. 2024
53.050.000 kr.
63.000.000 kr.
10101 m²
6.237 kr.
25. júl. 2022
38.650.000 kr.
56.600.000 kr.
94.4 m²
599.576 kr.
21. ágú. 2019
36.350.000 kr.
38.200.000 kr.
94.4 m²
404.661 kr.
Byggt á upplýsingum úr Þjóðskrá Íslands frá 2006-2026