Löggiltir fasteignasalar innan Félags fasteignasala:
Eiríkur Svanur Sigfússon
Aron Freyr Eiríksson
Melkorka Guðmundsdóttir
Kristófer Fannar Guðmundsson
Svala Haraldsdóttir
Stefán Rafn Sigurmannsson
Arnór Daði Eiríksson
Vista
svg

455

svg

407  Skoðendur

svg

Skráð  2. sep. 2025

atvinnuhúsnæði

Dverghella 3 bil 119

221 Hafnarfjörður

46.000.000 kr.

346.386 þ.kr./m2
Fasteignanúmer

F8000119

Fasteignamat

0 kr.

Brunabótamat

0 kr.

Áhvílandi

0 kr.

Arion banki – Reikna lán
Upplýsingar
svg
132,8 m²
svg
1 herb.

Lýsing

Nýtt og glæsilegt geymslu- og atvinnuhúsnæði við Dveghellu 3 í Hafnarfirði.
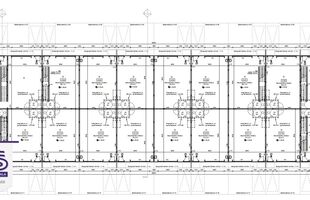
Húsnæðið skilast fullfrágengið með lokaúttekt (B.stig 7/ Matstig 4) og skiptist í 19 einingar í mismunandi stærðum, bæði einni og tveimur hæðum.


Stærð: 65 - 194,4 fm.
Verð: 34,5 - 84,5 mkr.
Lofthæð: ca. 6,5m við útvegg og ca. 7,5m við mæni.
Innkeyrsluhurð: 3,25m x 3,60m (HxB) frá Hörmann.
Áætluð afhending: Júní 2026

Smelltu hér til að skoða laus bil í húsinu.

Nánari lýsing:


- Burðargrind úr límtré, klædd með PIR Quad Core samlokueiningum frá Kingspan.
- Gólf járnbent, staðsteypt og vélslípuð.
- 2. hæð byggð upp úr berandi stálbitum og klædd með 12cm þykkum límtrés einingum.
- Stigi á milli hæða þar sem við á úr límtrés þrepum.
- Húsnæðið hitað upp með gólfhita.
- Sérrafmangstafla og 3ja fasa tengill í öllum bilum.
- Frárennslislagnir til staðar fyrir möguleika á salerni í öllum bilum.
- Ræstivaskur í öllum bilum.
- Lóð skilast fullfrágengin skv. afstöðumynd með malbikuðu bílaplani.

Verktaki verkefnisins er traustur verktaki til margra ára, KB verk.

Allar nánari upplýsingar veita sölumenn Ás s. 520-2600 / [email protected] eða:

Arnór Daði Eiríksson, löggiltur fasteignasali s. 777-0939 / [email protected]
Aron Freyr Eiríksson, löggiltur fasteignasali s. 772-7376 / [email protected]
Stefán Rafn Sigurmannsson, löggiltur fasteignasali s. 655-7000 / [email protected]


Ás fasteignasala er rótgróið fyrirtæki sem hefur veitt alla almenna þjónustu í fasteignaviðskiptum frá árinu 1988.
www.facebook.com/asfasteignasala
www.instagram.com/as_fasteignasala
www.as.is


 

Ás fasteignasala

Ás fasteignasala

Fjarðargötu 17, 220 Hafnarfirði
phone
Ás fasteignasala

Ás fasteignasala

Fjarðargötu 17, 220 Hafnarfirði
phone