Upplýsingar
Byggt 1945
62 m²
2 herb.
1 baðherb.
1 svefnh.
Þvottahús
Sameiginl. inngangur
Opið hús: 11. febrúar 2026
kl. 17:00
til 17:30
Opið hús: Vitastígur 3, 220 Hafnarfjörður, Íbúð merkt: 01 02 01. Eignin verður sýnd miðvikudaginn 11. febrúar 2026 milli kl. 17:00 og kl. 17:30.
Lýsing
Falleg 62 fm rishæð auk geymslu í kjallara við Vitastíg 3 í Hafnarfirði. Íbúðin er rúmgóð miðað við skráðan fermetrafjölda þar sem hún er að hluta undir súð.
Húsið stendur á einstaklega góðum stað í hjarta Hafnarfjarðar þar sem stutt er í almenningssamgöngur og alla helstu þjónustu.
Vakin er athygli á því að báðar íbúðir hússins eru til sölu og er mögulegt að kaupa þær saman eða hvora fyrir sig.
** Rúmgóð og björt rishæð
**Nýlega endurnýjuð
**Þak og ytra byrði nýlega tekið í gegn
Fyrstu kaupendur eiga möguleika á allt að 90% fjármögnun, skv. reglum viðkomandi lánastofnana.
Birt stærð eignar samkvæmt Þjóðskrá Íslands er 62 fm, þar af er geymsla 14,9 fm.
Nánari upplýsingar veita:
Páll Pálsson lgf. S: 775-4000 [email protected]
Ómar Hjaltason astmf. S:7789090 eða [email protected]
www.eignavakt.is
www.verdmat.is
Góð ráð fyrir kaupendur / seljendur
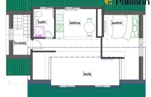
Eignin skiptist í sameiginlega forstofu, eldhús sem er opið til stofu og svefnherbergi. 14,9 fm geymsla ásamt sameiginlegu þvottahúsi er staðsett í kjallara.
Nánari lýsing á eign:
Sameiginlegur inngangur með íbúð á neðri hæð, flísalögð forstofa og hol. Stigagangur með nýlegu kókosteppi.
Eldhús með nýlegri innréttingu og gott pláss fyrir eldhúsborð. Harðparket á gólfi.
Björt stofa og möguleiki á að bæta við svefnherbergi ef þörf er á. Harðparket á gólfi.
Svefnherbergi með fataskáp
Flísalagt baðherbergi með nýlegri innréttingu og sturtuklefa.
Í kjallara er sameiginlegt þvottahús og sérgeymsla sem gengið er í að utanverðu.
Samkvæmt upplýsingum seljenda var húsið einangrað að utan og klætt báruáli árið 2024. Þakjárn var endurnýjað, strompur klæddur og allir gluggar/gler endurnýjaðir (að undanskildum gluggum í kjallara).
Lagnir og ofnar hafa verið endurnýjaðir að hluta.
Á árinu 2024 var rishæðin tekin í gegn: nýtt baðherbergi, ný eldhúsinnrétting, ný gólfefni, ofnar endurnýjaðir og allt málað.
Húsið lítur einstaklega vel út, bæði að utan og innan. Þetta er falleg og vel við haldin eign á vinsælum stað í Hafnarfirði sem vert er að skoða.
Athugið að húsgögn á myndum eru tölvuteiknuð og sýna mögulega innréttingarmöguleika.
Gjöld sem kaupandi þarf að standa straum af vegna kaupanna:
1. Stimpilgjald af kaupsamningi - 0.8% af heildarfasteignamati / 1.6% fyrir lögaðila. (0.4% við fyrstu kaup einstaklinga).
2. Þinglýsingagjald af kaupsamningi, veðskuldabréfi, veðleyfi o.fl.- kr. 3.800 af hverju skjali.
3. Lántökugjald lánastofnunar - samanber gjaldskrá viðkomandi lánastofnunar.
4. Umsýsluþóknun til fasteignasölu, sbr.kauptilboð.
Um skoðunarskyldu:
Í lögum um fasteignakaup nr. 40/2002 er kveðið á um ríka skoðunarskyldu kaupenda á fasteignum. Pálsson fasteignasala bendir væntanlegum kaupendum á að kynna sér vel ástand fasteigna við skoðun og fyrir tilboðsgerð og ef þurfa þykir að leita til sérfræðinga um nánari ástandsskoðun.
Húsið stendur á einstaklega góðum stað í hjarta Hafnarfjarðar þar sem stutt er í almenningssamgöngur og alla helstu þjónustu.
Vakin er athygli á því að báðar íbúðir hússins eru til sölu og er mögulegt að kaupa þær saman eða hvora fyrir sig.
** Rúmgóð og björt rishæð
**Nýlega endurnýjuð
**Þak og ytra byrði nýlega tekið í gegn
Fyrstu kaupendur eiga möguleika á allt að 90% fjármögnun, skv. reglum viðkomandi lánastofnana.
Birt stærð eignar samkvæmt Þjóðskrá Íslands er 62 fm, þar af er geymsla 14,9 fm.
Nánari upplýsingar veita:
Páll Pálsson lgf. S: 775-4000 [email protected]
Ómar Hjaltason astmf. S:7789090 eða [email protected]
www.eignavakt.is
www.verdmat.is
Góð ráð fyrir kaupendur / seljendur
Eignin skiptist í sameiginlega forstofu, eldhús sem er opið til stofu og svefnherbergi. 14,9 fm geymsla ásamt sameiginlegu þvottahúsi er staðsett í kjallara.
Nánari lýsing á eign:
Sameiginlegur inngangur með íbúð á neðri hæð, flísalögð forstofa og hol. Stigagangur með nýlegu kókosteppi.
Eldhús með nýlegri innréttingu og gott pláss fyrir eldhúsborð. Harðparket á gólfi.
Björt stofa og möguleiki á að bæta við svefnherbergi ef þörf er á. Harðparket á gólfi.
Svefnherbergi með fataskáp
Flísalagt baðherbergi með nýlegri innréttingu og sturtuklefa.
Í kjallara er sameiginlegt þvottahús og sérgeymsla sem gengið er í að utanverðu.
Samkvæmt upplýsingum seljenda var húsið einangrað að utan og klætt báruáli árið 2024. Þakjárn var endurnýjað, strompur klæddur og allir gluggar/gler endurnýjaðir (að undanskildum gluggum í kjallara).
Lagnir og ofnar hafa verið endurnýjaðir að hluta.
Á árinu 2024 var rishæðin tekin í gegn: nýtt baðherbergi, ný eldhúsinnrétting, ný gólfefni, ofnar endurnýjaðir og allt málað.
Húsið lítur einstaklega vel út, bæði að utan og innan. Þetta er falleg og vel við haldin eign á vinsælum stað í Hafnarfirði sem vert er að skoða.
Athugið að húsgögn á myndum eru tölvuteiknuð og sýna mögulega innréttingarmöguleika.
Gjöld sem kaupandi þarf að standa straum af vegna kaupanna:
1. Stimpilgjald af kaupsamningi - 0.8% af heildarfasteignamati / 1.6% fyrir lögaðila. (0.4% við fyrstu kaup einstaklinga).
2. Þinglýsingagjald af kaupsamningi, veðskuldabréfi, veðleyfi o.fl.- kr. 3.800 af hverju skjali.
3. Lántökugjald lánastofnunar - samanber gjaldskrá viðkomandi lánastofnunar.
4. Umsýsluþóknun til fasteignasölu, sbr.kauptilboð.
Um skoðunarskyldu:
Í lögum um fasteignakaup nr. 40/2002 er kveðið á um ríka skoðunarskyldu kaupenda á fasteignum. Pálsson fasteignasala bendir væntanlegum kaupendum á að kynna sér vel ástand fasteigna við skoðun og fyrir tilboðsgerð og ef þurfa þykir að leita til sérfræðinga um nánari ástandsskoðun.