Upplýsingar
Byggt 1945
138,7 m²
3 herb.
2 baðherb.
3 svefnh.
Þvottahús
Sameiginl. inngangur
Lýsing
Bjart og sjarmerandi 138,7 fm einbýlishús við Vitastíg 3. Eignin hefur hlotið góða endurnýjun á undanförnum árum. Húsið stendur á einstaklega góðum stað í hjarta Hafnarfjarðar þar sem stutt er í almenningssamgöngur og alla helstu þjónustu.
Vakin er athygli á því að eignin er skráð á tvö fastanúmer. Aðalhæð eignar er með fnr: 208-0611 og rið hæð eignar er með fnr: 208-0612.
**Þak, gluggar og klæðning endurnýjuð 2024
**Þrjú svefnherbergi og hægt að bæta einu við
**Rishæð nýlega endurnýjuð
**Frábær staðsetning í miðbæ Hafnarfjarðar
Birt stærð eignar á aðalhæð samkvæmt Þjóðskrá Íslands er 76,7 fm og birt stærð á eign í risi er 62 fm.
Nánari upplýsingar veita:
Páll Pálsson lgf. S: 775-4000 [email protected]
Ómar Hjaltason astmf. S:7789090 eða [email protected]
www.eignavakt.is
www.verdmat.is
Góð ráð fyrir kaupendur / seljendur
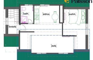
Eignin skiptist þannig að á aðalhæð er forstofa, gangur, eldhús, stofa, tvö svefnherbergi og baðherbergi. Á efri hæð hússins er eldhús sem er opið til stofu og svefnherbergi. Geymsla og þvottahús er staðsett í kjallara.
Nánari lýsing á aðalhæð:
Gengið er inn í forstofu og hol um sameiginlegan inngang. Fataskápur og flísar á gólfi.
Í eldhúsi er falleg ljósbrún viðarinnrétting með miklu skápaplássi. Gott pláss fyrir eldhúsborð. Flísar á milli efri og neðri skápa, harðparket á gólfi.
Björt og rúmgóð stofa. Harðparket á gólfi.
Tvö rúmgóð svefnherbergi með fataskápum og harðparketi á gólfi.
Baðherbergi er flísalagt. Baðkar með sturtuaðstöðu. Handlaug og upphengt salerni.
Nánari lýsing á efri hæð:
Gengið er upp stigagang með nýlegu kókosteppi.
Eldhús með nýlegri innréttingu og gott pláss fyrir eldhúsborð. Harðparket á gólfi.
Björt stofa og möguleiki á að bæta við svefnherbergi ef þörf er á. Harðparket á gólfi.
Svefnherbergi með fataskáp
Flísalagt baðherbergi með nýlegri innréttingu og sturtuklefa.
Í kjallara er þvottahús og geymsla sem gengið er í að utanverðu.
Samkvæmt upplýsingum seljenda var húsið einangrað að utan og klætt báruáli árið 2024. Þakjárn var endurnýjað, strompur klæddur og allir gluggar/gler endurnýjaðir (að undanskildum gluggum í kjallara). Lagnir og ofnar hafa verið endurnýjaðir að hluta. Á árinu 2024 var rishæðin tekin í gegn: nýtt baðherbergi, ný eldhúsinnrétting, ný gólfefni, ofnar endurnýjaðir og allt málað.
Húsið lítur einstaklega vel út, bæði að utan og innan. Þetta er falleg og vel við haldin eign á vinsælum stað í Hafnarfirði sem vert er að skoða.
Athugið að húsgögn á myndum í ris hæð eru tölvuteiknuð og sýna innréttingarmöguleika.
Gjöld sem kaupandi þarf að standa straum af vegna kaupanna:
1. Stimpilgjald af kaupsamningi - 0.8% af heildarfasteignamati / 1.6% fyrir lögaðila. (0.4% við fyrstu kaup einstaklinga).
2. Þinglýsingagjald af kaupsamningi, veðskuldabréfi, veðleyfi o.fl.- kr. 3.800 af hverju skjali.
3. Lántökugjald lánastofnunar - samanber gjaldskrá viðkomandi lánastofnunar.
4. Umsýsluþóknun til fasteignasölu, sbr.kauptilboð.
Um skoðunarskyldu:
Í lögum um fasteignakaup nr. 40/2002 er kveðið á um ríka skoðunarskyldu kaupenda á fasteignum. Pálsson fasteignasala bendir væntanlegum kaupendum á að kynna sér vel ástand fasteigna við skoðun og fyrir tilboðsgerð og ef þurfa þykir að leita til sérfræðinga um nánari ástandsskoðun.
Vakin er athygli á því að eignin er skráð á tvö fastanúmer. Aðalhæð eignar er með fnr: 208-0611 og rið hæð eignar er með fnr: 208-0612.
**Þak, gluggar og klæðning endurnýjuð 2024
**Þrjú svefnherbergi og hægt að bæta einu við
**Rishæð nýlega endurnýjuð
**Frábær staðsetning í miðbæ Hafnarfjarðar
Birt stærð eignar á aðalhæð samkvæmt Þjóðskrá Íslands er 76,7 fm og birt stærð á eign í risi er 62 fm.
Nánari upplýsingar veita:
Páll Pálsson lgf. S: 775-4000 [email protected]
Ómar Hjaltason astmf. S:7789090 eða [email protected]
www.eignavakt.is
www.verdmat.is
Góð ráð fyrir kaupendur / seljendur
Eignin skiptist þannig að á aðalhæð er forstofa, gangur, eldhús, stofa, tvö svefnherbergi og baðherbergi. Á efri hæð hússins er eldhús sem er opið til stofu og svefnherbergi. Geymsla og þvottahús er staðsett í kjallara.
Nánari lýsing á aðalhæð:
Gengið er inn í forstofu og hol um sameiginlegan inngang. Fataskápur og flísar á gólfi.
Í eldhúsi er falleg ljósbrún viðarinnrétting með miklu skápaplássi. Gott pláss fyrir eldhúsborð. Flísar á milli efri og neðri skápa, harðparket á gólfi.
Björt og rúmgóð stofa. Harðparket á gólfi.
Tvö rúmgóð svefnherbergi með fataskápum og harðparketi á gólfi.
Baðherbergi er flísalagt. Baðkar með sturtuaðstöðu. Handlaug og upphengt salerni.
Nánari lýsing á efri hæð:
Gengið er upp stigagang með nýlegu kókosteppi.
Eldhús með nýlegri innréttingu og gott pláss fyrir eldhúsborð. Harðparket á gólfi.
Björt stofa og möguleiki á að bæta við svefnherbergi ef þörf er á. Harðparket á gólfi.
Svefnherbergi með fataskáp
Flísalagt baðherbergi með nýlegri innréttingu og sturtuklefa.
Í kjallara er þvottahús og geymsla sem gengið er í að utanverðu.
Samkvæmt upplýsingum seljenda var húsið einangrað að utan og klætt báruáli árið 2024. Þakjárn var endurnýjað, strompur klæddur og allir gluggar/gler endurnýjaðir (að undanskildum gluggum í kjallara). Lagnir og ofnar hafa verið endurnýjaðir að hluta. Á árinu 2024 var rishæðin tekin í gegn: nýtt baðherbergi, ný eldhúsinnrétting, ný gólfefni, ofnar endurnýjaðir og allt málað.
Húsið lítur einstaklega vel út, bæði að utan og innan. Þetta er falleg og vel við haldin eign á vinsælum stað í Hafnarfirði sem vert er að skoða.
Athugið að húsgögn á myndum í ris hæð eru tölvuteiknuð og sýna innréttingarmöguleika.
Gjöld sem kaupandi þarf að standa straum af vegna kaupanna:
1. Stimpilgjald af kaupsamningi - 0.8% af heildarfasteignamati / 1.6% fyrir lögaðila. (0.4% við fyrstu kaup einstaklinga).
2. Þinglýsingagjald af kaupsamningi, veðskuldabréfi, veðleyfi o.fl.- kr. 3.800 af hverju skjali.
3. Lántökugjald lánastofnunar - samanber gjaldskrá viðkomandi lánastofnunar.
4. Umsýsluþóknun til fasteignasölu, sbr.kauptilboð.
Um skoðunarskyldu:
Í lögum um fasteignakaup nr. 40/2002 er kveðið á um ríka skoðunarskyldu kaupenda á fasteignum. Pálsson fasteignasala bendir væntanlegum kaupendum á að kynna sér vel ástand fasteigna við skoðun og fyrir tilboðsgerð og ef þurfa þykir að leita til sérfræðinga um nánari ástandsskoðun.