Upplýsingar
Verðsaga
Byggt 2021
205,5 m²
0 herb.
1 baðherb.
Sérinngangur
Lýsing
Hraunhamar fasteignasala og Hlynur Halldórsson löggiltur fasteignasali s: 698-2603 kynna í einkasölu ENDABIL merkt 0108 að Dofrahellu5 í 221 Hafnarfirði ásamt öllu því sem eigninni fylgir, þar með talið tilheyrandi lóðar og sameignarréttindi.
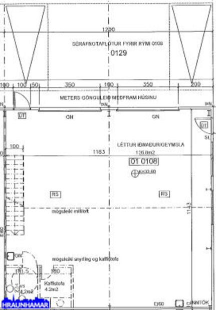
Samkvæmt birtum fm frá HMS er bilið 205,5 fm sem skiptist þannig að gólfflötur er 139,2 fm og skráð milliloft 66,3 fm. Milliloftið hefur verið sett upp að hálfu leyti og er því 33,15 fm þ.a raunstærð er því 172,35 fm en teikningar eru til af öllu milliloftinu og er því lítilli fyrirhöfn hægt að stækka það. Húsnæðið er með allt að 6 metra lofthæð og 2 stórum innkeyrsludyrum þ.e 3,7 m á hæð og 3,5 mf á breidd. Bilið er með 2 inngangshurðum og er önnur á gafli húsins og því er auðvelt hægt að skipta því upp í 2 bil.
Nánari lýsing:
Um er að ræða mjög vandað stálgrindarhús sem kemur frá Hallgruppen í Noregi sem er einn af stærstu framleiðandum af slíkum húsum á Norðurlöndum. Burðarvirki hússins er stál og er húsið klætt með Pir fylltum samlokueiningum. Þak er með stálsperrum með trapiszuplötum og Pir fylltum samlokueiningum. Undirstöður og botnplata eru staðsteypt. Í bilum er gólfhiti með lagnagrindum í hvoru rými fyrir sig.
Stórar og rúmgóðar innkeyrsludyr (3,5m breidd x 3,7m hæð) ásamt rafmagnsmótor frá Héðinn ehf. Gluggar og inngangshurðar eru úr áli. Milliveggir eru stálvirki, aflokað með samlokueiningum fyllltar með steinullareininagrun. Búið er að setja snyrtingu í við gafl innst í bilinu og þar möguleiki á að gera sturtu. Búið er að leggja vatn að annarri innkeyrsluhurðinni. Innandyra er LED lýsing og þriggja fasa rafmagn auk útiljósa. Sameiginlegt tæknrými er við enda húss næst götu og þar einnig sameiginlegt wc.
Eignin er með virðisaukaskattskvöð. Gert er ráðfyrir að kaupandi sé með vsk nr. til að yfirtaka kvöðina.
Allar nánari upplýsingar veitir Hlynur Halldórsson löggiltur fasteignasali á netfangið hlynur@hraunhamar.is eða s. 698-2603
Um skoðunar- og aðgæsluskyldu:
Í lögum um fasteignakaup nr. 40/2002 er kveðið á um ríka skoðunarskyldu kaupenda á fasteignum. Hraunhamar fasteignasala bendir væntanlegum kaupendum á að kynna sér vel ástand fasteigna við skoðun og fyrir tilboðsgerð og ef þurfa þykir að leita til sérfræðinga um nánari ástandsskoðun.
Forsendur söluyfirlits:
Söluyfirlit er samið af fasteignasala í samræmi við ákvæði laga nr. 70/2015. Þær upplýsingar sem fram koma í söluyfirliti þessu eru sóttar í opinberar skrár, til seljanda sjálfs og eftir atvikum til húsfélags. Seljandi veitir upplýsingar um eign í samræmi við upplýsingaskyldu laga um fasteignakaup nr. 40/2002. Fasteignasali sannreynir að þær upplýsingar séu réttar með sjónskoðun á eigninni. Fasteignasali getur ekki fullyrt um ástand og eiginleika þeirra hluta fasteigna sem ekki eru aðgengilegir og sjást ekki berum augum, t.d. lagnir, dren, skólp og þak.
Gjöld sem kaupandi þarf að standa straum af vegna kaupanna:
1. Stimpilgjald af kaupsamningi - 0,8%(einstaklingar) 1.6% (lögaðilar) af heildarfasteignamati.
2. Stimpilgjald af veðskuldabréfi - 0% af höfuðstól skuldabréfs.
3. Þinglýsingargjald af kaupsamningi, veðskuldabréfi, mögulegu veðleyfi o.fl. - kr. 2.700 af hverju skjali.
4. Lántökugjald lánastofnunar - almennt 0,5 - 1,0% af höfuðstól skuldabréfs. Nánari upplýsingar á t.d. heimasíðu lánastofnana.
5. Umsýslugjald til fasteignasölu kr.68.200.-m.vsk.
Hraunhamar er elsta fasteignasala Hafnarfjarðar, stofnuð 1983.
Hraunhamar, í fararbroddi í 41 ár. – Hraunhamar.is
Smelltu hér til að fá frítt söluverðmat.
Samkvæmt birtum fm frá HMS er bilið 205,5 fm sem skiptist þannig að gólfflötur er 139,2 fm og skráð milliloft 66,3 fm. Milliloftið hefur verið sett upp að hálfu leyti og er því 33,15 fm þ.a raunstærð er því 172,35 fm en teikningar eru til af öllu milliloftinu og er því lítilli fyrirhöfn hægt að stækka það. Húsnæðið er með allt að 6 metra lofthæð og 2 stórum innkeyrsludyrum þ.e 3,7 m á hæð og 3,5 mf á breidd. Bilið er með 2 inngangshurðum og er önnur á gafli húsins og því er auðvelt hægt að skipta því upp í 2 bil.
Nánari lýsing:
Um er að ræða mjög vandað stálgrindarhús sem kemur frá Hallgruppen í Noregi sem er einn af stærstu framleiðandum af slíkum húsum á Norðurlöndum. Burðarvirki hússins er stál og er húsið klætt með Pir fylltum samlokueiningum. Þak er með stálsperrum með trapiszuplötum og Pir fylltum samlokueiningum. Undirstöður og botnplata eru staðsteypt. Í bilum er gólfhiti með lagnagrindum í hvoru rými fyrir sig.
Stórar og rúmgóðar innkeyrsludyr (3,5m breidd x 3,7m hæð) ásamt rafmagnsmótor frá Héðinn ehf. Gluggar og inngangshurðar eru úr áli. Milliveggir eru stálvirki, aflokað með samlokueiningum fyllltar með steinullareininagrun. Búið er að setja snyrtingu í við gafl innst í bilinu og þar möguleiki á að gera sturtu. Búið er að leggja vatn að annarri innkeyrsluhurðinni. Innandyra er LED lýsing og þriggja fasa rafmagn auk útiljósa. Sameiginlegt tæknrými er við enda húss næst götu og þar einnig sameiginlegt wc.
Eignin er með virðisaukaskattskvöð. Gert er ráðfyrir að kaupandi sé með vsk nr. til að yfirtaka kvöðina.
Allar nánari upplýsingar veitir Hlynur Halldórsson löggiltur fasteignasali á netfangið hlynur@hraunhamar.is eða s. 698-2603
Um skoðunar- og aðgæsluskyldu:
Í lögum um fasteignakaup nr. 40/2002 er kveðið á um ríka skoðunarskyldu kaupenda á fasteignum. Hraunhamar fasteignasala bendir væntanlegum kaupendum á að kynna sér vel ástand fasteigna við skoðun og fyrir tilboðsgerð og ef þurfa þykir að leita til sérfræðinga um nánari ástandsskoðun.
Forsendur söluyfirlits:
Söluyfirlit er samið af fasteignasala í samræmi við ákvæði laga nr. 70/2015. Þær upplýsingar sem fram koma í söluyfirliti þessu eru sóttar í opinberar skrár, til seljanda sjálfs og eftir atvikum til húsfélags. Seljandi veitir upplýsingar um eign í samræmi við upplýsingaskyldu laga um fasteignakaup nr. 40/2002. Fasteignasali sannreynir að þær upplýsingar séu réttar með sjónskoðun á eigninni. Fasteignasali getur ekki fullyrt um ástand og eiginleika þeirra hluta fasteigna sem ekki eru aðgengilegir og sjást ekki berum augum, t.d. lagnir, dren, skólp og þak.
Gjöld sem kaupandi þarf að standa straum af vegna kaupanna:
1. Stimpilgjald af kaupsamningi - 0,8%(einstaklingar) 1.6% (lögaðilar) af heildarfasteignamati.
2. Stimpilgjald af veðskuldabréfi - 0% af höfuðstól skuldabréfs.
3. Þinglýsingargjald af kaupsamningi, veðskuldabréfi, mögulegu veðleyfi o.fl. - kr. 2.700 af hverju skjali.
4. Lántökugjald lánastofnunar - almennt 0,5 - 1,0% af höfuðstól skuldabréfs. Nánari upplýsingar á t.d. heimasíðu lánastofnana.
5. Umsýslugjald til fasteignasölu kr.68.200.-m.vsk.
Hraunhamar er elsta fasteignasala Hafnarfjarðar, stofnuð 1983.
Hraunhamar, í fararbroddi í 41 ár. – Hraunhamar.is
Smelltu hér til að fá frítt söluverðmat.
Ár
Fasteignamat
Kaupverð
Stærð
Fermetraverð
20. des. 2022
43.600.000 kr.
47.000.000 kr.
205.5 m²
228.710 kr.
28. jan. 2022
31.550.000 kr.
46.000.000 kr.
205.5 m²
223.844 kr.
11. nóv. 2021
29.950.000 kr.
42.000.000 kr.
205.5 m²
204.380 kr.
Byggt á upplýsingum úr Þjóðskrá Íslands frá 2006-2026