Löggiltir fasteignasalar innan Félags fasteignasala:
Hannes Steindórsson
Bogi Molby Pétursson
Guðrún Antonsdóttir
Heimir Hallgrímsson
Hrafnkell P. H. Pálmason
Viðar Marinósson
Elías Haraldsson
Kristján Þórir Hauksson
Albert Bjarni Úlfarsson
Ragnar Þorsteinsson
Þórey Ólafsdóttir
Andri Freyr Halldórsson
Upplýsingar
Verðsaga
Byggt 2016
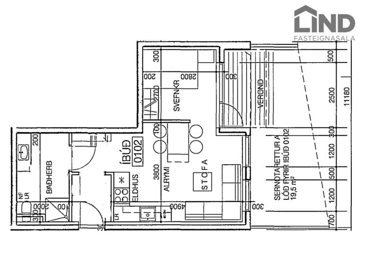
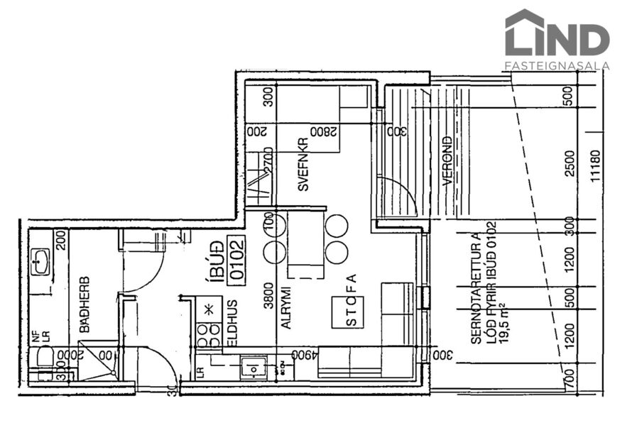
51,2 m²
2 herb.
1 baðherb.
1 svefnh.
Sameiginl. inngangur
Lýsing
LIND fasteignasala og Þórey Ólafsdóttir, löggiltur fasteignasali, kynna í einkasölu rúmgóða 2ja herbergja íbúð með sérinngang og 19,5 fm sérafnotarétti eða timburpalli til suðurs í nýlegu lyftuhúsi við Lindargötu í Reykjavík þar sem stutt er í alla helstu þjónustu.
Birt stærð eignar er 51.2 fm samkvæmt Þjóðskrá Íslands, þar af er 6 fm geymsla.
Eignin skiptist í forrými, bjart alrými með eldhúsi og stofu, svefnherbergi og baðherbergi en henni fylgir geymsla í kjallara og hlutdeild í sameign, sameiginlegu þvottahúsi og þurrkherbergi, hjóla- og vagnageymslu.
SMELLTU HÉR TIL AÐ FÁ SENT SÖLUYFIRLIT en annars veiti ég allar frekari upplýsingar í síma 663 2300 eða [email protected]
Nánari lýsing:
Forstofa með fatahengi, flísar á gólfi.
Eldhús með ljósri innréttingu og innbyggðum tækjum sem fylgja, kæliskáp og uppþvottavél.
Stofa, rúmgóð og björt, útgengt á 19,5 fm sérafnotarétt með timurpalli til suðurs.
Svefnherbergi með fataskáp.
Baðherbergi flísalagt í hólf og gólf með upphengdu salerni, innréttingu og walk-in sturtu.
Geymsla (6 fm), sameiginlegt þvottahús, hjóla- og vagnageymsla í kjallara.
Gólfefni íbúðar er harðpaket og flísar á votrýmum, forstofu og baðherbergi. Innréttingar sérsmíðaðar frá GKS og innihurðar hvítar yfirfelldar.
Húsgjöld íbúðar eru 20.103 kr á mánuði en þá er allur almennur rekstur innifalinn sem og allur hiti, rafmagn í sameign, þrif sameignar, húseigendatrygging og framkvæmdasjóður.
Nánari upplýsingar veitir Þórey Ólafsdóttir, löggiltur fasteignasali / B.Sc. í viðskiptafræði í síma 663 2300 eða gegnum [email protected]
Á heimasíðunni minni www.thorey.is má skoða umsagnir ánægðra viðskiptavina og kynna sér þjónustuna mína.
Allir kaupendur okkar fá Vildarkort Lindar. Með því að framvísa kortinu færð þú 30% afslátt hjá samstarfsaðilum: Húsgagnahöllin, S. Helgason, Flugger litir, Húsasmiðjan, Z brautir og gluggatjöld, Vídd, Parki, Betra bak, Dorma og Sýn.
Birt stærð eignar er 51.2 fm samkvæmt Þjóðskrá Íslands, þar af er 6 fm geymsla.
Eignin skiptist í forrými, bjart alrými með eldhúsi og stofu, svefnherbergi og baðherbergi en henni fylgir geymsla í kjallara og hlutdeild í sameign, sameiginlegu þvottahúsi og þurrkherbergi, hjóla- og vagnageymslu.
SMELLTU HÉR TIL AÐ FÁ SENT SÖLUYFIRLIT en annars veiti ég allar frekari upplýsingar í síma 663 2300 eða [email protected]
Nánari lýsing:
Forstofa með fatahengi, flísar á gólfi.
Eldhús með ljósri innréttingu og innbyggðum tækjum sem fylgja, kæliskáp og uppþvottavél.
Stofa, rúmgóð og björt, útgengt á 19,5 fm sérafnotarétt með timurpalli til suðurs.
Svefnherbergi með fataskáp.
Baðherbergi flísalagt í hólf og gólf með upphengdu salerni, innréttingu og walk-in sturtu.
Geymsla (6 fm), sameiginlegt þvottahús, hjóla- og vagnageymsla í kjallara.
Gólfefni íbúðar er harðpaket og flísar á votrýmum, forstofu og baðherbergi. Innréttingar sérsmíðaðar frá GKS og innihurðar hvítar yfirfelldar.
Húsgjöld íbúðar eru 20.103 kr á mánuði en þá er allur almennur rekstur innifalinn sem og allur hiti, rafmagn í sameign, þrif sameignar, húseigendatrygging og framkvæmdasjóður.
Nánari upplýsingar veitir Þórey Ólafsdóttir, löggiltur fasteignasali / B.Sc. í viðskiptafræði í síma 663 2300 eða gegnum [email protected]
Á heimasíðunni minni www.thorey.is má skoða umsagnir ánægðra viðskiptavina og kynna sér þjónustuna mína.
Allir kaupendur okkar fá Vildarkort Lindar. Með því að framvísa kortinu færð þú 30% afslátt hjá samstarfsaðilum: Húsgagnahöllin, S. Helgason, Flugger litir, Húsasmiðjan, Z brautir og gluggatjöld, Vídd, Parki, Betra bak, Dorma og Sýn.
Ár
Fasteignamat
Kaupverð
Stærð
Fermetraverð
28. sep. 2020
34.850.000 kr.
37.000.000 kr.
51.2 m²
722.656 kr.
7. jan. 2016
3.390.000 kr.
31.150.000 kr.
51.2 m²
608.398 kr.
Byggt á upplýsingum úr Þjóðskrá Íslands frá 2006-2026