Upplýsingar
Byggt 1979
231,8 m²
7 herb.
2 baðherb.
6 svefnh.
Þvottahús
Bílskúr
Útsýni
Lýsing
Fasteignasalan Hvammur s. 466 1600
Arnarsíða 10b - Vel skipulögð 7 herbergja raðhúsaíbúð á tveimur hæðum og með innbyggðum bílskúr á vinsælum stað í Síðuhverfi - stærð 231,8 m², þar af er bílskúr skráður 47,1 m²
Eignin skiptist með eftirtöldum hætti,
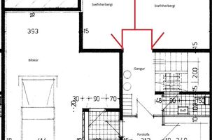
Neðri hæð: Forstofa, þvottahús, baðherbergi, þrjú svefnherbergi og bílskúr.
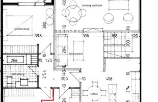
Efri hæð: Sjónvarpshol, stofa og borðstofa, eldhús, gangur, baðherbergi og þrjú svefnherbergi.
Forstofa er með terrazzo gólfefni og endurnýjaðri útidyrahurð. Úr forstofu er gengið inn á gang með parketi á gólfi og þaðan er parketlagður stigi upp á efri hæðina.
Eldhús, snyrtilega hvít og beyki innrétting með flísum á milli skápa. Mjög gott skápa- og bekkjarpláss og borðkrókur með útsýnisglugga til austurs. Á gólfi er microsement.
Stofa, borðstofa og sjónvarpshol er í opnu rými þar sem loft eru tekin upp og stórir gluggar til vesturs. Þrep eru á milli sjónvarphols og stofu og borðstofu. Úr borðstofunni eru hurð út á steypta verönd.
Baðherbergin eru tvö, eitt á hvorri hæð. Aðal baðherbergið er á efri hæðinni og þar eru flísar á gólfi og veggjum, sprautulökkuð innrétting, baðkar, sturta, upphengt wc, innfelld lýsing í lofti og gólfhiti. Baðherbergi á neðri hæð er með flísum á gólfi og hluta veggja, handlaug, upphengdu wc, handklæðaofni og sturtu sem útbúin var undir stiga og er með epoxy í gólfi.
Svefnherbergin eru sex, þrjú á neðri hæðinni, tvö ágætlega rúmgóð með parketi á gólfi og eitt minna. Herbergin á efri hæðinni eru með parketi á gólfi og fataskápum. Hjónaherbergi er skv. teikningum um 15 m² að stærð, með sérsmíðuðum spónlögðum eikar fataskápum og hurð út á verönd.
Þvottahús er við hliðina á forstofunni og nýtist það sem annar inngangur fyrir eignina. Þar er terrazzo gólfefni og nýleg hvít innrétting með skolvask og stæði fyrir þvottavél og þurrkara í vinnuhæð. Endurnýjuð útidyrahurð með wifi og takklás. Gengið er í gegnum þvottahúsið þegar farið er inn í bílskúr.
Bílskúr er skráður 47,1 m² að stærð og með epoxy efni á gólfi. Nýleg rafdrifin innkeyrsluhurð. Fyrir framan er hellulagt bílaplan.
Annað
- Á baklóðinni er tvískipt verönd, steypt og timbur. Hitalagnir eru í steyptahlutanum og innfelld lýsing í yfirbyggðu þakskyggni.
- Nýtt járn var sett á þakið árið 2022.
- Húsið var málað að utan sumarið 2022
- Hitaþræðir eru í þakrennum.
- Útidyrahurðar og bílskúrshurð hefur verið endurnýjað.
- Búið er að leggja fyrir og setja upp bílhleðslustöð.
- Á norðvesturhorni lóðar er sameiginlegur geymsluskúr fyrir húsið og sameiginleg garðverkfæri.
Um skoðunar- og aðgæsluskyldu:
Í lögum um fasteignakaup nr. 40/2002 er kveðið á um ríka skoðunarskyldu kaupenda á fasteignum. Fasteignasalan Hvammur skorar því á væntanlega kaupendur að kynna sér vel ástand fasteigna fyrir kauptilboðsgerð og leita til þar til bærra sérfræðinga um nánari skoðun ef með þarf.
Forsendur söluyfirlits:
Söluyfirlit er samið af fasteignasala í samræmi við ákvæði laga nr. 70/2015. Þær upplýsingar sem fram koma í söluyfirliti þessu eru sóttar í opinberar skrár, til seljanda sjálfs og eftir atvikum til húsfélags. Seljandi veitir upplýsingar um eign í samræmi við upplýsingaskyldu laga um fasteignakaup nr. 40/2002. Fasteignasali sannreynir að þær upplýsingar séu réttar með sjónskoðun á eigninni. Fasteignasali getur ekki fullyrt um ástand og eiginleika þeirra hluta fasteigna sem ekki eru aðgengilegir og sjást ekki berum augum, t.d. lagnir, dren, skólp og þak.
Arnarsíða 10b - Vel skipulögð 7 herbergja raðhúsaíbúð á tveimur hæðum og með innbyggðum bílskúr á vinsælum stað í Síðuhverfi - stærð 231,8 m², þar af er bílskúr skráður 47,1 m²
Eignin skiptist með eftirtöldum hætti,
Neðri hæð: Forstofa, þvottahús, baðherbergi, þrjú svefnherbergi og bílskúr.
Efri hæð: Sjónvarpshol, stofa og borðstofa, eldhús, gangur, baðherbergi og þrjú svefnherbergi.
Forstofa er með terrazzo gólfefni og endurnýjaðri útidyrahurð. Úr forstofu er gengið inn á gang með parketi á gólfi og þaðan er parketlagður stigi upp á efri hæðina.
Eldhús, snyrtilega hvít og beyki innrétting með flísum á milli skápa. Mjög gott skápa- og bekkjarpláss og borðkrókur með útsýnisglugga til austurs. Á gólfi er microsement.
Stofa, borðstofa og sjónvarpshol er í opnu rými þar sem loft eru tekin upp og stórir gluggar til vesturs. Þrep eru á milli sjónvarphols og stofu og borðstofu. Úr borðstofunni eru hurð út á steypta verönd.
Baðherbergin eru tvö, eitt á hvorri hæð. Aðal baðherbergið er á efri hæðinni og þar eru flísar á gólfi og veggjum, sprautulökkuð innrétting, baðkar, sturta, upphengt wc, innfelld lýsing í lofti og gólfhiti. Baðherbergi á neðri hæð er með flísum á gólfi og hluta veggja, handlaug, upphengdu wc, handklæðaofni og sturtu sem útbúin var undir stiga og er með epoxy í gólfi.
Svefnherbergin eru sex, þrjú á neðri hæðinni, tvö ágætlega rúmgóð með parketi á gólfi og eitt minna. Herbergin á efri hæðinni eru með parketi á gólfi og fataskápum. Hjónaherbergi er skv. teikningum um 15 m² að stærð, með sérsmíðuðum spónlögðum eikar fataskápum og hurð út á verönd.
Þvottahús er við hliðina á forstofunni og nýtist það sem annar inngangur fyrir eignina. Þar er terrazzo gólfefni og nýleg hvít innrétting með skolvask og stæði fyrir þvottavél og þurrkara í vinnuhæð. Endurnýjuð útidyrahurð með wifi og takklás. Gengið er í gegnum þvottahúsið þegar farið er inn í bílskúr.
Bílskúr er skráður 47,1 m² að stærð og með epoxy efni á gólfi. Nýleg rafdrifin innkeyrsluhurð. Fyrir framan er hellulagt bílaplan.
Annað
- Á baklóðinni er tvískipt verönd, steypt og timbur. Hitalagnir eru í steyptahlutanum og innfelld lýsing í yfirbyggðu þakskyggni.
- Nýtt járn var sett á þakið árið 2022.
- Húsið var málað að utan sumarið 2022
- Hitaþræðir eru í þakrennum.
- Útidyrahurðar og bílskúrshurð hefur verið endurnýjað.
- Búið er að leggja fyrir og setja upp bílhleðslustöð.
- Á norðvesturhorni lóðar er sameiginlegur geymsluskúr fyrir húsið og sameiginleg garðverkfæri.
Um skoðunar- og aðgæsluskyldu:
Í lögum um fasteignakaup nr. 40/2002 er kveðið á um ríka skoðunarskyldu kaupenda á fasteignum. Fasteignasalan Hvammur skorar því á væntanlega kaupendur að kynna sér vel ástand fasteigna fyrir kauptilboðsgerð og leita til þar til bærra sérfræðinga um nánari skoðun ef með þarf.
Forsendur söluyfirlits:
Söluyfirlit er samið af fasteignasala í samræmi við ákvæði laga nr. 70/2015. Þær upplýsingar sem fram koma í söluyfirliti þessu eru sóttar í opinberar skrár, til seljanda sjálfs og eftir atvikum til húsfélags. Seljandi veitir upplýsingar um eign í samræmi við upplýsingaskyldu laga um fasteignakaup nr. 40/2002. Fasteignasali sannreynir að þær upplýsingar séu réttar með sjónskoðun á eigninni. Fasteignasali getur ekki fullyrt um ástand og eiginleika þeirra hluta fasteigna sem ekki eru aðgengilegir og sjást ekki berum augum, t.d. lagnir, dren, skólp og þak.