Löggiltir fasteignasalar innan Félags fasteignasala:
Knútur Bjarnason
Rúnar Þór Árnason
Gunnar Sv. Friðriksson
Hólmar Björn Sigþórsson
Linda Björk Ingvadóttir
Kristján Þór Sveinsson
María Steinunn Jóhannesdóttir
Ragnheiður Árnadóttir
Vista
fjölbýlishús

Austurbrú 12

600 Akureyri

96.400.000 kr.

933.204 þ.kr./m2
Fasteignanúmer

F2531317

Fasteignamat

74.350.000 kr.

Brunabótamat

71.460.000 kr.

Áhvílandi

0 kr.

Arion banki – Reikna lán
Upplýsingar
svg
Byggt 2024
svg
103,3 m²
svg
3 herb.
svg
1 baðherb.
svg
2 svefnh.
svg
Sameiginl. inngangur
svg
Bílastæði
svg
Lyfta
Opið hús: 20. febrúar 2026 kl. 17:00 til 17:45

Sýnum Austurbrú 10 - 18 - föstudaginn 20. febrúar á milli kl. 17 og 17:45. Verðum með aðstöðu og tökum á móti gestum í Austurbrú 14 - í íbúð nr. 107.

Lýsing

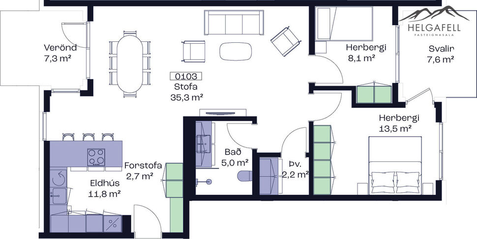
Helgafell fasteignasala kynnir til sölu - þriggja herbergja íbúð merkt 0103 í nýbyggingu ásamt stæði í lokaðri bílageymslu við Austurbrú 12, Akureyri.

Arkitektar: THG arkitektar
Verktaki: JE Skjanni ehf.


Vefsíða verkefnisins við Pollinn á Akureyri

Íbúðin er samtals 103,3fm., þar af er geymsla 11,5fm.

Íbúðin:
Komið er inn í opið anddyri með skáp.  Opið eldhús, eldhúseyja með kvarts stein og span helluborði.  Skúffur og skápar í eldhúsinu eru allar með ljúflokum.  Eldhúsinnrétting með kvarts stein, bakaraofn í vinnuhæð, innfelldur vaskur.  Allar skúffur og skápar með ljúflokum.  Innfelld lýsing frá Lumex.
Fyrir framan eldhúseyjuna er stofa/borðstofa, útgengt út á verönd til suðurs.
Hjónaherbergi með góðum tvöföldum skáp.  Útgengt á skjólgóðar svalir til norðurs.
Barnaherbergi með skáp.
Baðherbergi er flísalagt í hólf og gólf.  Sturta með glerskili.  Falleg innrétting frá Parka, kvarts steinn á borðplötu.  Upphengt salerni.
Þvottahús er flísalagt, skápur fyrir þvottavél og þurrkara, borðplata úr kvarts stein.
Stæði í lokaðri bílageymslu fylgir íbúðnni.

Allar innréttingar, innihurðir, skápar og Electrolux eldhústæki eru frá Parka.  Blöndunartæki eru frá Tengi.
Þessari íbúð er skilað fullbúinni með gólfefnum.

Sameign er með glæsilegra móti.
Komið er inn í rúmgott anddyri.  Stórar ljósakrónur og lýsing frá Lumex gefa fallega birtu.  
Hljóðplötur í lofti, þannig að hlóðvist verður með besta móti.
Flísar á gólfi frá kjallara og upp á pall fyrstu hæðar.  Frá fyrstu hæð eru stigagangarnir teppalagðir.  
Innangengt úr hverjum stigagangi niður í lokaða bílageymslu.

Eigninni er skilað skv. skilalýsingu verktaka.

Athugið:
  • Á byggingareitnum er verið að reisa nýtt hótel, Skáld hótel, Curio Collection by Hilton sem á að opna 2026.
  • Innangengt verður um bílageymslu beint inn á hótelið, sem einungis hótelgestir og íbúðareigendur nota.
  • Sú nýbreytni mun verða að íbúarnir á reitnum við Austurbrú 10-18 munu geta nýtt sér þjónustu Skáld Hótels á sérkjörum, sjá hér.

Kaupandi greiðir skipulagsgjald 0,3% af brunabótamati þegar það leggst á eignina.

Fyrir nánari upplýsingar hafið samband við:

Sölumenn Helgafells fasteignasölu í síma 566-0000

----------------------------------------------------------
Heimasíða Helgafells fasteignasölu
Facebook síða Helgafells

- Hafðu samband og við gerum söluverðmat á eign þinni, þér að kostnaðarlausu -

Gjöld sem kaupandi þarf að standa straum af vegna kaupa á fasteign:

1. Stimpilgjald af kaupsamningi - 0,8% af fasteignamati fyrir einstaklinga (0,4% fyrir fyrstu kaupendur) og 1,6% fyrir lögaðila.
2. Þinglýsingargjald af kaupsamningi, veðskuldabréfi, mögulegu veðleyfi o.fl. - 3.800 kr. af hverju skjali.
3. Lántökugjald lánastofnunar - almennt í kringum 50þ., oft lægra eða ekkert lántökugjald fyrir fyrstu kaup. Nánari upplýsingar á heimasíðum lánastofnana.
4. Þjónustusamningur milli kaupanda og fasteignasölu - Kr.  92.380,- m/vsk.

Helgafell fasteignasala bendir kaupendum á ríka skoðunarskyldu sem kveðið er á í lögum um fasteignakaup nr.40/2002. Skorað er á kaupendur að kynna sér vandlega ástand fasteigna og nýta til þess aðstoð sérfræðinga.  Sömuleiðis er bent á upplýsingaskyldu seljanda samanber 26.gr. Laga nr.40/2002 um fasteignakaup og 25.gr. laga nr.26/1994 um fjöleignarhús. Seljanda er bent á að kynna sér tilvitnaðar lagagreinar.

img
Rúnar Þór Árnason
Lögg.fasteignasali innan félags fasteignasala
Helgafell fasteignasala ehf.
Stórhöfði 33, 2. hæð, 110 Reykjavík
Helgafell fasteignasala ehf.

Helgafell fasteignasala ehf.

Stórhöfði 33, 2. hæð, 110 Reykjavík
img

Rúnar Þór Árnason

Stórhöfði 33, 2. hæð, 110 Reykjavík
Helgafell fasteignasala ehf.

Helgafell fasteignasala ehf.

Stórhöfði 33, 2. hæð, 110 Reykjavík

Rúnar Þór Árnason

Stórhöfði 33, 2. hæð, 110 Reykjavík