Upplýsingar
Verðsaga
Byggt 2019
101,8 m²
4 herb.
2 baðherb.
3 svefnh.
Þvottahús
Útsýni
Sérinngangur
Lýsing
Kasa fasteignir 461-2010.
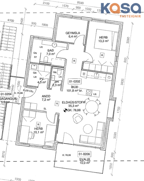
Halldóruhagi 8-202. Glæsileg 101,8 fm 3-4 herbergja íbúð á efri hæð í fjórbýlishúsi við Halldóruhaga 8.
Íbúðin skiptist í forstofu, stofu og borðstofu, eldhús, baðherbergi, 2 svefnherbergi, geymslu/herbergi, snyrtingu og þvottahús.
Forstofa er rúmgóð með flísum á gólfi, mjög góðu skápaplássi og handklæðaofni.
Eldhús og stofa er í opnu og björtu rými með parket á gólfi. Eldhúsinnrétting er glæsileg með innbyggðum ísskáp og uppþvottavél og bakaraofn í vinnuhæð. Eyja er með helluborði og háfur er yfir eyju. Úr stofu er gengið út á um 10 fm svalir með glerhandriði og þaðan er fallegt útsýni.
Hjónaherbergi er rúmgott, þar er parket á gólfi og mjög gott skápapláss. Útsýni úr báðum herbergjum er fallegt til norðurs.
Barnaherbergi er inn af forstofu, þar er parket á gólfum og góður fataskápur.
Eitt lítið herbergi við enda gangsins, þar er parket á gólfi. Herbergið er skráð sem geymsla en er notað sem barnaherbergi í dag.
Gangur er með parket á gólfi.
Baðherbergi er glæsilegt með flísum á gólfi og hluta veggja. Góð innrétting í kringum vask með speglaskápum fyrir ofan, upphengt salerni, sturta með glerskilrúmi og falleg innfelld lýsing í lofti.
Snyrting og þvottahús er við forstofu en flísar eru á báðum rýmum. Góð innrétting í kringum þvottavél og þurrkara er í þvottahúsi og þar er einnig vaskur.
- Upptekin loft í alrými og víðar
- Gólfhiti í allri íbúðinni
- Ljósleiðari
- Sérmerkt bílastæði fylgir hverri íbúð með rafmagnstengli tengdum rafmagnsmæli viðkomandi íbúðar.
Nánari upplýsingar í síma 461-2010 eða [email protected]
------------
Skoðunarskylda:
Í lögum um fasteignakaup nr. 40/2002 er kveðið á um ríka skoðunarskyldu kaupenda á fasteignum. Kasa fasteignir benda væntanlegum kaupendum á að kynna sér vel ástand fasteigna fyrir kauptilboðsgerð og leita til þar til bærra sérfræðinga um nánari skoðun ef þurfa þykir.
Forsendur söluyfirlits:
Söluyfirlit er samið af fasteignasala í samræmi við ákvæði laga nr. 70/2015. Þær upplýsingar sem fram koma í söluyfirliti þessu eru sóttar í opinberar skrár, til seljanda sjálfs og eftir atvikum til húsfélags. Seljandi veitir upplýsingar um eign í samræmi við upplýsingaskyldu laga um fasteignakaup nr. 40/2002. Fasteignasali sannreynir að þær upplýsingar séu réttar með sjónskoðun á eigninni. Fasteignasali getur ekki fullyrt um ástand og eiginleika þeirra hluta fasteigna sem ekki eru aðgengilegir og sjást ekki berum augum, t.d. lagnir, dren, skólp og þak.
Gjöld sem kaupandi þarf að standa straum af vegna kaupanna:
1. Stimpilgjald sýslumanns af kaupsamningi, fyrstu kaup (0,4%), almenn kaup (0,8%), lögaðilar (1,6%) af heildarfasteignamati eignar.
2. Þinglýsingargjald af kaupsamningi, veðskuldabréfi, mögulegu veðleyfi o.fl. - kr. 2.700 af hverju skjali.
3. Lántökugjald lánastofnunar er skv. verðskrá viðkomandi lánastofnunar. Nánari upplýsingar á t.d. heimasíðu lánastofnana.
4. Umsýslugjald til fasteignasölu skv. kauptilboði.
Halldóruhagi 8-202. Glæsileg 101,8 fm 3-4 herbergja íbúð á efri hæð í fjórbýlishúsi við Halldóruhaga 8.
Íbúðin skiptist í forstofu, stofu og borðstofu, eldhús, baðherbergi, 2 svefnherbergi, geymslu/herbergi, snyrtingu og þvottahús.
Forstofa er rúmgóð með flísum á gólfi, mjög góðu skápaplássi og handklæðaofni.
Eldhús og stofa er í opnu og björtu rými með parket á gólfi. Eldhúsinnrétting er glæsileg með innbyggðum ísskáp og uppþvottavél og bakaraofn í vinnuhæð. Eyja er með helluborði og háfur er yfir eyju. Úr stofu er gengið út á um 10 fm svalir með glerhandriði og þaðan er fallegt útsýni.
Hjónaherbergi er rúmgott, þar er parket á gólfi og mjög gott skápapláss. Útsýni úr báðum herbergjum er fallegt til norðurs.
Barnaherbergi er inn af forstofu, þar er parket á gólfum og góður fataskápur.
Eitt lítið herbergi við enda gangsins, þar er parket á gólfi. Herbergið er skráð sem geymsla en er notað sem barnaherbergi í dag.
Gangur er með parket á gólfi.
Baðherbergi er glæsilegt með flísum á gólfi og hluta veggja. Góð innrétting í kringum vask með speglaskápum fyrir ofan, upphengt salerni, sturta með glerskilrúmi og falleg innfelld lýsing í lofti.
Snyrting og þvottahús er við forstofu en flísar eru á báðum rýmum. Góð innrétting í kringum þvottavél og þurrkara er í þvottahúsi og þar er einnig vaskur.
- Upptekin loft í alrými og víðar
- Gólfhiti í allri íbúðinni
- Ljósleiðari
- Sérmerkt bílastæði fylgir hverri íbúð með rafmagnstengli tengdum rafmagnsmæli viðkomandi íbúðar.
Nánari upplýsingar í síma 461-2010 eða [email protected]
------------
Skoðunarskylda:
Í lögum um fasteignakaup nr. 40/2002 er kveðið á um ríka skoðunarskyldu kaupenda á fasteignum. Kasa fasteignir benda væntanlegum kaupendum á að kynna sér vel ástand fasteigna fyrir kauptilboðsgerð og leita til þar til bærra sérfræðinga um nánari skoðun ef þurfa þykir.
Forsendur söluyfirlits:
Söluyfirlit er samið af fasteignasala í samræmi við ákvæði laga nr. 70/2015. Þær upplýsingar sem fram koma í söluyfirliti þessu eru sóttar í opinberar skrár, til seljanda sjálfs og eftir atvikum til húsfélags. Seljandi veitir upplýsingar um eign í samræmi við upplýsingaskyldu laga um fasteignakaup nr. 40/2002. Fasteignasali sannreynir að þær upplýsingar séu réttar með sjónskoðun á eigninni. Fasteignasali getur ekki fullyrt um ástand og eiginleika þeirra hluta fasteigna sem ekki eru aðgengilegir og sjást ekki berum augum, t.d. lagnir, dren, skólp og þak.
Gjöld sem kaupandi þarf að standa straum af vegna kaupanna:
1. Stimpilgjald sýslumanns af kaupsamningi, fyrstu kaup (0,4%), almenn kaup (0,8%), lögaðilar (1,6%) af heildarfasteignamati eignar.
2. Þinglýsingargjald af kaupsamningi, veðskuldabréfi, mögulegu veðleyfi o.fl. - kr. 2.700 af hverju skjali.
3. Lántökugjald lánastofnunar er skv. verðskrá viðkomandi lánastofnunar. Nánari upplýsingar á t.d. heimasíðu lánastofnana.
4. Umsýslugjald til fasteignasölu skv. kauptilboði.
Ár
Fasteignamat
Kaupverð
Stærð
Fermetraverð
3. feb. 2020
19.200.000 kr.
47.800.000 kr.
101.8 m²
469.548 kr.
Byggt á upplýsingum úr Þjóðskrá Íslands frá 2006-2026