Upplýsingar
189,1 m²
5 herb.
2 baðherb.
4 svefnh.
Þvottahús
Sérinngangur
Bílastæði
Lýsing
Sigríður Rut, lgfs. í gsm 699-4610 og Fasteignasalan TORG kynna: Sala er hafin á stórglæsilegu tengihúsi við Fossvogsveg 8-36 í Reykjavík. Húsið er staðsett í Fossvognum nánar tiltekið fyrir neðan Borgarspítalann á einstaklega veðursælum og fallegum stað.
Húsið er 3ja hæða. Fjórar sérhæðir eru á efstu hæðinni með stórum þaksvölum og sérlyftum. Ellefu tveggja hæða íbúðir (hálfgerð raðhús) eru á miðhæð og jarðhæð. Bílageymsla er einnig á jarðhæð en innangegnt er í íbúðirnar frá bílageymslu (alla nema eina íbúð). Samtals eru fimmtán íbúðir í húsinu. Öllum íbúðum fylgja stæði í bílageymslu en einnig eru sameiginleg bílastæði á lóð. Íbúðirnar verða búnar vönduðum innréttingum frá Brúnás og eldhústækjum frá Ormsson. Borðplötur verða úr Virgo Quartz steini frá S.Helgasyni. Á baðherbergjum eru gólf flísalögð og veggir flísalagðir upp í loft. Þau verða búin vönduðum hreinlætistækjum, hitastýrðum blöndunartækjum, upphengdum salernum og sturtum með glerhlið. Innréttingar og innihurðir eru vandaðar, sjá nánar í skilalýsingu. Efri hæðirnar eru með stórum þaksvölum en hinar íbúðirnar með góðum svölum á miðhæðinni og timburverönd á jarðhæðinni.
Sameign verður frágengin utan sem innan. Gangstéttar við húsið verða með snjóbræðslukerfi skv teikningum.
Áætlað er að íbúðir við Fossvogsveg verði afhentar í febrúar 2026.
Traustur byggingaraðili Byggingarfélag Gylfa og Gunnars hf. Sjá nánar inná vefnum Heimasíða allar upplýsingar.
Allar nánari upplýsingar veitir Sigríður Rut lgfs. í gsm. 699-4610 eða [email protected] og Helgi lgfs. í gsm 780-2700 eða [email protected]
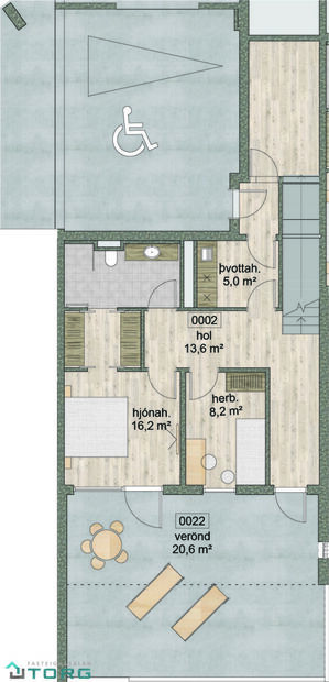
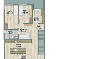
Fossvogsvegur 32 (íbúð 102) Glæsileg og vel skipulögð 5 herbergja íbúð á tveimur hæðum með sérinngangi í fallegu nýju álklæddu húsi.
Birt stærð er 189,1 fm. Stæði íbílageymslu merkt B-02. Íbúðinni fylgir bæði svali og verönd
Íbúðin er öll hin glæsilegasta með fallegum innréttingum frá Brúnás. Borðplötur verða úr Virgo Quartz steini frá S.Helgasyni. Vönduð AEG eldhústæki þ.m.t. innbygður frystiskápur, innbyggður kæliskápur, innbyggð uppþvottavél, vínkælir, bakarofn og örbylgjuofn. Baðherbergi verður flísalagt gólf og veggir. Íbúðin er með gólfhita. Rúmgóðar svalir út frá stofu á efri hæð og góð verönd útfrá neðri hæð. Eignin skiptist í eldhús, stofu, borðstofu, hjónaherbergi með fatarými, 3 svefnherbergi, sjónvarpsherbergi, 2 baðherbergi, þvottahús,forstofu og geymslu með sér bílastæði
Allar nánari upplýsingar veitir Sigríður Rut lgfs. í gsm. 699-4610 eða [email protected] og Helgi lgfs. í gsm 780-2700 eða [email protected]
Áætlað er að íbúðirnar verði afhentar í febrúar 2026.
Kostnaður kaupanda:
1. Stimpilgjald af kaupsamningi er 0,8% af heildarfasteignamati, 1,6% fyrir lögaðila, en 0,4% við fyrstu kaup einstaklinga.
2. Þinglýsingargjald er 2700,- kr af hverju skjali.
3. Lántökugjald skv. verðskrá fjármálastofnunar.
4. Umsýsluþóknun skv. gjaldskrá fasteignasölu.
5. Kaupandi greiðir skipulagsgjald, 0,3% af brunabótamati, þegar það verður lagt á
Húsið er 3ja hæða. Fjórar sérhæðir eru á efstu hæðinni með stórum þaksvölum og sérlyftum. Ellefu tveggja hæða íbúðir (hálfgerð raðhús) eru á miðhæð og jarðhæð. Bílageymsla er einnig á jarðhæð en innangegnt er í íbúðirnar frá bílageymslu (alla nema eina íbúð). Samtals eru fimmtán íbúðir í húsinu. Öllum íbúðum fylgja stæði í bílageymslu en einnig eru sameiginleg bílastæði á lóð. Íbúðirnar verða búnar vönduðum innréttingum frá Brúnás og eldhústækjum frá Ormsson. Borðplötur verða úr Virgo Quartz steini frá S.Helgasyni. Á baðherbergjum eru gólf flísalögð og veggir flísalagðir upp í loft. Þau verða búin vönduðum hreinlætistækjum, hitastýrðum blöndunartækjum, upphengdum salernum og sturtum með glerhlið. Innréttingar og innihurðir eru vandaðar, sjá nánar í skilalýsingu. Efri hæðirnar eru með stórum þaksvölum en hinar íbúðirnar með góðum svölum á miðhæðinni og timburverönd á jarðhæðinni.
Sameign verður frágengin utan sem innan. Gangstéttar við húsið verða með snjóbræðslukerfi skv teikningum.
Áætlað er að íbúðir við Fossvogsveg verði afhentar í febrúar 2026.
Traustur byggingaraðili Byggingarfélag Gylfa og Gunnars hf. Sjá nánar inná vefnum Heimasíða allar upplýsingar.
Allar nánari upplýsingar veitir Sigríður Rut lgfs. í gsm. 699-4610 eða [email protected] og Helgi lgfs. í gsm 780-2700 eða [email protected]
Fossvogsvegur 32 (íbúð 102) Glæsileg og vel skipulögð 5 herbergja íbúð á tveimur hæðum með sérinngangi í fallegu nýju álklæddu húsi.
Birt stærð er 189,1 fm. Stæði íbílageymslu merkt B-02. Íbúðinni fylgir bæði svali og verönd
Íbúðin er öll hin glæsilegasta með fallegum innréttingum frá Brúnás. Borðplötur verða úr Virgo Quartz steini frá S.Helgasyni. Vönduð AEG eldhústæki þ.m.t. innbygður frystiskápur, innbyggður kæliskápur, innbyggð uppþvottavél, vínkælir, bakarofn og örbylgjuofn. Baðherbergi verður flísalagt gólf og veggir. Íbúðin er með gólfhita. Rúmgóðar svalir út frá stofu á efri hæð og góð verönd útfrá neðri hæð. Eignin skiptist í eldhús, stofu, borðstofu, hjónaherbergi með fatarými, 3 svefnherbergi, sjónvarpsherbergi, 2 baðherbergi, þvottahús,forstofu og geymslu með sér bílastæði
Allar nánari upplýsingar veitir Sigríður Rut lgfs. í gsm. 699-4610 eða [email protected] og Helgi lgfs. í gsm 780-2700 eða [email protected]
Áætlað er að íbúðirnar verði afhentar í febrúar 2026.
Kostnaður kaupanda:
1. Stimpilgjald af kaupsamningi er 0,8% af heildarfasteignamati, 1,6% fyrir lögaðila, en 0,4% við fyrstu kaup einstaklinga.
2. Þinglýsingargjald er 2700,- kr af hverju skjali.
3. Lántökugjald skv. verðskrá fjármálastofnunar.
4. Umsýsluþóknun skv. gjaldskrá fasteignasölu.
5. Kaupandi greiðir skipulagsgjald, 0,3% af brunabótamati, þegar það verður lagt á