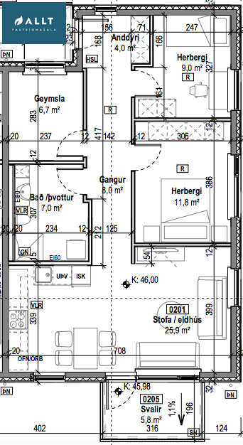
Dísardalur, 260 Reykjanesbær