Löggiltir fasteignasalar innan Félags fasteignasala:
Óskar Rúnar Harðarson
Jason Guðmundsson
Þröstur Þórhallsson
Ólafur Finnbogason
Kjartan Ísak Guðmundsson
Gústaf Adolf Björnsson
Viðar Böðvarsson
Rakel Viðarsdóttir
Ragnheiður Pétursdóttir
Böðvar Þ. Eggertsson
Vista
fjölbýlishús

Buðlabryggja 29-31 207

110 Reykjavík

69.100.000 kr.

863.750 þ.kr./m2
Fasteignanúmer

F2539829

Fasteignamat

6.290.000 kr.

Brunabótamat

0 kr.

Áhvílandi

0 kr.

Arion banki – Reikna lán
Upplýsingar
svg
Byggt 2026
svg
80 m²
svg
3 herb.
svg
1 baðherb.
svg
2 svefnh.
svg
Sameiginl. inngangur
svg
Bílastæði
svg
Lyfta

Lýsing

Miklaborg kynnir:

Nýjar íbúðir í sölu Bryggjuhverfinu í Reykjavík. Um er að ræða hagkvæmar íbúðir á frábæru verði sem falla undir Hlutdeildarlán frá HMS. Á lóðinni eru fjórar byggingar með samtals 103 íbúðum og mörgum íbúðanna fylgir stæði í lokuðum bílakjallara. Húsin ramma inn skjólgóðan inngarð. Íbúðirnar afhendast fullbúnar án megingólfefna að undanskildum votrýmum sem eru flísalögð. Fallegar innréttingar frá Ormsson og vönduð tæki.

Til 1. mars 2026 hafa fyrstu kaupendur og fólk á aldrinum 18-40 ára forgang.

Bókið einkaskoðun hjá sölumönnum Mikluborgar.

NÁNARI LÝSING:

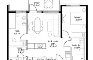
Íbúð 207: Vel skipulögð 3ja herbergja íbúð á 2.hæð ásamt stæði í bílgeymslu. Eignin skiptist í anddyri með skáp. Eldhús er með fallegri innréttingu frá Ormsson og vönduðum tækjum frá AEG. Tengi er fyrir uppþvottavél og gott skápapláss. Eldhús er opið inn í bjarta stofu með útgengt á góðar svalir. Barnaherbergi er með skáp. Rúmgott hjónaherbergi með góðu skápaplássi. Baðherbergið er með sturtu og fallegri innréttingu. Þvottahús með tengi fyrir þvottavél.


Traustur byggingaraðil í áratugi: Dverghamrar ehf.

Skoðið íbúðirnar hér

Markmið verkefnisins er að skapa nýjar og raunhæfar leiðir fyrir ungt fólk og fyrstu kaupendur til að komast inn á fasteignamarkaðinn við betri kjör. Því erum að ræða eignir á sérlega sanngjörnu verði sem kemur ekki niður á gæðum.


BÓKAÐU EINKASKOÐUN HJÁ SÖLUMÖNNUM MIKLUBORGAR:

Steinn Andri Viðarsson löggiltur fasteignasali í síma 775-1477 eða [email protected]


Bára Gunnlaugsdóttir löggiltur fasteignasali í síma 899-8809 eða [email protected]

Friðjón Örn Magnússon löggiltur fasteignasali í síma 692-2704 eða [email protected]

Kristín Pétursdóttir löggiltur fasteignasali í síma 824-1965 eða [email protected]

Sæþór Ólafsson löggiltur fasteignasali í síma 855-5550 eða [email protected]

Miklaborg fasteignasala

Miklaborg fasteignasala

Lágmúli 4, 108 Reykjavík
Miklaborg fasteignasala

Miklaborg fasteignasala

Lágmúli 4, 108 Reykjavík