Upplýsingar
Verðsaga
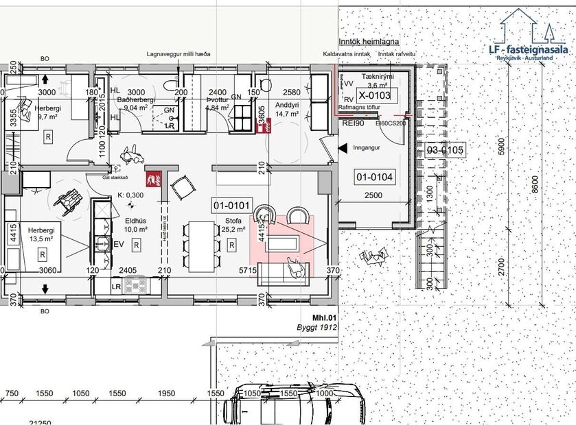
Byggt 1912
104,9 m²
3 herb.
1 baðherb.
2 svefnh.
Sameiginl. inngangur
Lýsing
LF-fasteignasala/Lindin fasteignir s. 893-1319 og Þórdís Pála Reynisdóttir löggiltur fasteignasali [email protected] kynna:
Austurvegur 1, Reyðarfirði. Gamli skóli.
Um er að ræða glæsilega 3ja herbergja íbúð sem er á lokametrum gagngjörra endurbóta.
Íbúðin skiptist í stóra stofu, eldhús, 2 svefnherbergi, baðherbergi, þvottahús og forstofugang.
Möguleiki er á byggingu stórs bílskúrs bakatil á lóðinni.
3 íbúðir eru í húsinu sem stendur á 1.650 m2 leiuglóð í fallegu umhverfi í miðbæ Reyðarfjarðar.
Húsið hefur í gegnum tíðina hýst ýmsa starfsemi, fyrst barnaskólann á Reyðarfirði og er af eldra heimafólki gjarnan kallað gamli skólinn, síðar voru hreppsskrifstofur Reyðarfjarðar í húsinu og Lestrarfélag Reyðarfjarðarhrepps og síðast félagsmiðstöð fyrir unglinga. Húsið hefur nú verið gert upp á fallegan hátt og fengið nýtt hlutverk sem þriggja íbúða hús í hjarta bæjarins.
Húsið hefur að miklu leyti verið endurnýjað að innan. Allar raflagnir, heimtaug, rafmagnstöflur, ljós og tenglar hefur verið endurnýjað. Öll lýsing er dimmanleg og tengd Plejd hússtjórnarkerfi. Innfelld óbein lýsing er meðfram útveggjum í öllum rýmum á norður- og suðurhlið.
Búið er að leggja ljósleiðara inn í húsið.
Ný heimæð fyrir kalt vatn hefur verið lögð inn í húsið, allar vatnslagnir, hreinlætistæki og hitatúbur er nýtt. Rafmagnskynding er í íbúðinni með nýjum ofnum. Frárennslislagnir hafa allar verið endurnýjaðar innanhúss og út í nýjan safnbrunn í lóð. Sameiginlegt inntaks- og tæknirými er staðsett í nýrri viðbyggingu á jarðhæð.
Mikil lofthæð er í íbúðinni eða um 2,8 m.
Inngangur í íbúðina er rúmgóðri forstofu sem jafnframt er inngangur í tæknirými hússins.
Innra skipulag:
Úr forstofu er komið er inn í flísalagt anddyri með góðum fataskápum og er gangur í framhaldi af forstofunni. Við ganginn er flísalagt þvottahús með nýrri innréttingu þar sem gert er ráð fyrir þvottavél og þurrkara í vinnuhæð.
Frá gangi er komið í bjarta og rúmgóða stofu/borðstofu og eldhús við hlið stofunnar. Ný eldhúsinnrétting með nýjum tækjum í eldhúsi. Innbyggð uppþvottavél og innbyggður ísskápur fylgja íbúðinni. Innfelld lýsining í loftum og innfelldur ljósakappi meðfram útvegg.
Stórir og háir gluggar eru í stofu, eldhúsi og herbergi sem er við hlið eldhússins.
Svefnherbergin eru tvö með rúmgóðum fataskápum og harðparketi á gólfum. Í svefnherbergjum er dimmanleg innfelld lýsing og innfelldur ljósakappi meðfram útvegg yfir gluggum. Nettenglar eru í herbergjum og stofu fyrir möguleika á að tengja sjónvarpstæki.
Baðherbergi er að hluta til flísalagt og með sturtu, upphengdu salerni með innbyggðum wc kassa og nýrri baðinnréttingu í dökkum viðarlit. Innfelld dimmanleg lýsing og ljósakappi.
Ytra byrði:
Að utan hafa allir gluggar verið yfirfarnir, allt gler, glerjunarlistar og opnanleg fög endurnýjuð og gluggar málaðir. Þak er yfirfarið og viðgert, nýr þakpappi og ný lektuð lituð þakklæðning. Nýr þakkantur, nýjar þakrennur og niðurföll. Skorsteinar á þaki viðgerðir og klæddir með álklæðningu. Múrkerfi utanhúss er yfirfarið, múrviðgert og húsið heilmálað. Ný viðbygging með standandi viðarklæðningu hefur verið byggð við húsið í stað eldra skyggnis. Í viðbyggingu er inngangur íbúðar á jarðhæð ásamt sameiginlegu tæknirými. Á þaki viðbyggingar eru svalir, sérafnotareitur efri hæðar.
Eldri steyptar stéttar hafa verið fjarlægðar og eru gönguleiðir hellulagðar frá inngöngum íbúða að sorptunnuskýli og bílstæðum.
Lóð er jöfnuð og tyrfð að sunnanverðu en heldur sér óbreytt með sjálfsprottnum gróðri að norðanverðu.
Eldri steinhleðsla og tröppur frá götu að sunnanverðu hefur verið lagað.
Eitt merkt bílastæði fylgir hverri íbúð, ídráttarrör liggur frá tæknirými að hverju stæði fyrir mögulega tengingu á rafhleðslustöð.
Norðan við hús er malarplan með möguleika á viðbótar bílastæðum. Við enda bílastæðis meðfram götu verður sameiginlegt sorptunnuskýli.
Arkþing / Nordic House of Architecture teiknaði breytingar á innra skipulagi.
Einnig fylgja með teikningar frá Arkþing af þremur rúmgóðum, sambyggðum bílskúrum norðanmegin við húsið sem ekki hafa verið lagðar inn til umsagnar byggingarfulltrúa.
Hér er um að ræða einstaka eign í sögulegu húsi á besta stað í bænum með alla helstu þjónustu í göngufæri.
Austurvegur 1, Reyðarfirði. Gamli skóli.
Um er að ræða glæsilega 3ja herbergja íbúð sem er á lokametrum gagngjörra endurbóta.
Íbúðin skiptist í stóra stofu, eldhús, 2 svefnherbergi, baðherbergi, þvottahús og forstofugang.
Möguleiki er á byggingu stórs bílskúrs bakatil á lóðinni.
3 íbúðir eru í húsinu sem stendur á 1.650 m2 leiuglóð í fallegu umhverfi í miðbæ Reyðarfjarðar.
Húsið hefur í gegnum tíðina hýst ýmsa starfsemi, fyrst barnaskólann á Reyðarfirði og er af eldra heimafólki gjarnan kallað gamli skólinn, síðar voru hreppsskrifstofur Reyðarfjarðar í húsinu og Lestrarfélag Reyðarfjarðarhrepps og síðast félagsmiðstöð fyrir unglinga. Húsið hefur nú verið gert upp á fallegan hátt og fengið nýtt hlutverk sem þriggja íbúða hús í hjarta bæjarins.
Húsið hefur að miklu leyti verið endurnýjað að innan. Allar raflagnir, heimtaug, rafmagnstöflur, ljós og tenglar hefur verið endurnýjað. Öll lýsing er dimmanleg og tengd Plejd hússtjórnarkerfi. Innfelld óbein lýsing er meðfram útveggjum í öllum rýmum á norður- og suðurhlið.
Búið er að leggja ljósleiðara inn í húsið.
Ný heimæð fyrir kalt vatn hefur verið lögð inn í húsið, allar vatnslagnir, hreinlætistæki og hitatúbur er nýtt. Rafmagnskynding er í íbúðinni með nýjum ofnum. Frárennslislagnir hafa allar verið endurnýjaðar innanhúss og út í nýjan safnbrunn í lóð. Sameiginlegt inntaks- og tæknirými er staðsett í nýrri viðbyggingu á jarðhæð.
Mikil lofthæð er í íbúðinni eða um 2,8 m.
Inngangur í íbúðina er rúmgóðri forstofu sem jafnframt er inngangur í tæknirými hússins.
Innra skipulag:
Úr forstofu er komið er inn í flísalagt anddyri með góðum fataskápum og er gangur í framhaldi af forstofunni. Við ganginn er flísalagt þvottahús með nýrri innréttingu þar sem gert er ráð fyrir þvottavél og þurrkara í vinnuhæð.
Frá gangi er komið í bjarta og rúmgóða stofu/borðstofu og eldhús við hlið stofunnar. Ný eldhúsinnrétting með nýjum tækjum í eldhúsi. Innbyggð uppþvottavél og innbyggður ísskápur fylgja íbúðinni. Innfelld lýsining í loftum og innfelldur ljósakappi meðfram útvegg.
Stórir og háir gluggar eru í stofu, eldhúsi og herbergi sem er við hlið eldhússins.
Svefnherbergin eru tvö með rúmgóðum fataskápum og harðparketi á gólfum. Í svefnherbergjum er dimmanleg innfelld lýsing og innfelldur ljósakappi meðfram útvegg yfir gluggum. Nettenglar eru í herbergjum og stofu fyrir möguleika á að tengja sjónvarpstæki.
Baðherbergi er að hluta til flísalagt og með sturtu, upphengdu salerni með innbyggðum wc kassa og nýrri baðinnréttingu í dökkum viðarlit. Innfelld dimmanleg lýsing og ljósakappi.
Ytra byrði:
Að utan hafa allir gluggar verið yfirfarnir, allt gler, glerjunarlistar og opnanleg fög endurnýjuð og gluggar málaðir. Þak er yfirfarið og viðgert, nýr þakpappi og ný lektuð lituð þakklæðning. Nýr þakkantur, nýjar þakrennur og niðurföll. Skorsteinar á þaki viðgerðir og klæddir með álklæðningu. Múrkerfi utanhúss er yfirfarið, múrviðgert og húsið heilmálað. Ný viðbygging með standandi viðarklæðningu hefur verið byggð við húsið í stað eldra skyggnis. Í viðbyggingu er inngangur íbúðar á jarðhæð ásamt sameiginlegu tæknirými. Á þaki viðbyggingar eru svalir, sérafnotareitur efri hæðar.
Eldri steyptar stéttar hafa verið fjarlægðar og eru gönguleiðir hellulagðar frá inngöngum íbúða að sorptunnuskýli og bílstæðum.
Lóð er jöfnuð og tyrfð að sunnanverðu en heldur sér óbreytt með sjálfsprottnum gróðri að norðanverðu.
Eldri steinhleðsla og tröppur frá götu að sunnanverðu hefur verið lagað.
Eitt merkt bílastæði fylgir hverri íbúð, ídráttarrör liggur frá tæknirými að hverju stæði fyrir mögulega tengingu á rafhleðslustöð.
Norðan við hús er malarplan með möguleika á viðbótar bílastæðum. Við enda bílastæðis meðfram götu verður sameiginlegt sorptunnuskýli.
Arkþing / Nordic House of Architecture teiknaði breytingar á innra skipulagi.
Einnig fylgja með teikningar frá Arkþing af þremur rúmgóðum, sambyggðum bílskúrum norðanmegin við húsið sem ekki hafa verið lagðar inn til umsagnar byggingarfulltrúa.
Hér er um að ræða einstaka eign í sögulegu húsi á besta stað í bænum með alla helstu þjónustu í göngufæri.
Ár
Fasteignamat
Kaupverð
Stærð
Fermetraverð
1. nóv. 2023
28.750.000 kr.
28.000.000 kr.
292 m²
95.890 kr.
8. feb. 2023
28.750.000 kr.
20.000.000 kr.
292 m²
68.493 kr.
Byggt á upplýsingum úr Þjóðskrá Íslands frá 2006-2026