Löggiltir fasteignasalar innan Félags fasteignasala:
Sigurður Maack Gunnarsson
Svanþór Einarsson
Theodór Emil Karlsson
Steingrímur Benediktsson
Vista
raðhús

Hulduhlíð 4

270 Mosfellsbær

138.900.000 kr.

874.685 þ.kr./m2
Fasteignanúmer

F2250393

Fasteignamat

120.150.000 kr.

Brunabótamat

71.350.000 kr.

Áhvílandi

0 kr.

Arion banki – Reikna lán
Upplýsingar
Verðsaga
svg
Byggt 2000
svg
158,8 m²
svg
4 herb.
svg
1 baðherb.
svg
3 svefnh.
svg
Þvottahús
svg
Bílskúr
svg
Sérinngangur
Opið hús: 9. febrúar 2026 kl. 16:30 til 17:00

Lýsing

** Opið hús mánudaginn 9. febrúar frá kl. 16:30 til 17:00 - Svanþór Einarsson, löggiltur fasteignasali -  [email protected] eða 698-8555 - Theodór Emil Karlsson, löggiltur fasteignasali - [email protected] eða 690-8040 - Steingrímur Benediktsson, löggiltur fasteignasali - [email protected] eða 862-9416 **

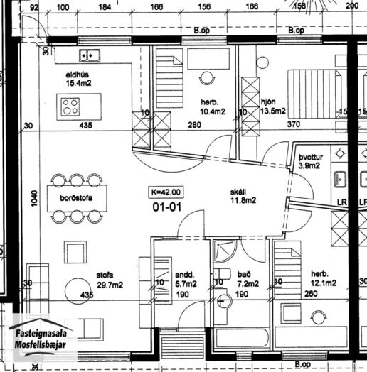
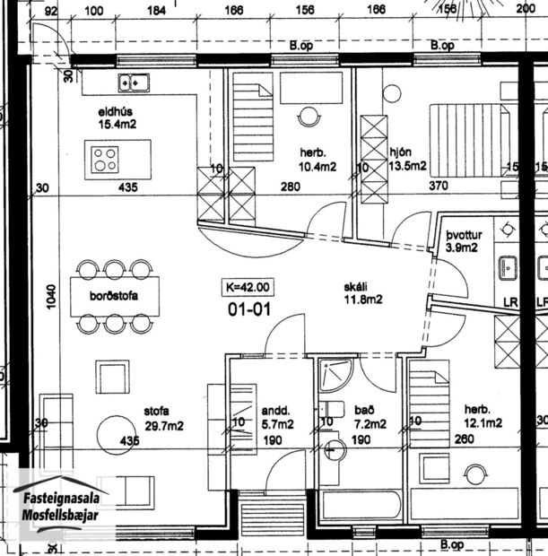
Fasteignasala Mosfellsbæjar kynnir: Mjög fallegt og mikið endurnýjað 158,8 m2 raðhús á einni hæð með bílskúr við Hulduhlíð 4 í Mosfellsbæ. Um er að ræða 125,2 m2 steinsteypt raðhús á einni hæð ásamt 33,6 m2 frístandandi bílskúr. Hellulagt bílaplan með sjóbræðslu og hellulögð gönguleið að húsi. Timburverönd fyrir framan hús í suðurátt. Eignin skiptist í forstofu, hol, eldhús, stofu, borðstofu, þrjú svefnherbergi, baðherbergi, þvottahús og bílskúr. Í bílskúr er búið að stúka af skrifstofu/herbergi með sérinngangi. Um er að ræða fallegt fjölskylduhús á vinsælum stað í Mosfellsbæ. Stutt er í grunnskóla, leikskóla, sundlaug, líkamsrækt, golfvöll og fallegar gönguleiðir í næsta nágrenni.


Endurbætur samkvæmt upplýsingum frá seljanda: Árið 2024 var skipt um járn, pappa og lektur sett á þaki. Árið 2025 var sett ný sérsmíðuð eldhúsinnrétting með eldhúseyju frá INNlifun ásamt nýjum eldhústækjum. Skipt var um gólfefni í eldhúsi, stofu, borðstofu, holi og svefnherbergjum. Settar nýjar innihurðir og fataskápar í svefniherbergin.

Smelltu hér til að fá söluyfirlit sent

Nánari lýsing:
Forstofa er með parketi á gólfi á gólfi. 
Hol með parketi á gólfi.
Eldhús, stofa og borðstofa eru i björtu opnu rými með parketi á gólfi. Í eldhúsi er falleg sérsmíðuð innrétting frá INNlifun með eldhúseyju og góðu skápaplássi. Í innréttingu er innbyggð uppþvottavél, tveir ofnar og helluborð með innbyggðum gufugleypi Gert er ráð fyrir tvöföldum ísskáp í innréttingu. Útgengt er á timburverönd og í bakgarð.
Herbergi 1 (hjónaherbergi) er parketi á gólfi og fataskápum.
Herbergi 2 er með parketi á gólfi og fataskáp.
Herbergi 3 er með parketi á gólfi.
Baðherbergi er með flísum á gólfi og veggjum, innréttingu, handlaug, salerni og baðkari með sturtuaðstöðu. Gluggi er á baðherbergi. 
Þvottahús er með flísum á gólfi og góðri innréttingu þar sem gert er ráð fyrir þvottavél og þurrkara. 
Bílskúr er með máluðu gólfi, rafmagnsopnun og heitu og köldu vatni. Hluti bílskúrs hefur veruð stúkaður af og er þar nú skrifstofa/herbergi með sérinngangi.

Verð kr. 138.900.000,- 
 



Um skoðunar- og aðgæsluskyldu:
Í lögum um fasteignakaup nr. 40/2002 er kveðið á um ríka skoðunarskyldu kaupenda á fasteignum. Fasteignasala Mosfellsbæjar skorar því á væntanlega kaupendur að kynna sér vel ástand fasteigna fyrir kauptilboðsgerð og leita til þar til bærra sérfræðinga um nánari skoðun ef með þarf.

Forsendur söluyfirlits:
Söluyfirlit er samið af fasteignasala í samræmi við ákvæði laga nr. 70/2015. Þær upplýsingar sem fram koma í söluyfirliti þessu eru sóttar í opinberar skrár, til seljanda sjálfs og eftir atvikum til húsfélags. Seljandi veitir upplýsingar um eign í samræmi við upplýsingaskyldu laga um fasteignakaup nr. 40/2002. Fasteignasali sannreynir að þær upplýsingar séu réttar með sjónskoðun á eigninni.
Fasteignasali getur ekki fullyrt um ástand og eiginleika þeirra hluta fasteigna sem ekki eru aðgengilegir og sjást ekki berum augum, t.d. lagnir, dren, skólp og þak.

Gjöld sem kaupandi þarf að greiða vegna kaupa:
1. Stimpilgjald af kaupsamningi sem er hlutfall af fasteignamati. Stimpilgjald er 0,8% fyrir einstaklinga (0,4% við fyrstu kaup) og 1,6% fyrir lögaðila.
2. Þinglýsingargjald af kaupsamningi, veðskuldabréfum, veðleyfum o.fl. Þinglýsingargjald er kr. 3.800,- fyrir hvert skjal.
3. Lántökugjald lánastofnunar - er skv. gjaldskrá viðkomandi lánastofnunar.
4. Umsýslugjald til fasteignasölu skv. kauptilboði.
5. Þegar um nýbyggingu er að ræða greiðir kaupandi skipulagsgjald, 0,3% af endanlegu brunabótamáti, þegar það er lagt á af viðkomandi sveitarfélagi.

img
Svanþór Einarsson
Lögg.fasteignasali innan félags fasteignasala
Fasteignasala Mosfellsbæjar
Þverholti 2, 270 Mosfellsbæ
Fasteignasala Mosfellsbæjar

Fasteignasala Mosfellsbæjar

Þverholti 2, 270 Mosfellsbæ
phone
img

Svanþór Einarsson

Þverholti 2, 270 Mosfellsbæ
Ár
Fasteignamat
Kaupverð
Stærð
Fermetraverð
27. jan. 2020
67.350.000 kr.
73.300.000 kr.
158.8 m²
461.587 kr.
Byggt á upplýsingum úr Þjóðskrá Íslands frá 2006-2026
Fasteignasala Mosfellsbæjar

Fasteignasala Mosfellsbæjar

Þverholti 2, 270 Mosfellsbæ
phone

Svanþór Einarsson

Þverholti 2, 270 Mosfellsbæ