Upplýsingar
Byggt 2021
256,8 m²
5 herb.
3 baðherb.
4 svefnh.
Þvottahús
Bílskúr
Sérinngangur
Lýsing
Hraunhamar kynnir glæsilegt einbýlishús við Völuskarð vel staðsett í Skarðshlíðarhverfinu í Hafnarfirði. Húsið er staðsett fyrir neðan götu.
Húsið er 256,8 fermetrar og þar af er bílskúrinn 29,6 fermetrar.
## 4 svefnherbergi
## Glæsilegt útsýni
## Free at home stýrikerfi og öryggiskerfi
## Frábært innra skipulag
## Heitur pottur
## Vandaðar innréttingar og gólfefni.
## Hjóðdúkur í öllu alrýminu á efri hæðinni.
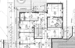
Skipting eignarinnar: Efri hæðin: Forstofa, hol, stofa, borðstofa, eldhús, gestasalerni, bílskúr og svalir.
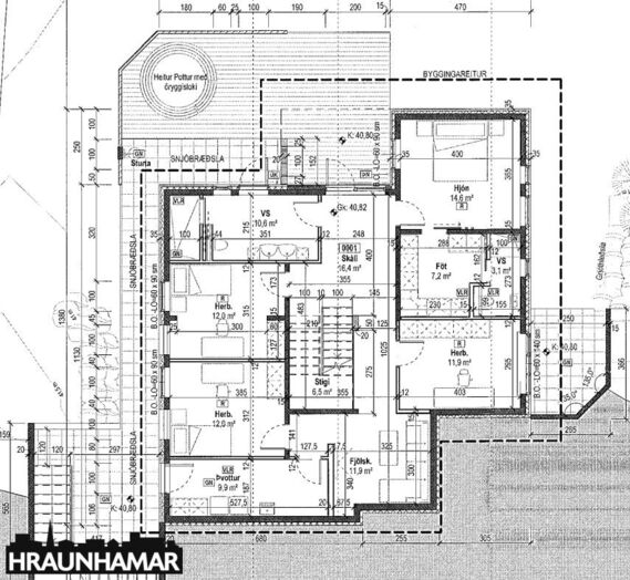
Neðri hæðin: Hol, sjónvarpshol, þrjú barnaherbergi, hjónaherbergi, fataherbergi, tvö baðherbergi og þvottahús.
Lýsing eignarinnar:
Efri hæðin: Forstofa með fataskápum og sérsmíðuðum skenk.
Flísalagt gestasalerni með innréttingu frá kvik með ísteyptum vaski. Opnanlegt fag.
Innangengt úr forstofu í bílskúrinn. Þar er geymsluloft, innrétting, rafmagnsopnari og eposý á golfum.
Björt stofa og borðstofa og þaðan er utangengt út á rúmgóðar yfirbyggðar svalir, gott geymsluloft yfir svölunum.
Eldhús með glæsilegri innréttingu frá Kvik, eyja, granít á borðum, tveir búrskápar, tækjaskápur, innbyggður ísskápur, uppþvottavél og vínskápur. Vönduð eldunartæki.
Neðri hæðin:
Steyptur stigi milli hæða.
Gott hol og sjónvarpshol.
Þrjú barnaherbergi með fataskápum.
Rúmgott hjónaherbergi, inn af hjónaherginu er fataherbergi og baðherbergi.
Baðherbergið er með innrétttingu, walk-in sturta, upphendu salerni.
Einnig er rúmgott baðherbergi í holi það er flísalagt með vandaðri innréttingu frá Kvik, granít á borði með ísteyptum vaski. Walk-in sturta með innbyggðum tækjum og utangengt úr baðherberginu út á veröndina.
Rúmgott þvottahús með innréttingu, handklæðaofn, snúrur og þaðan er utangengt út í garðinn.
Gólfefni er niðurlímt gengheilt fiskibeinaparket frá Birgisson, þar er bæði gengið frá með vaxi og olíuborið, hágæðateppi á stiga. einnig er flísar á votrýmum.
Sérsniðnar gardínur frá Skermi í flest öllum rýmum og innfelld lýsing frá Iquzzini í flestum rýmum, en innfelld lýsing er í öllum rýmum eignarinnar.
Lóðin er frágengin á hluta, búið að gera pall að neðanverðu með heitum potti, gert ráð fyrir útisturtu. Grasflötur. Einnig er búið að ganga frá lóðarmörkum við nágrannalóðir með steyptum veggjum og gróðri. Bílastæðið er malarborið.
Þetta er glæsileg og vel skipulögð eign þar sem það sést að það hefur verið vandað til verka. Allur frágangur er til fyrirmyndar og vandað við allt efnisval. Sjón er sögu ríkari.
Stutt er í skóla, leiksskóla, einnig er stutt í íþróttamiðstöð Hauka og Ásvallarlaug.
Nánari upplýsingar veitir Hlynur Halldórsson, löggiltur fasteignasali, s. 698-2603, [email protected]
Skoðunarskylda:
Í lögum um fasteignakaup nr. 40/2002 er kveðið á um ríka skoðunarskyldu kaupenda á fasteignum. Hraunhamar fasteignasala vill benda væntanlegum kaupendum á að kynna sér vel ástand fasteigna fyrir kauptilboðsgerð og ef þurfa þykir að leita til sérfræðinga fyrir nánari ástandsskoðun.
Gjöld sem kaupandi þarf að standa straum af vegna kaupanna:
1. Stimpilgjald af kaupsamningi, fyrstu kaup (0,4%), almenn kaup (0,8%), lögaðilar (1,6%) af heildarfasteignamati.
2. Þinglýsingargjald af kaupsamningi, veðskuldabréfi, mögulegu veðleyfi o.fl. – kr. 2.700 kr. af hverju skjali.
3. Lántökugjald lánastofnunar er skv. verðskrá viðkomandi lánastofnunar.
4. Umsýslugjald til fasteignasölu skv. þjónustusamningi
Hraunhamar er elsta fasteignasala Hafnarfjarðar, stofnuð 1983.
Hraunhamar, í fararbroddi í rúm 40 ár. – Hraunhamar.is
Smelltu hér til að fá frítt söluverðmat.
Smelltu hér til að fá söluyfirlit sent strax.
Húsið er 256,8 fermetrar og þar af er bílskúrinn 29,6 fermetrar.
## 4 svefnherbergi
## Glæsilegt útsýni
## Free at home stýrikerfi og öryggiskerfi
## Frábært innra skipulag
## Heitur pottur
## Vandaðar innréttingar og gólfefni.
## Hjóðdúkur í öllu alrýminu á efri hæðinni.
Skipting eignarinnar: Efri hæðin: Forstofa, hol, stofa, borðstofa, eldhús, gestasalerni, bílskúr og svalir.
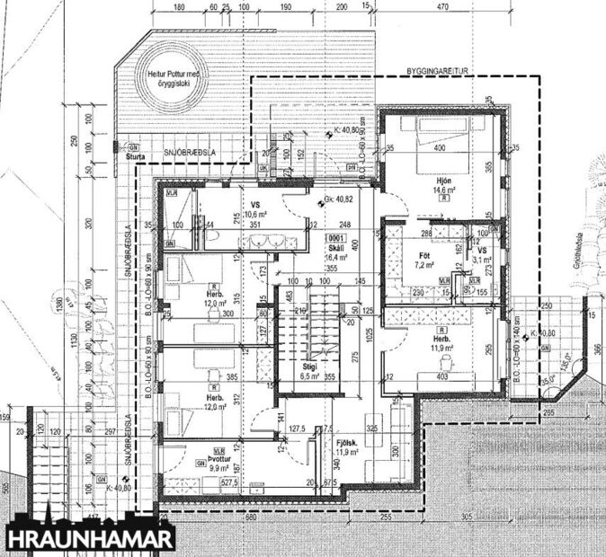
Neðri hæðin: Hol, sjónvarpshol, þrjú barnaherbergi, hjónaherbergi, fataherbergi, tvö baðherbergi og þvottahús.
Lýsing eignarinnar:
Efri hæðin: Forstofa með fataskápum og sérsmíðuðum skenk.
Flísalagt gestasalerni með innréttingu frá kvik með ísteyptum vaski. Opnanlegt fag.
Innangengt úr forstofu í bílskúrinn. Þar er geymsluloft, innrétting, rafmagnsopnari og eposý á golfum.
Björt stofa og borðstofa og þaðan er utangengt út á rúmgóðar yfirbyggðar svalir, gott geymsluloft yfir svölunum.
Eldhús með glæsilegri innréttingu frá Kvik, eyja, granít á borðum, tveir búrskápar, tækjaskápur, innbyggður ísskápur, uppþvottavél og vínskápur. Vönduð eldunartæki.
Neðri hæðin:
Steyptur stigi milli hæða.
Gott hol og sjónvarpshol.
Þrjú barnaherbergi með fataskápum.
Rúmgott hjónaherbergi, inn af hjónaherginu er fataherbergi og baðherbergi.
Baðherbergið er með innrétttingu, walk-in sturta, upphendu salerni.
Einnig er rúmgott baðherbergi í holi það er flísalagt með vandaðri innréttingu frá Kvik, granít á borði með ísteyptum vaski. Walk-in sturta með innbyggðum tækjum og utangengt úr baðherberginu út á veröndina.
Rúmgott þvottahús með innréttingu, handklæðaofn, snúrur og þaðan er utangengt út í garðinn.
Gólfefni er niðurlímt gengheilt fiskibeinaparket frá Birgisson, þar er bæði gengið frá með vaxi og olíuborið, hágæðateppi á stiga. einnig er flísar á votrýmum.
Sérsniðnar gardínur frá Skermi í flest öllum rýmum og innfelld lýsing frá Iquzzini í flestum rýmum, en innfelld lýsing er í öllum rýmum eignarinnar.
Lóðin er frágengin á hluta, búið að gera pall að neðanverðu með heitum potti, gert ráð fyrir útisturtu. Grasflötur. Einnig er búið að ganga frá lóðarmörkum við nágrannalóðir með steyptum veggjum og gróðri. Bílastæðið er malarborið.
Þetta er glæsileg og vel skipulögð eign þar sem það sést að það hefur verið vandað til verka. Allur frágangur er til fyrirmyndar og vandað við allt efnisval. Sjón er sögu ríkari.
Stutt er í skóla, leiksskóla, einnig er stutt í íþróttamiðstöð Hauka og Ásvallarlaug.
Nánari upplýsingar veitir Hlynur Halldórsson, löggiltur fasteignasali, s. 698-2603, [email protected]
Skoðunarskylda:
Í lögum um fasteignakaup nr. 40/2002 er kveðið á um ríka skoðunarskyldu kaupenda á fasteignum. Hraunhamar fasteignasala vill benda væntanlegum kaupendum á að kynna sér vel ástand fasteigna fyrir kauptilboðsgerð og ef þurfa þykir að leita til sérfræðinga fyrir nánari ástandsskoðun.
Gjöld sem kaupandi þarf að standa straum af vegna kaupanna:
1. Stimpilgjald af kaupsamningi, fyrstu kaup (0,4%), almenn kaup (0,8%), lögaðilar (1,6%) af heildarfasteignamati.
2. Þinglýsingargjald af kaupsamningi, veðskuldabréfi, mögulegu veðleyfi o.fl. – kr. 2.700 kr. af hverju skjali.
3. Lántökugjald lánastofnunar er skv. verðskrá viðkomandi lánastofnunar.
4. Umsýslugjald til fasteignasölu skv. þjónustusamningi
Hraunhamar er elsta fasteignasala Hafnarfjarðar, stofnuð 1983.
Hraunhamar, í fararbroddi í rúm 40 ár. – Hraunhamar.is
Smelltu hér til að fá frítt söluverðmat.
Smelltu hér til að fá söluyfirlit sent strax.