Upplýsingar
Verðsaga
Byggt 2019
93,5 m²
4 herb.
2 baðherb.
2 svefnh.
Þvottahús
Sérinngangur
Lýsing
Kasa fasteignir 461-2010.
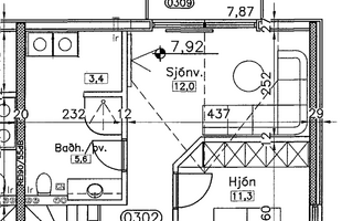
Hafnarstræti 26 B - 202. Falleg 4 herbergja 93,5 fm íbúð á tveimur hæðum rétt við miðbæ Akureyrar. Mikil lofthæð er á efri hæð og tvennar svalir til vestur.
Eignin skiptist þannig að á neðri hæð íbúðarinnar er forstofa, eldhús, stofa, svefnherbergi og snyrting.
Á efri hæð er eitt svefnherbergi, sjónvarpsstofa/stofa og baðherbergi með þvottaaðstöðu.
Tvennar svalir eru á íbúðinni til vesturs, annars vegar út úr stofu á neðri hæð og hins vegar út úr sjónvarpsstofu efri hæðar.
Neðri hæð:
Forstofa: Er með hvítum fataskáp. Sérinngangur af stigapalli.
Eldhús: Innrétting verður með hvítsprautuðum neðri skápum en hnotu í efri skápum. Eldhúsið er fullbúið tækjum, uppþvottavél og ísskáp. Stálvaskur er fræstur í borðplötu. Steinn í borðplötu.
Stofa: Vínylparket er á gólfum, út frá stofu er gengið út á svalir.
Svefnherbergi: Er vínylparket á gólfum og fataskáp.
Salerni: Er með flísum á gólfi, ljós innrétting og upphengt salerni.
Efri hæð:
Stofa / sjónvarpsrými: þar er góð lofthæð, vínylparket á gólfum, gengið er út á svalir úr því rými.
Hjónherbergi: Þar er vínylparket á gólfum og góður skápur, mikil lofthæð er í svefnherbergi.
Baðherbergi: Er rúmgott, flísalagt í hólf og gólf, innrétting, upphengt salerni og sturta, innrétting er fyrir þvottavél og þurrkara er á baðherbergi.
Geymslur: Sér geymsla eru í sameign ásamt sameiginlegum geymsluskúr á lóð.
- Frábær staðsetning, rétt við miðbæ Akureyrar.
- Mikil lofthæð á efrihæð.
- Getur verið laus fljótlega.
Nánari upplýsingar veita:
Sigurpáll á [email protected] eða í síma 696-1006.
Helgi Steinar á [email protected] eða í síma 666-0999.
Sibba á [email protected] eða í síma 864-0054.
Ester á [email protected] eða í síma 661-3929.
------------
Skoðunarskylda:
Í lögum um fasteignakaup nr. 40/2002 er kveðið á um ríka skoðunarskyldu kaupenda á fasteignum. Kasa fasteignir benda væntanlegum kaupendum á að kynna sér vel ástand fasteigna fyrir kauptilboðsgerð og leita til þar til bærra sérfræðinga um nánari skoðun ef þurfa þykir.
Forsendur söluyfirlits:
Söluyfirlit er samið af fasteignasala í samræmi við ákvæði laga nr. 70/2015. Þær upplýsingar sem fram koma í söluyfirliti þessu eru sóttar í opinberar skrár, til seljanda sjálfs og eftir atvikum til húsfélags. Seljandi veitir upplýsingar um eign í samræmi við upplýsingaskyldu laga um fasteignakaup nr. 40/2002. Fasteignasali sannreynir að þær upplýsingar séu réttar með sjónskoðun á eigninni. Fasteignasali getur ekki fullyrt um ástand og eiginleika þeirra hluta fasteigna sem ekki eru aðgengilegir og sjást ekki berum augum, t.d. lagnir, dren, skólp og þak.
Gjöld sem kaupandi þarf að standa straum af vegna kaupanna:
1. Stimpilgjald sýslumanns af kaupsamningi, fyrstu kaup (0,4%), almenn kaup (0,8%), lögaðilar (1,6%) af heildarfasteignamati eignar.
2. Þinglýsingargjald af kaupsamningi, veðskuldabréfi, mögulegu veðleyfi o.fl. - kr. 2.700 af hverju skjali.
3. Lántökugjald lánastofnunar er skv. verðskrá viðkomandi lánastofnunar. Nánari upplýsingar á t.d. heimasíðu lánastofnana.
4. Umsýslugjald til fasteignasölu skv. kauptilboði.
Hafnarstræti 26 B - 202. Falleg 4 herbergja 93,5 fm íbúð á tveimur hæðum rétt við miðbæ Akureyrar. Mikil lofthæð er á efri hæð og tvennar svalir til vestur.
Eignin skiptist þannig að á neðri hæð íbúðarinnar er forstofa, eldhús, stofa, svefnherbergi og snyrting.
Á efri hæð er eitt svefnherbergi, sjónvarpsstofa/stofa og baðherbergi með þvottaaðstöðu.
Tvennar svalir eru á íbúðinni til vesturs, annars vegar út úr stofu á neðri hæð og hins vegar út úr sjónvarpsstofu efri hæðar.
Neðri hæð:
Forstofa: Er með hvítum fataskáp. Sérinngangur af stigapalli.
Eldhús: Innrétting verður með hvítsprautuðum neðri skápum en hnotu í efri skápum. Eldhúsið er fullbúið tækjum, uppþvottavél og ísskáp. Stálvaskur er fræstur í borðplötu. Steinn í borðplötu.
Stofa: Vínylparket er á gólfum, út frá stofu er gengið út á svalir.
Svefnherbergi: Er vínylparket á gólfum og fataskáp.
Salerni: Er með flísum á gólfi, ljós innrétting og upphengt salerni.
Efri hæð:
Stofa / sjónvarpsrými: þar er góð lofthæð, vínylparket á gólfum, gengið er út á svalir úr því rými.
Hjónherbergi: Þar er vínylparket á gólfum og góður skápur, mikil lofthæð er í svefnherbergi.
Baðherbergi: Er rúmgott, flísalagt í hólf og gólf, innrétting, upphengt salerni og sturta, innrétting er fyrir þvottavél og þurrkara er á baðherbergi.
Geymslur: Sér geymsla eru í sameign ásamt sameiginlegum geymsluskúr á lóð.
- Frábær staðsetning, rétt við miðbæ Akureyrar.
- Mikil lofthæð á efrihæð.
- Getur verið laus fljótlega.
Nánari upplýsingar veita:
Sigurpáll á [email protected] eða í síma 696-1006.
Helgi Steinar á [email protected] eða í síma 666-0999.
Sibba á [email protected] eða í síma 864-0054.
Ester á [email protected] eða í síma 661-3929.
------------
Skoðunarskylda:
Í lögum um fasteignakaup nr. 40/2002 er kveðið á um ríka skoðunarskyldu kaupenda á fasteignum. Kasa fasteignir benda væntanlegum kaupendum á að kynna sér vel ástand fasteigna fyrir kauptilboðsgerð og leita til þar til bærra sérfræðinga um nánari skoðun ef þurfa þykir.
Forsendur söluyfirlits:
Söluyfirlit er samið af fasteignasala í samræmi við ákvæði laga nr. 70/2015. Þær upplýsingar sem fram koma í söluyfirliti þessu eru sóttar í opinberar skrár, til seljanda sjálfs og eftir atvikum til húsfélags. Seljandi veitir upplýsingar um eign í samræmi við upplýsingaskyldu laga um fasteignakaup nr. 40/2002. Fasteignasali sannreynir að þær upplýsingar séu réttar með sjónskoðun á eigninni. Fasteignasali getur ekki fullyrt um ástand og eiginleika þeirra hluta fasteigna sem ekki eru aðgengilegir og sjást ekki berum augum, t.d. lagnir, dren, skólp og þak.
Gjöld sem kaupandi þarf að standa straum af vegna kaupanna:
1. Stimpilgjald sýslumanns af kaupsamningi, fyrstu kaup (0,4%), almenn kaup (0,8%), lögaðilar (1,6%) af heildarfasteignamati eignar.
2. Þinglýsingargjald af kaupsamningi, veðskuldabréfi, mögulegu veðleyfi o.fl. - kr. 2.700 af hverju skjali.
3. Lántökugjald lánastofnunar er skv. verðskrá viðkomandi lánastofnunar. Nánari upplýsingar á t.d. heimasíðu lánastofnana.
4. Umsýslugjald til fasteignasölu skv. kauptilboði.
Ár
Fasteignamat
Kaupverð
Stærð
Fermetraverð
26. nóv. 2020
42.650.000 kr.
37.500.000 kr.
93.5 m²
401.070 kr.
Byggt á upplýsingum úr Þjóðskrá Íslands frá 2006-2026