Löggiltir fasteignasalar innan Félags fasteignasala:
Ástþór Reynir Guðmundsson
Vigdís R. S. Helgadóttir
Guðbjörg Helga Jóhannesdóttir
Gylfi Jens Gylfason
Sigrún Matthea Sigvaldadóttir
Sveinn Gíslason
Páll Guðmundsson
Þórarinn Arnar Sævarsson
Berglind Hólm Birgisdóttir
Þorsteinn Gíslason
Guðrún Lilja Tryggvadóttir
Brynjar Ingólfsson
Guðný Þorsteinsdóttir
Bjarni Blöndal
Þorsteinn Ólafs
Þórdís Björk Davíðsdóttir
Jóhann Kristinn Jóhannesson
Bjarný Björg Arnórsdóttir
Salvör Þóra Davíðsdóttir
Magga Sigríður Gísladóttir
Upplýsingar
Verðsaga
Byggt 1933
48,7 m²
2 herb.
1 baðherb.
1 svefnh.
Sameiginl. inngangur
Laus strax
Opið hús: 11. febrúar 2026
kl. 16:00
til 16:30
Opið hús verður að Leifsgötu 5, 101 RVK miðvikudaginn 11. febrúar kl. 16:00-16:30. Verið velkomin.
Lýsing
Guðbjörg Helga og Gylfi Jens kynna: Leifsgata 5, 101 Reykjavík.
Björt og vel skipulögð mikið endurnýjuð 2ja herbergja íbúð í rólegri götu, rétt við Landspítalann og svo gott sem í bakgarði Hallgrímskirkju. Stutt er út á stofnleiðir RVK, í almenningssamgöngur og er öll nærþjónusta í göngufæri enda rétt við Skólavörðustíg og miðborgina. Íbúðin er laus við kaupsamning. Tilvalin fyrstu kaup. Búið er að sækja um endurmat hjá HMS, brunabótamat var hækkað og er beðið eftir útkomu á fasteignamati eftir gagngerar endurbætur á íbúðinni.
Tilvalin fyrstu kaup.
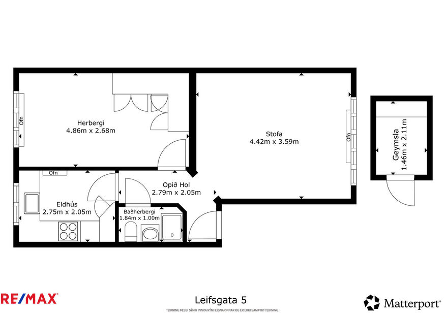
NÚVERANDI SKIPULAG SÉREIGNAR:
Hol/gangur, stofa, herbergi, baðherbergi, eldhús, sérgeymsla í kjallara.
>> SÆKTU SÖLUYFIRLIT HÉR
SKOÐAÐU EIGNINA BETUR Í ÞRÍVÍDD HÉR
Björt og vel skipulögð mikið endurnýjuð 2ja herbergja íbúð í rólegri götu, rétt við Landspítalann og svo gott sem í bakgarði Hallgrímskirkju. Stutt er út á stofnleiðir RVK, í almenningssamgöngur og er öll nærþjónusta í göngufæri enda rétt við Skólavörðustíg og miðborgina. Íbúðin er laus við kaupsamning. Tilvalin fyrstu kaup. Búið er að sækja um endurmat hjá HMS, brunabótamat var hækkað og er beðið eftir útkomu á fasteignamati eftir gagngerar endurbætur á íbúðinni.
Tilvalin fyrstu kaup.
NÚVERANDI SKIPULAG SÉREIGNAR:
Hol/gangur, stofa, herbergi, baðherbergi, eldhús, sérgeymsla í kjallara.
>> SÆKTU SÖLUYFIRLIT HÉR
SKOÐAÐU EIGNINA BETUR Í ÞRÍVÍDD HÉR
Ár
Fasteignamat
Kaupverð
Stærð
Fermetraverð
9. mar. 2020
29.650.000 kr.
28.900.000 kr.
48.7 m²
593.429 kr.
18. maí. 2007
11.790.000 kr.
16.000.000 kr.
48.7 m²
328.542 kr.
1. des. 2006
10.775.000 kr.
16.000.000 kr.
48.7 m²
328.542 kr.
Byggt á upplýsingum úr Þjóðskrá Íslands frá 2006-2026