Löggiltir fasteignasalar innan Félags fasteignasala:
Páll Þórólfsson
Guðbjörg Guðmundsdóttir
Jason Kristinn Ólafsson
Sverrir Pálmason
Vista
hæð

Dverghamrar 24

112 Reykjavík

135.900.000 kr.

741.812 þ.kr./m2
Fasteignanúmer

F2039142

Fasteignamat

114.550.000 kr.

Brunabótamat

85.500.000 kr.

Áhvílandi

0 kr.

Arion banki – Reikna lán
Upplýsingar
svg
Byggt 1987
svg
183,2 m²
svg
5 herb.
svg
1 baðherb.
svg
4 svefnh.
svg
Þvottahús
svg
Útsýni
svg
Sérinngangur
svg
Laus strax

Lýsing

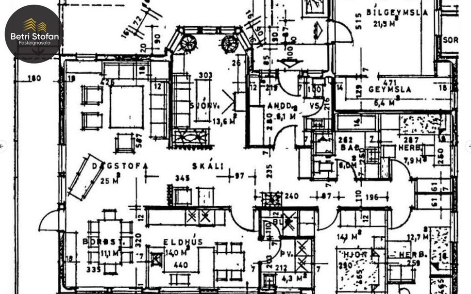
Betri Stofan og Jason Kristinn Ólafsson, sími 7751515 og netfang [email protected] kynna: 183,2 fm sérhæð í tvíbýli við Dverghamra 24 í Grafarvogi, 112 Reykjavík. Eignin skiptist í stofu, borðstofu, sjónvarpsstofu(mögulega svefnherbergi nr. 4), 3-4 svefnherbergi, eldhús og baðherbergi, þvottahús og bílskúr. Hægt að bæta við einu svefnherbergi á kostnað sjónvarpsstofu. Þá yrði eignin með fjórum svefnherbergjum. Mikið útsýni, sér sólpallur út frá svölum. Innbyggður bílskúr.

Nánari lýsing eignar: 
Komið inn í forstofu með flísum á gólfi og fataskáp. 
Baðherbergi er flísalagt með sturtu og baðkari.
Hjónaherbergi er parketlagt með fataskápum.
Tvö minni svefnherbergi með parket á gólfi.
Stórt og eldhús með góðu skápaplássi ásamt eyju. Flísar eru á gólfum og stein á borðum, inngengt er úr eldhúsi inn í þvottahús. Opnanlegur gluggi er í þvottahúsi.
Falleg stofa og sjónvarpsstofa, útgengt er úr stofu út á svalir 
Innbyggður bílskúr með rafdrifnum bílskúrshurðaopnara. 

Nánar: Jason Kristinn Ólafsson lögg. fasteignasali sími: 775-1515 og [email protected] 


Gjöld sem kaupandi þarf að standa straum af ef að kaupum verður:
1. Stimpilgjald af fasteignamati fasteignar er 0.8%, en 0,4% fyrir fyrstu kaup og 1,6% fyrir lögaðila.  
2. Þinglýsingargjald: kaupsamningi, skuldabréfi, veðleyfi, afsali o.s.frv. er kr. 3.800 af hverju skjali.
3. Lántökukostnaður samkvæmt verðskrá viðkomandi lánastofnunar.
4. Umsýslugjald til fasteignasölu skv. gjaldskrá.

Skoðunarskylda kaupanda:
Í lögum um fasteignakaup nr. 40/2002 er kveðið á um ríka skoðunarskyldu kaupenda á fasteignum. Betri Stofan fasteignasala bendir væntanlegum kaupendum á að kynna sér vel ástand fasteigna við skoðun og fyrir tilboðsgerð og ef þurfa þykir að leita til sérfræðinga um nánari ástandsskoðun.

img
Jason Kristinn Ólafsson
Lögg.fasteignasali innan félags fasteignasala
Betri Stofan Fasteignasala
Borgartúni 30, 105 Reykjavík
Betri Stofan Fasteignasala

Betri Stofan Fasteignasala

Borgartúni 30, 105 Reykjavík
phone
img

Jason Kristinn Ólafsson

Borgartúni 30, 105 Reykjavík
Betri Stofan Fasteignasala

Betri Stofan Fasteignasala

Borgartúni 30, 105 Reykjavík
phone

Jason Kristinn Ólafsson

Borgartúni 30, 105 Reykjavík